Wohnen im Grünen – Einfamilienhaus mit 653 m² Grund in Bad Fischau-Brunn zu kaufen!

Haus - Einfamilienhaus, 2721 Bad Fischau-Brunn


Beschreibung der Immobilie

Wohnen im Grünen – Einfamilienhaus mit 653 m² Grund in Bad Fischau-Brunn zu kaufen!

Dieses charmante Einfamilienhaus in Bad Fischau-Brunn bietet eine gelungene Kombination aus ruhiger Grünlage, solider Bauweise und viel Raum für individuelle Wohnideen. Ideal für Familien, Paare oder all jene, die naturnah wohnen und dennoch gut angebunden sein möchten.



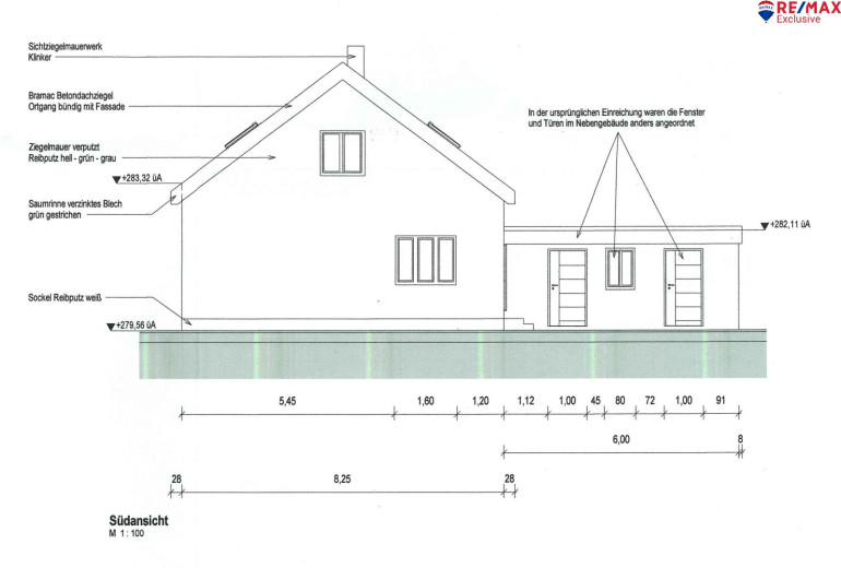
Das 1954 errichtete Haus verfügt über eine Wohnfläche von ca. 99,98 m² und steht auf einem ca. 653 m² großen Grundstück. Die massive Bauweise mit 25 cm Vollziegelmauerwerk sowie eine 3 cm Putzdämmung bilden eine solide Basis für dauerhaftes Wohnen.



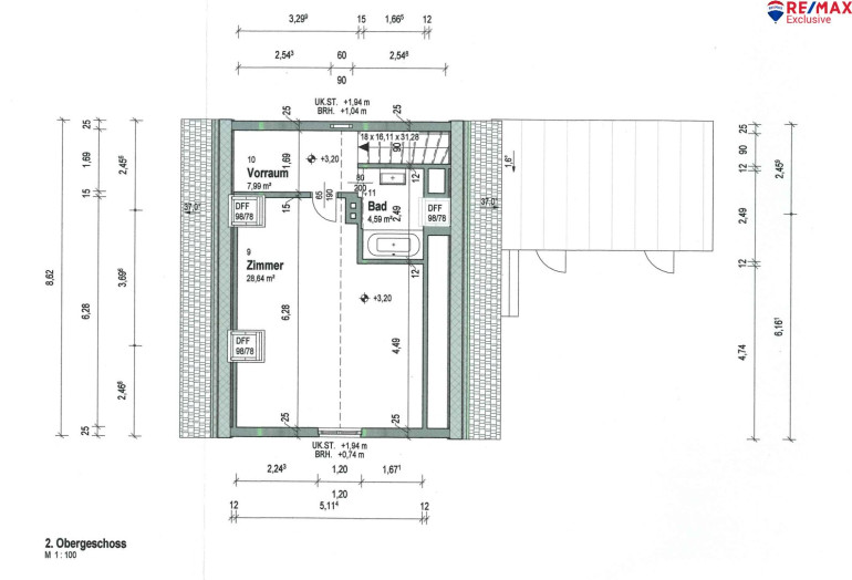
Die Immobilie punktet mit einer praktischen Raumaufteilung, darunter zwei Badezimmer mit jeweils einem WC und davon ein separates – ein klarer Mehrwert im Alltag. Ergänzt wird das Platzangebot durch einen Schuppen bzw. Lagerraum mit ca. 16,32 m² Abstellfläche.



Zur Ausstattung und Bauweise zählen unter anderem:



  • Gaszentralheizung
  • Satteldach mit Bramac-Betondachziegeln
  • Velux Dachflächenfenster (Typ DFF)
  • Kunststofffenster mit Doppelverglasung, teilweise dreifach (Internorm, 2005)
  • teilweise elektrisch betriebene Außenrollos
  • Fensterbänke aus dem Jahr 2005
  • Küche aus dem Jahr 1994
  • Option zur Errichtung eines Kamins für zusätzliche Wohnqualität


Der Garten bietet ausreichend Platz für Erholung, Spiel oder gärtnerische Gestaltung und unterstreicht den ruhigen, grünen Charakter dieser Liegenschaft.



Der Kaufpreis beträgt € 269.000,–.



Besichtigungen: jederzeit nach Terminvereinbarung möglich





Aufgrund der Nachweispflicht gegenüber dem Eigentümer ersuchen wir um Verständnis, dass nur Anfragen mit der Angabe der vollständigen Anschrift und Telefonnummer bearbeitet werden können.



Wir weisen auf Ihre 14-tägige Rücktrittsfrist (gemäß § 11 FAGG ) hin. Um Ihre Rechte zu wahren, können nur Anfragen mit vollständigen Kontaktdaten (Name, Adresse, Telefon, Email) beantwortet werden.



Vor Ablauf der 14-tägigen Rücktrittsfrist werden wir gerne für Sie tätig, wenn Sie gesetzeskonform (FAGG) uns ausdrücklich (am einfachsten per E-Mail) dazu auffordern.



Wenn der Kaufvertrag/der Mietvertrag nicht zustande kommt, bleibt unsere Tätigkeit für Sie vollkommen kostenlos.



Gewährleistung:



Die Verkäuferseite gewährleistet, dass der Vertragsgegenstand ihr unbeschränktes Eigentum und frei von Geldlasten, Bestandrechten und sonstigen Rechten Dritter ist.



Ansonsten wird jede Gewährleistung der Verkäuferseite ausgeschlossen und festgestellt, dass sich dieser Gewährleistungsausschluss sowohl auf bestimmte als auch auf gewöhnlich vorausgesetzte Eigenschaften des Vertragsgegenstandes wie beispielsweise Lage, Größe, Zustand, Abnützung, Widmung, Beschaffenheit, Ertrag und Verwendungsmöglichkeit bezieht.


Der Vermittler ist als Doppelmakler tätig.

Infrastruktur / Entfernungen

Gesundheit
Arzt <3.500m
Apotheke <4.000m
Klinik <6.000m
Krankenhaus <6.000m

Kinder & Schulen
Schule <4.000m
Kindergarten <1.000m
Höhere Schule <6.000m
Universität <6.000m

Nahversorgung
Supermarkt <1.500m
Bäckerei <500m
Einkaufszentrum <4.000m

Sonstige
Bank <500m
Geldautomat <500m
Post <500m
Polizei <3.000m

Verkehr
Bus <500m
Autobahnanschluss <1.000m
Bahnhof <500m
Flughafen <4.000m

Angaben Entfernung Luftlinie / Quelle: OpenStreetMap

Eckdaten Objektnr. 3128

Art: Haus - Einfamilienhaus
Land: Österreich
Baujahr: 1954
Kaufpreis: 269.000,00
Provision: 9.684,00 € inkl. 20% USt.
Betriebskosten: 39,70 €
Wohnfläche: 99,98 m²
Grundstücksfl.: 653,00 m²
Lagerfläche: 16,32 m²
Zimmer: 3
Bäder: 2
WC: 2
Heizwärmebedarf:  G  261,00 kWh/m²a
fGEE:  E  2,71
Immobilie merken Exposé

Ausstattung

Parkett, Fliesen, Laminatboden, Gas, Zentralheizung, Einbauküche, Kabel/Satelliten-TV


Immobilie anfragen


Ihre persönliche Beratung

RE/MAX Exclusive Brugger KG

Florian Skalnik, BSc MBA

RE/MAX Exclusive Brugger KG

T +43 2622 320 81

H +43 69910450261