exquisit geplantes Stadtreihenhaus mit der wahrscheinlich sensationellsten Dachterrasse im Zentrum Eisenstadt

Haus - Stadthaus, 7000 Eisenstadt


In zentraler Stadtlage auf der Anhöhe des Thurnerbergls, nur wenige Gehminuten von Innenstadt und Fussgängerzone entfernt befindet sich dieses Objekt in einer neuen Wohnanlage mit gesamt nur 34 Einheiten. Die Wohnobjekte erstrecken sich von der Sankt Antoni Straße bis zur Feldstraße, wo sich auch die Einfahrt zu den komfortablen Tiefgaragenplätzen befindet. Die Zugänge zu den Wohnungen sind bequem von beiden Straßen aus - barrierefrei - möglich.

Beschreibung der Immobilie

exquisit geplantes Stadtreihenhaus mit der wahrscheinlich sensationellsten Dachterrasse im Zentrum Eisenstadt

zur Vermietung gelangt diese hochwertige 5 Zimmer Neubau Stadt- Reihenhaus mit Garten und Sonnenterrasse und großzügiger Dachterrasse in Top zentraler Lage Eisenstadt.



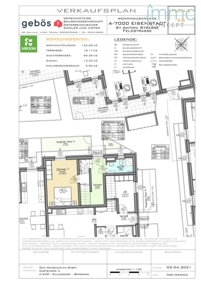
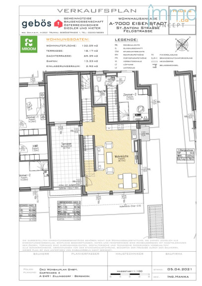
Die Gesamtwohnfläche dieses einmaligen Objektes beträgt ca. 132m² und bietet folgend angenehme Flächen; 



Stadthaus 25.1



EG:
- großzügiger Vorraum

- Badezimmer bodengleicher Dusche, Toilette, Handtuchtrockner

- loftartiges Zimmer 

- Innenstiege



1.OG
- Wohnraum offen zur Küche ca. 38 m²

  großzügige Glasflächen

- Terrasse ca. 20 m²



2.OG
- Galerie

- 3 Schlafzimmer ca. 11, 12 und 19 m²

- Badezimmer mit Toilette

- Aufgang zur einmaligen Dachterrasse mit traumhaften Weitblick über die Stadt, ins Wulkatal und bis zum St. Margarethner Berg.



Der Grundriss mit der teilweise offenen Innentreppe ist äußerst praktikabel gestaltet. Durch die optimale Ausrichtung präsentiert sich das Stadthaus sehr hell und freundlich.



Ein ganz besonders Highlight ist die knapp 70 m² große Dachterrasse mit 360º Rundumblick über die Stadt und darüber weit hinaus.  



Durch die optimale Positionierung der Baukörper sind nahezu alle Wohnzimmer und Freiflächen nach Süden ausgerichtet.



Freuen Sie sich auf eine hochwertige und attraktive Ausstattung wie:



Sicherheitseingangstüre, 3-Scheiben Iso-Verglasung, Kunststoff/Alufenster, außenliegende Sonnenschutzraffstores, Fußbodenheizung, hochwertiger Eichen Parkett, attraktive Badezimmer Gestaltung, bodengleich verflieste Dusche, Handtuchtrocknerheizkörper, Videogegensprechanlage.



Geräumiges Kellerabteil mit Stromanschluss.



Im allgemeinen Bereich im Untergeschoss stehen großzügig Platz für Kinderwägen und Fahrräder - alles barrierefrei erreichbar - zur Verfügung.



Ein oder mehrere KFZ- Stellplätze können optional angekauft/ angemietet werden. Die Ausstattung mit einer Wallbox am Parkplatz mit 11 KV ist möglich.   



Neubau Zweitbezug in qualitativ hochwertiger Massivbauweise, von Fa. Hitthaler gebaut.   



Heizung und Warmwasserversorgung über Fernwärme Energie Burgenland. 



Ein Bezug ist kurzfristig möglich.



Für den Mieter - provisionsfrei. 



flexible Erwerbsvarianten: Mietkauf oder Mietvariante möglich!  



Sie suchen ein modernes, komfortables und neuwertiges Zuhause in zentraler und ruhiger Stadtlage? Dann sind Sie hier genau richtig. Diese Wohnung in Eisenstadt bietet Ihnen alles, was Sie für ein zeitgemäß modernes Wohnen brauchen. Sichern Sie sich jetzt ihr neues Domizil in der stetig wachsenden Landeshauptstadt Österreichs. 



Ich freue mich auf ihre Anfrage.



Ihr Alfred Bergmann



0676 362 81 76



Immo Concept OG




Der Immobilienmakler erklärt, dass er – entgegen dem in der Immobilienwirtschaft üblichen Geschäftsgebrauch des Doppelmaklers – einseitig nur für den Vermieter tätig ist.

Infrastruktur / Entfernungen

Gesundheit
Arzt <500m
Apotheke <500m
Klinik <7.500m
Krankenhaus <1.000m

Kinder & Schulen
Schule <500m
Kindergarten <500m
Universität <1.500m
Höhere Schule <1.000m

Nahversorgung
Supermarkt <500m
Bäckerei <500m
Einkaufszentrum <1.500m

Sonstige
Bank <500m
Geldautomat <500m
Post <500m
Polizei <500m

Verkehr
Bus <500m
Autobahnanschluss <2.500m
Bahnhof <1.000m

Angaben Entfernung Luftlinie / Quelle: OpenStreetMap

Eckdaten Objektnr. 482

Art: Haus - Stadthaus
Land: Österreich
Baujahr: 2022
Zustand: Neuwertig
Alter: Neubau
Gesamtmiete: 1.902,00
Kaltmiete (netto): 1.902,00 €
Kaltmiete: 1.902,00 €
Provision: Gemäß Erstauftraggeberprinzip bezahlt der Abgeber die Provision.
Wohnfläche: 132,00 m²
Zimmer: 5
Bäder: 2
WC: 2
Terrassen: 2
Garten: 13,00 m²
Heizwärmebedarf:  B  32,00 kWh/m²a
fGEE:  A  0,78
Immobilie merken Exposé

Ausstattung

Parkett, Fliesen, Fußbodenheizung, Wohnküche / offene Küche, Südbalkon, Bad mit Fenster, Dusche, Kabel/Satelliten-TV, Tiefgarage


Immobilie anfragen


Ihre persönliche Beratung

Immo Concept OG

Alfred Peter Bergmann

Immo Concept OG

H +43 676 36 28 176