Uninähe- ruhig und top gelegen
Wohnung
,
4040
Linz
Beschreibung der Immobilie
Uninähe- ruhig und top gelegen
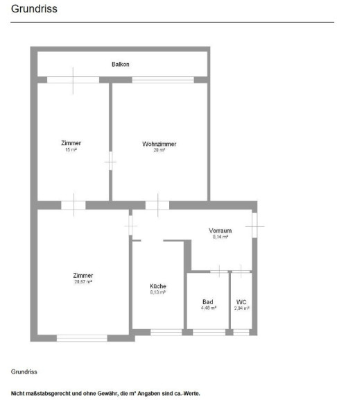
Diese großzügige und lichtdurchflutete 3-Zimmer-Wohnung mit ca. 90 m² Wohnfläche vereint urbanes Leben mit naturnaher Ruhe in nahezu perfekter Balance.In einer begehrten Wohnlage unweit der Universität gelegen, besticht sie durch ihre außergewöhnlich ruhige Atmosphäre und eine grüne Umgebung, die zum Durchatmen einlädt. Ob Wandern, Radfahren oder entspannte Spaziergänge – die Natur beginnt hier direkt vor der Haustür und macht jeden Tag ein kleines Stück lebenswerter.
Die Wohnung befindet sich im 3. Liftstock eines gepflegten Hauses und überzeugt durch einen durchdachten Grundriss. Die drei Zimmer bieten vielfältige Nutzungsmöglichkeiten – vom gemütlichen Wohnbereich über ein ruhiges Schlafzimmer bis hin zu einem inspirierenden Arbeits- oder Gästezimmer. Besonders hervorzuheben ist die separat gelegene, neuwertige Küche, die mit ihrem eigenen Raum sowohl Hobbyköche als auch Designliebhaber begeistert.
Das Badezimmer verfügt über ein Fenster, das für natürliches Licht und angenehme Belüftung sorgt, sowie über eine Badewanne – perfekt für entspannte Abende.
Ein großzügiger Kellerraum bietet zusätzlichen Stauraum, während der Balkon mit seiner herrlichen Abendsonne zum Verweilen, Lesen oder Genießen eines Glases Wein einlädt.
Mit nur geringem Aufwand lässt sich diese Wohnung in ein wahres Wohnjuwel verwandeln.
Alle Dinge des täglichen Bedarfs sind bequem fußläufig erreichbar, die Straßenbahn liegt nur sieben Gehminuten entfernt, die Universität ist in nur fünf Minuten erreichbar. Ein Parkplatz kann angemietet werden.
Eine Wohnung, die Lage, Lebensqualität und Potenzial auf wunderbare Weise vereint!
Eckdaten Objektnr. 141/84992
| Art: | Wohnung |
| Land: | Österreich |
| Baujahr: | 1961 |
| Kaufpreis: | 330.000,00 € |
| Provision: | 3 % |
| Betriebskosten: | 264,38 € |
| MwSt Gesamt: | 26,44 € |
| Wohnfläche: | 87,68 m² |
| Zimmer: | 3 |
| Bäder: | 1 |
| WC: | 1 |
| Balkone: | 1 |
| Heizwärmebedarf: | C 66,00 kWh/m²a |
| fGEE: | C 1,41 |
Ausstattung
Personenaufzug
Ihre persönliche Beratung
Dieser Makler ist ein offizielles Mitglied des IR – ir.at Mehr Erfahren
