hammahaus – belagsfertig gebaut | limitierte baukapazität 2026 bei hammahäusern gibt’s koa blabla.

Haus - Einfamilienhaus, 4053 Ansfelden


wir realisieren 2026 eine limitierte anzahl belagsfertiger einfamilienhäuser mit klarer leistung, persönlicher begleitung und echten fixpreisen. kein preispoker. keine nachträge. keine überraschungen.

Beschreibung der Immobilie

hammahaus – belagsfertig gebaut | limitierte baukapazität 2026 bei hammahäusern gibt’s koa blabla.

hammahaus – belagsfertig gebaut | limitierte baukapazität 2026 



bei hammahäusern gibt’s koa blabla.




das hammahaus – was das konkret heißt



✅ massiv gebautes baumeister-haus
belagsfertige ausführung mit klar definiertem leistungsumfang

fixpreis bei kaufanbot – was wir sagen, gilt

unabhängige baubegleitung
✅ individuelle einreichplanung möglich

✅ überschaubare projektanzahl – persönliche betreuung statt massenabwicklung




technik & standardausstattung



standardmäßig kalkuliert als flachdach
technisch setzen wir auf bewährte, zeitgemäße lösungen:

luftwärmepumpe, fußbodenheizung, elektrische rollläden,

großzügige hebeschiebetüren (ca. 3 m)
sowie fenster in kunststoff–alu-ausführung.



kein schnickschnack – sondern das, was im alltag wirklich zählt.




leitmodell 2026




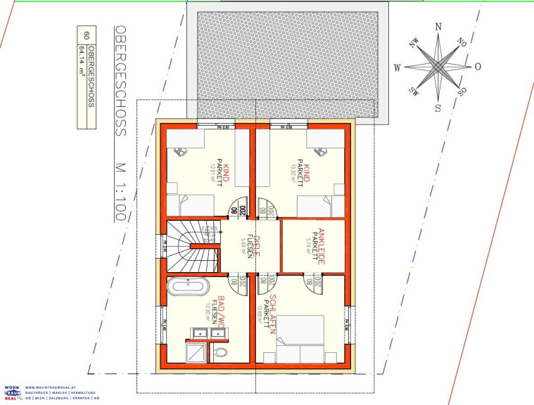
  • einfamilienhaus mit ca. 133 m² wohnfläche



  • funktionaler, familiengerechter grundriss



  • grundrisse dienen als basis – geplant wird individuell





preis & kalkulation



wir arbeiten bewusst ohne pauschale online-preise,

weil grundstück, dachform und umfang entscheidend sind.



wichtig für dich:

👉 alle genannten preise sind fixpreise
👉 keine indexanpassung, keine nachverrechnung



als orientierung:

ein belagsfertiges hammahaus liegt deutlich unter dem aktuellen marktniveau

ehrlich kalkuliert und sauber gebaut.




limitierte baukapazität 2026




  • max. 5 belagsfertige einfamilienhäuser



  • baubeginn verbindlich 2026



  • preisfixierung bei unterzeichnung des kaufanbots





so geht’s weiter



schick uns kurz die eckdaten zu deinem grundstück

oder ruf direkt an –

dann sagen wir dir rasch, klar und verbindlich,

was dein hammahaus kostet.



📞 jakob hammer
0660 / 444 7272

Infrastruktur / Entfernungen

Gesundheit
Arzt <500m
Apotheke <1.500m
Klinik <5.500m

Kinder & Schulen
Kindergarten <500m
Schule <1.000m
Universität <9.500m

Nahversorgung
Supermarkt <500m
Bäckerei <3.500m
Einkaufszentrum <1.000m

Sonstige
Bank <500m
Geldautomat <1.000m
Post <2.000m
Polizei <1.500m

Verkehr
Bus <500m
Straßenbahn <4.000m
Bahnhof <500m
Autobahnanschluss <1.500m
Flughafen <7.500m

Angaben Entfernung Luftlinie / Quelle: OpenStreetMap

Eckdaten Objektnr. 5576/3520

Art: Haus - Einfamilienhaus
Land: Österreich
Zustand: Erstbezug
Alter: Neubau
Provision: 3% des Kaufpreises zzgl. 20% USt.
Wohnfläche: 133,00 m²
Zimmer: 5
Bäder: 2
WC: 2
Immobilie merken Exposé

Ausstattung

Fußbodenheizung, Bad mit Fenster, Badewanne, Dusche


Immobilie anfragen


Ihre persönliche Beratung

Wohntraumreal GmbH

Jakob Hammer

Wohntraumreal GmbH

T +43 660 444 7272