++NEU++ gemütliche 4-Zimmer Neubauwohnung mit Grünblick und Loggia- Vollausgestattet & möbliert!

Wohnung , 1200 Wien,Brigittenau , Vorgartenstraße


Vorgartenstraße, Mexikoplatz, Engerthstraße

Beschreibung der Immobilie

++NEU++ gemütliche 4-Zimmer Neubauwohnung mit Grünblick und Loggia- Vollausgestattet & möbliert!

Hochwertige 4-Zimmer-Neubauwohnung in Top-Lage des 2. Bezirks – 96 m²



Zum Verkauf gelangt diese ca. 93 m² große, hochwertig ausgestattete 4-Zimmer-Neubauwohnung in ausgezeichneter Lage im 2. Wiener Gemeindebezirk.




Besichtigungstermine



Zur Vereinbarung eines Besichtigungstermins bitten wir Sie, uns unbedingt eine schriftliche Anfrage zukommen zu lassen. Wir antworten verlässlich noch am selben Tag!




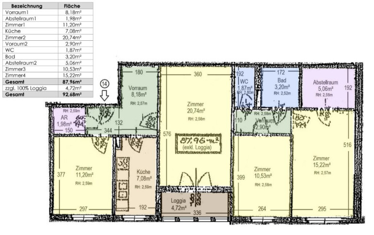
Raumaufteilung



  • Vorraum
  • Getrenntes WC
  • Badezimmer mit Dusche
  • Badezimmer mit Dusche und WC
  • Getrennte Küche
  • Zimmer
  • Zimmer
  • Zimmer
  • Zimmer


(Siehe Grundriss und aktuelle Fotos)




Zustand



Die Wohnung ist gepflegt und wird wie sie liegt und steht verkauft.




Ausstattung



Diese Wohnung überzeugt durch ihre hochwertige Ausstattung:



  • Edler Parkettboden
  • Markenarmaturen in den Nassräumen
  • Und mehr



Das Haus



Die Wohnung befindet sich im 3. Stock eines gepflegten Neubaus mit Lift.




Lage



Die Vorgartenstraße 107 liegt im Herzen des 2. Wiener Gemeindebezirks Leopoldstadt, in einem aufstrebenden und beliebten Wohngebiet. Die Lage überzeugt durch ihre Nähe zur Innenstadt sowie zu zahlreichen Grünflächen und Freizeitmöglichkeiten entlang der Donau.



Umgebung und Infrastruktur:
Die direkte Umgebung bietet eine hervorragende Infrastruktur. In wenigen Gehminuten erreichen Sie Supermärkte, Apotheken, Restaurants und Cafés. Schulen, Kindergärten und medizinische Einrichtungen befinden sich ebenfalls in unmittelbarer Nähe. Die Millennium City und das Donauzentrum bieten zusätzlich zahlreiche Einkaufsmöglichkeiten und Freizeitaktivitäten.



Die Nähe zum Prater macht diese Lage besonders attraktiv. Der weitläufige Park lädt zu Spaziergängen, sportlichen Aktivitäten und entspannten Stunden im Grünen ein. Der Donaukanal sowie die Donauinsel sind ebenfalls rasch erreichbar und bieten ideale Erholungsmöglichkeiten.




Verkehrsanbindung



Die Anbindung an das öffentliche Verkehrsnetz ist ausgezeichnet:



  • Die U-Bahn-Station U1 Vorgartenstraße liegt nur wenige Minuten zu Fuß entfernt und bringt Sie innerhalb kürzester Zeit ins Stadtzentrum.
  • Die Straßenbahnlinien 5 und 2 sowie mehrere Buslinien befinden sich in unmittelbarer Nähe.
  • Der Praterstern, ein wichtiger Verkehrsknotenpunkt, ist ebenfalls leicht erreichbar und bietet Verbindungen mit der U-Bahn (U1 und U2), S-Bahn und Regionalzügen.


Für den Individualverkehr ist die Lage ebenfalls ideal: Über die nahegelegene A23 (Südosttangente) und die Donauuferautobahn (A22) gelangen Sie rasch in andere Stadtteile Wiens sowie in das Umland.



Zusammenfassung:
Die Adresse Vorgartenstraße 107 vereint urbane Lebensqualität mit hervorragender Anbindung an das öffentliche Verkehrsnetz sowie eine naturnahe Umgebung. Ob Sie die Vorzüge der Innenstadt genießen oder entspannte Stunden im Grünen verbringen möchten – hier wohnen Sie an einem idealen Ausgangspunkt für beides.




Preis



  • Lastenfreier Verkaufspreis: € 589.000,-



Diese Wohnung kombiniert modernes Wohnen mit erstklassiger Infrastruktur und hervorragender Verkehrsanbindung. Falls wir Ihr Interesse geweckt haben, freuen wir uns über Ihre schriftliche Anfrage!





Zur Vereinbarung eines Besichtigungstermins lassen Sie uns bitte jedenfalls eine E-Mailanfrage zukommen!



Der IMMY ist die renommierteste Auszeichnung für Wiener Makler- und Verwalterbetriebe im Bereich Wohnimmobilien. Wir sind stolz den goldenen IMMY für das Jahr 2019 gewonnen zu haben!



Vielen Dank vor allem an unsere Kunden! Unser Unternehmen wurde auch zum Besten Start Up und in den Jahren 2015, 2018, 2019 und 2020 als Qualitätsmakler ausgezeichnet!



Bitte achten Sie darauf, dass Sie diese Immobilie, nach Ihrer Anfrage bei Adonia Immobilien, nicht auch bei einem anderen Immobilienmaklerbüro anfragen! Vielen Dank!



Nicht alle unsere Immobilien finden Sie auf den gängigen Plattformen. Wir freuen uns auf Ihren Besuch auf unserer Homepage unter adonia.at 



Wir weisen ausdrücklich auf unser wirtschaftliches Naheverhältnis mit dem Abgeber/ der Abgeberin hin!  Unsere gesetzlichen Pflichten als Doppelmakler werden dadurch jedoch nicht beeinträchtigt. Irrtum und Änderungen vorbehalten. 



Alle hier veröffentlichen Informationen basieren auf den uns von dem Abgeber/ der Abgeberin zur Verfügung gestellten Informationen und wurden nicht selbst erhoben.



Unsere Allgemeinen Geschäftsbedingungen können Sie sowohl in dem Ihnen zugesandten Expose einsehen als auch auf unserer Homepage. Wir weisen ausdrücklich darauf hin, dass diese AGBs Vertragsinhalt werden.



Der Schutz von personenbezogenen Daten ist uns wichtig und auch gesetzlich gefordert. Die Verarbeitung Ihrer personenbezogenen Daten erfolgt nach den datenschutzrechtlichen Bestimmungen. Auf unserer Homepage (unter Datenschutzinformation) finden Sie eine Übersicht die Sie über die wichtigsten Aspekte der Verarbeitung personenbezogener Daten informieren soll.


Wir weisen darauf hin, dass zwischen dem Vermittler und dem zu vermittelnden Dritten ein familiäres oder wirtschaftliches Naheverhältnis besteht.

Infrastruktur / Entfernungen

Gesundheit
Arzt <250m
Apotheke <500m
Klinik <750m
Krankenhaus <750m

Kinder & Schulen
Schule <250m
Kindergarten <250m
Universität <1.250m
Höhere Schule <1.750m

Nahversorgung
Supermarkt <250m
Bäckerei <500m
Einkaufszentrum <1.000m

Sonstige
Geldautomat <500m
Bank <500m
Post <500m
Polizei <750m

Verkehr
Bus <250m
U-Bahn <1.000m
Straßenbahn <500m
Bahnhof <750m
Autobahnanschluss <1.250m

Angaben Entfernung Luftlinie / Quelle: OpenStreetMap

Eckdaten Objektnr. 62844

Art: Wohnung
Land: Österreich
Zustand: Gepflegt
Alter: Neubau
Kaufpreis: 588.900,00
Provision: 3% des Kaufpreises zzgl. 20% USt.
Wohnfläche: 93,02 m²
Zimmer: 4
Bäder: 2
WC: 2
Heizwärmebedarf: 41,80 kWh/m²a
fGEE: 0,98
Immobilie merken Exposé

Ausstattung

Fliesen, Parkett, Gas, Fußbodenheizung, Einbauküche, Personenaufzug, Dusche, Kabel/Satelliten-TV


Immobilie anfragen


Ihre persönliche Beratung

Adonia Realitätenvermittlung GmbH

Luca Schelodetz

Adonia Immobilien GmbH

T 0664/910 15 40