Tolle Gelegenheit - Landleben zum Einstiegspreis – Haus mit Garten & viel Potenzial!

Haus , 7461 Goberling , Goberling


Willkommen in Goberling, einer charmanten Gemeinde im Burgenland! Diese Immobilie überzeugt durch ihre ruhige Lage, die gleichzeitig eine hervorragende Anbindung an die umliegenden Städte bietet. In unmittelbarer Nähe finden Sie eine Bushaltestelle, die Ihnen die Mobilität erleichtert. Genießen Sie die ländliche Idylle und die Nähe zur Natur, während Sie alle Annehmlichkeiten des täglichen Lebens in greifbarer Nähe haben. Ein perfekter Ort zum Wohnen und Wohlfühlen!

Beschreibung der Immobilie

Tolle Gelegenheit - Landleben zum Einstiegspreis – Haus mit Garten & viel Potenzial!

Tolle Gelegenheit - Landleben zum Einstiegspreis – Haus mit Garten & viel Potenzial!





Dieses gepflegte Einfamilienhaus in 7461 Goberling bietet den idealen Mix aus Ruhe, Platz und leistbarem Eigentum.



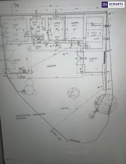
Auf rund 100 m² Wohnfläche und einer Nutzfläche von ca. 200 m² eröffnet sich viel Raum für individuelle Wohnideen – perfekt für Familien, Ruhesuchende oder handwerklich Begabte mit Blick fürs Potenzial.





Das 536 m² große Grundstück punktet mit einem großzügigen Garten (ca. 334 m²) – ideal zum Entspannen, Gärtnern oder für Kinder und Haustiere. Die Immobilie befindet sich in gepflegtem Zustand und ist sofort nutzbar.






Highlights auf einen Blick





  • ca. 100 m² Wohnfläche
  •  ca. 200 m² Nutzfläche (viel Stauraum & Nebenflächen)
  • Grundstück ca. 536 m²
  • Garten ca. 334 m²
  • Alleineigentum
  • Carport & Parkplatz
  • Ruhige, ländliche Lage mit Grünblick
  • Kaufpreis nur € 149.000




Ausstattung



Fliesen- und Parkettböden, Küche & Bad vorhanden, Satteldach, Ziegelbauweise sowie ein gemütliches Wohnambiente mit viel Charme. Die vorhandenen Nebenflächen bieten zusätzliche Nutzungsmöglichkeiten (Werkstatt, Lager, Hobbyräume etc.).





Lage



Ruhige Lage im idyllischen Südburgenland mit guter Anbindung:



  •  Bushaltestelle ca. 75 m
  • Nahversorgung, Schule & Ärzte in wenigen Autominuten erreichbar
  • Natur, Ruhe & Erholung direkt vor der Haustür






Fazit



Ein ehrliches Haus mit Charakter, viel Platz und Garten – ideal für alle, die leistbares Eigentum suchen und das Landleben schätzen.





Worauf noch warten?



Vereinbaren Sie noch heute eine Besichtigung oder eine persönliche Beratung mit uns!



Sie wollen Ihre Immobilie verkaufen? Dann sind Sie bei uns goldrichtig!




Wir sind gerne für Sie da und unterstützen Sie unverbindlich bei der Bewertung Ihrer Immobilie. Mit viel Sorgfalt stellen wir Ihnen alle wichtigen Informationen und Unterlagen zusammen, damit Sie die besten Entscheidungen treffen können.



In Kooperation mit unserer SFI Vermögenstreuhand begleiten wir Sie bei der Verwirklichung Ihres Traumobjekts und unterstützen Sie beim nachhaltigen Vermögensaufbau.



Mit unseren erfahrenen Experten sorgen wir dafür, dass Sie die besten Konditionen erhalten – damit Ihre Träume Wirklichkeit werden!



www.schantl-ith.at in Kooperation mit www.sfi-invest.com



Die Angaben über das angebotene Objekt erfolgen mit der Sorgfalt eines ordentlichen Immobilienmaklers; für die Richtigkeit solcher Angaben, die auf Informationen der über das Objekt Verfügungsberechtigten beruhen, wird keine Gewähr geleistet.

Infrastruktur / Entfernungen

Gesundheit
Arzt <4.250m
Apotheke <5.000m

Kinder & Schulen
Schule <3.750m
Kindergarten <4.250m
Universität <5.750m

Nahversorgung
Supermarkt <4.000m
Bäckerei <4.750m

Sonstige
Bank <3.750m
Geldautomat <4.250m
Post <5.250m
Polizei <5.250m

Verkehr
Bus <250m
Bahnhof <5.500m

Angaben Entfernung Luftlinie / Quelle: OpenStreetMap

Eckdaten Objektnr. 294344

Art: Haus
Land: Österreich
Zustand: Gepflegt
Kaufpreis: 149.000,00
Wohnfläche: 100,00 m²
Nutzfläche: 200,00 m²
Grundstücksfl.: 536,00 m²
Bäder: 1
WC: 1
Garten: 334,00 m²
Immobilie merken Exposé

Ausstattung

Fliesen, Parkett, Carport, Parkplatz


Immobilie anfragen


Ihre persönliche Beratung

Schantl ITH Immobilientreuhand GmbH

Christopher Wischenbart, BSc

Schantl ITH Immobilientreuhand GmbH

T +43 664 5411047

H +43 664 2507403