+NÄHE DER FUSSGÄNGERZONE UND DEM BAHNHOF+ STADTVILLA IN MÖDLING

Haus , 2340 Mödling


+++++NÄHE DER FUSSGÄNGERZONE UND DEM BAHNHOF++++ Wohnen und Arbeiten unter einem Dach – diese Stadtvilla in Mödling macht es möglich!

Beschreibung der Immobilie

+NÄHE DER FUSSGÄNGERZONE UND DEM BAHNHOF+ STADTVILLA IN MÖDLING

In guter, ruhiger und zentrale Wohnlage von Mödling steht eine modernisierte Altbauvilla aus dem Jahre 1888 zur Vermietung! Unweit vom Zentrum und dem Bahnhof gelegen, ist diese Villa der Hammer!



Ideal für Familien oder Pendler mit hoher Lebensqualität.



Die Stadtvilla thront auf einem riesigen Grundstück von ca. 911 m²! Die Wohnfläche von rund 250m² verteilt sich auf drei Ebenen und bietet großzügige, lichtdurchflutete Räume mit viel Platz für individuelle Gestaltung. Sie besticht durch ihre historische Architektur, hohen Räumen, gepflegten Parkettböden sowie eine flexible Raumaufteilung.



Die Villa wurde im Jahr 2019 umfassend restauriert und modernisiert. Die Arbeiten umfassten die Innen- und Außenbereiche sowie die Installation einer zeitgemäßen Küche, neuer Bäder und Toiletten und einer effizienten Heizungsanlage.



Sie eignet sich auch perfekt für Wohnen und Arbeiten unter einem Dach, denn sie verfügt über sieben Zimmer.



Die Räumlichkeiten bestechen durch ihren einzigartigen Charme und ihre beeindruckenden Raumhöhen von über 3,25 Metern. Auf der Rückseite des Hauses erwartet Sie ein wahres Gartenparadies! Ein weitläufiger, idyllischer Garten mit Altbaumbestand, der insbesondere im Sommer vielseitig genutzt werden kann. 



Privater Zugang & Parkmöglichkeiten



Der Bahnhof Mödling ist in 5 Gehminuten zu erreichen!!



Perfekt  für Pendler.



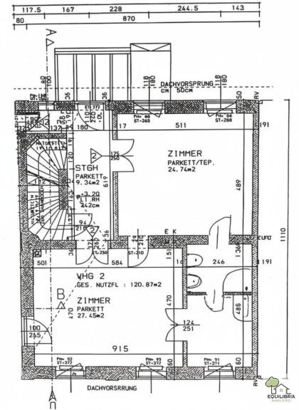
Raumaufteilung:



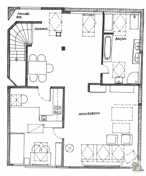
Erdgeschoss 




  • Vorraum, Garderobe



  • gr. Zimmer/Esszimmer



  • Küche (Typ DAN) ist mit hochwertigen Siemens-Geräten ausgestattet, darunter ein Dampfgarer, ein Tellerwärmer und eine amerikanische Gefrier- und Kühlkombination.



  • Zimmer/Büro



  • Ausgang zu Garten & Terrasse



  • Badezimmer/Dusche



  • Gästetoilette




Obergeschoss 




  • Zwei gr. Zimmer /Großer & kleiner Salon



  • kl.Zimmer/Büro oder Abstelraum



  • Badezimmer/Dusche



  • Toilette




Dachgeschoss (mit Klimaanlage)



Das Dachgeschoss ist ein wahres Raumwunder! Es lässt sich perfekt als Schlafbereich oder als eigene Wohneinheit nutzen – und ist damit der ideale Ort für ihre Teenagerkinder.




  • Zimmer/Galerie



  • gr. Zimmer/Schlafzimmer mit raumhohen Einbauschränken



  • kl.Zimmer/Schrankraum oder Schlafzimmer



  • Badezimmer mit Badewanne und Dusche/WC 






Alle Räumlichkeiten sind mit einem TV-Anschluss (Satelliten- und Kabelanschluss) ausgestattet. 





KELLER (teilunterkellert)



  • möglicher Weinkeller ?
  • Technikraum


INTERESSE?
Dann ersuche Ich Sie um Anfrage direkt über diese Immobilienplattform unter Angabe von



  • Namen
  • Telefonnummer 
  • E-Mail-Adresse


Für weitere Informationen und die Vereinbarung eines Besichtigungstermins steht Ihnen Herr Martin LOIBELSBERGER - gerne auch am Wochenende - zur Verfügung!



Ich freue mich von Ihnen zu hören!


Der Immobilienmakler erklärt, dass er – entgegen dem in der Immobilienwirtschaft üblichen Geschäftsgebrauch des Doppelmaklers – einseitig nur für den Vermieter tätig ist.

Infrastruktur / Entfernungen

Gesundheit
Arzt <500m
Apotheke <500m
Klinik <1.000m
Krankenhaus <1.000m

Kinder & Schulen
Schule <1.000m
Kindergarten <500m
Höhere Schule <1.500m

Nahversorgung
Supermarkt <500m
Bäckerei <500m
Einkaufszentrum <500m

Sonstige
Bank <500m
Geldautomat <500m
Post <500m
Polizei <500m

Verkehr
Bus <500m
U-Bahn <5.500m
Straßenbahn <4.500m
Bahnhof <500m
Autobahnanschluss <3.000m

Angaben Entfernung Luftlinie / Quelle: OpenStreetMap

Eckdaten Objektnr. 19287

Art: Haus
Land: Österreich
Gesamtmiete: 3.828,00
Kaltmiete (netto): 3.250,00 €
Kaltmiete: 3.480,00 €
Provision: Gemäß Erstauftraggeberprinzip bezahlt der Abgeber die Provision.
Betriebskosten: 230,00 €
MwSt Gesamt: 348,00 €
Wohnfläche: 250,00 m²
Grundstücksfl.: 911,00 m²
Zimmer: 7
Bäder: 3
WC: 4
Terrassen: 1
Stellplätze: 2
Heizwärmebedarf:  C  104,90 kWh/m²a
fGEE:  D  1,77
Immobilie merken Exposé

Ausstattung

Parkett, Fliesen, Gas, Zentralheizung, Einbauküche, Südbalkon, Bad mit Fenster, Badewanne, Dusche, Kabel/Satelliten-TV, Parkplatz, Alarmanlage


Immobilie anfragen


Ihre persönliche Beratung

equilibria Immobilienmanagement GmbH & Co KG

Martin Loibelsberger

equilibria Immobilienmanagement GmbH & Co KG

H +43 664 75038825

F +43 1 2368219 99