Tolle Lage - Wohnbüro mit Garten/Nähe U6

Büro / Praxis , 1120 Wien,Meidling


Beschreibung der Immobilie

Tolle Lage - Wohnbüro mit Garten/Nähe U6

Ab sofort gelangt dieses nette Wohnbüro mit einem Garten ganz in der Nähe der Meidlinger Hauptstraße zur Vermietung.

Das Büro befindet sich im Erdgeschoss in einem 2008 errichtetem Haus und ist zum Innenhof hin ausgerichtet.

Drei Parkplätze können in in der hauseigenen Garage um je monatlich brutto € 130,00,00 angemietet werden.



Raumaufteilung:



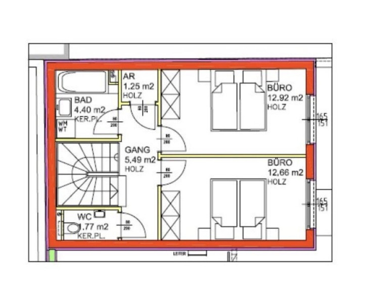
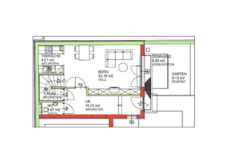
Untere Ebene:




- Büro mit ca. 23 m² und anschließender Teeküche mit ca. 4 m² und

- Ausgang in den Garten mit ca. 15 m²

- Vorraum: ca. 10 m²

- WC: ca. 2 m²

- Abstellraum: ca. 4 m²




Obere Ebene:



- 2 Büros mit jeweils ca. 13 m²

- Bad: Wanne + Waschbecken + Waschmaschinenanschluss mit ca. 4 m²

- WC: ca. 2 m²

- Abstellraum: ca. 1 m² 



- Die Heizkosten betragen monatlich netto € 81,50 zzgl. 20 % Ust. € 97,80 und

- die Kosten für das Warmwasser monatlich netto 81,50 zzgl. 20 % Ust. € 97,80

  somit resultiert eine Gesamtmiete in der Höhe von monatlich € 1.724,22.
 



Ausstattung:



- Einbauküche 

- Parkettboden



Infrastruktur:



- Die U-Bahnlinie 6: Station Meidling

- Diverse Schnellbahnlinien

- die Straßenbahnlinie 62 und die

- Busse 8A, 9A, 59A und 62A sind ganz in der Nähe erreichbar.

- Perfekt durch zahlreiche Geschäfte des täglichen Bedarfs.

- Die Fußgängerzone „Meidlinger Hauptstraße“ befindet sich vor der Haustür.





Energieausweis laut 29.4.2021 ist vorhanden:
und weist einen Heizwärmebedarf von 50,8  kWh/m² pro Jahr auf und entspricht der Klassifizierung C.



Aufgrund der bereits seit 2014 geltenden EU-Richtlinien zum Fernabsatz- und Auswärtsgeschäfte-Gesetz bitten wir um Ihr Verständnis, dass wir Ihnen die Objekt-Unterlagen erst nach Ihrer Bestätigung, dass Sie unser Tätigwerden wünschen und über Ihre Rücktrittsrechte aufgeklärt wurden, zusenden können.



Bevor wir Ihnen die Unterlagen zuschicken, erhalten Sie eine Mail in der Sie dies bestätigen müssen. Wir bedanken uns für Ihr Vertrauen.


Wir weisen darauf hin, dass zwischen dem Vermittler und dem zu vermittelnden Dritten ein familiäres oder wirtschaftliches Naheverhältnis besteht.


Der Vermittler ist als Doppelmakler tätig.

Infrastruktur / Entfernungen

Gesundheit
Arzt <500m
Apotheke <500m
Klinik <500m
Krankenhaus <1.500m

Kinder & Schulen
Schule <500m
Kindergarten <500m
Universität <1.000m
Höhere Schule <500m

Nahversorgung
Supermarkt <500m
Bäckerei <500m
Einkaufszentrum <500m

Sonstige
Geldautomat <500m
Bank <500m
Post <500m
Polizei <500m

Verkehr
Bus <500m
U-Bahn <500m
Straßenbahn <500m
Bahnhof <500m
Autobahnanschluss <2.500m

Angaben Entfernung Luftlinie / Quelle: OpenStreetMap

Eckdaten Objektnr. 1144

Art: Büro / Praxis
Land: Österreich
Baujahr: 2008
Kaltmiete (netto): 1.018,75 €
Kaltmiete: 1.273,85 €
Miete / m²: 12,50 €
Provision: 3 Bruttomonatsmieten zzgl. 20% USt.
Betriebskosten: 255,10 €
MwSt Gesamt: 254,77 €
Nutzfläche: 81,50 m²
Zimmer: 3
Bäder: 1
WC: 2
Stellplätze: 3
Garten: 15,00 m²
Heizwärmebedarf:  C  50,80 kWh/m²a
Immobilie merken Exposé

Ausstattung

Parkett, Fernwärme, Personenaufzug, Badewanne, Garage, Tiefgarage, Teeküche


Immobilie anfragen


Ihre persönliche Beratung

IMMOBILIENJÄGER

Mag. Andrea Jäger

IMMOBILIENJÄGER

T +43 1 408 86 75

H +43 660 110 22 35