#SQ - SANIERUNGSBEDÜRFTIGER STILALTBAU MIT BALKON - MARIAHILFERSTRAßE / TOP 23

Wohnung , 1150 Wien


Die Wohnung befindet sich im 15. Wiener Gemeindebezirk in unmittelbarer Nähe zu Schönbrunn, dem Auer-Welsbach-Park sowie dem Schwendermarkt. Die Einheit besticht durch die perfekte Raumaufteilung und die sehr gute öffentliche Verkehrsanbindung samt Nahversorgung. In Fußweite fahren die Straßenbahn-Linien 5, 9, 10, 18, 46, 49, 52 und 60 sowie die Nightline N54. In nur wenigen Stationen erreichen Sie mit der Straßenbahn den Westbahnhof (U6,U3) Die Infrastruktur bietet Ihnen alles für den täglichen Bedarf. So erreichen Sie fußläufig in wenigen Minuten diverse Supermärkte, Restaurants, Cafés, Schulen, Kindergärten, Banken, Apotheken, uvm.

Beschreibung der Immobilie

#SQ - SANIERUNGSBEDÜRFTIGER STILALTBAU MIT BALKON - MARIAHILFERSTRAßE / TOP 23

Zum Verkauf steht eine sanierungsbedürftige Stilaltbauwohnung in einem imposanten Haus der Jahrhundertwende in der äußeren Mariahilferstraße. Das Objekt ist komplett hof - und straßenseitig ausgerichtet und liegt im zweiten Liftstock. Das Objekt ist hell und verfügt über die klassischen Altbauelemente wie Kastenfenster, Altbautüren und eine tolle Raumhöhe. Die Liegenschaft verfügt in der Stiege 1 über einen Personenlift. Der Hof ist weitläufig und sehr schön begrünt. 



Im gesamten Gebäude werden insgesamt 14 sanierungsbedürftige Einheiten verkauft.  Zusätzlich können 3 unbefristete Wohnung erworben werden. Ebenso werden 4 leere GF Lokale als auch ein befristetes Geschäftslokal angeboten. 



Ein Beschluss zur Begrünung der gesamten äußeren Mariahilferstraße ist bereits seitens der Stadt Wien in Arbeit, und die Verknappung von 2 zu einer Fahrspur, werden diesen Teil der Stadt als besonders attraktiv machen. 





Eckdaten im Überblick: 



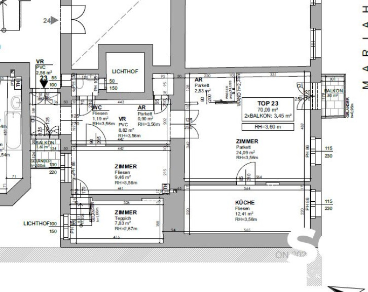
WNFL: ca. 70,09m² 

Zimmer: 2,5

Eingang

Vorraum

separates WC

SZ 

Badezimmer 

Wohnküche 

AR 





Kosten: 
Kaufpreis: € 275.000,-

Provision: 3 % vom KP zzgl. gesetzl. Mwst. 





Kontaktdaten: 



Für Fragen und Besichtigungen kontaktieren Sie bitte Frau Ines Guelmami unter 0676 40 60 310 oder unter ines.guelmami@stadtquartier.at



Weitere Objekte auf: 



www.stadtquartier.at 


Hinweis gemäß Energieausweisvorlagegesetz: Ein Energieausweis wurde vom Eigentümer bzw. Verkäufer, nach unserer Aufklärung über die generell geltende Vorlagepflicht, sowie Aufforderung zu seiner Erstellung noch nicht vorgelegt. Daher gilt zumindest eine dem Alter und der Art des Gebäudes entsprechende Gesamtenergieeffizienz als vereinbart. Wir übernehmen keinerlei Gewähr oder Haftung für die tatsächliche Energieeffizienz der angebotenen Immobilie.


Wir weisen darauf hin, dass zwischen dem Vermittler und dem zu vermittelnden Dritten ein familiäres oder wirtschaftliches Naheverhältnis besteht.


Der Vermittler ist als Doppelmakler tätig.

Infrastruktur / Entfernungen

Gesundheit
Arzt <500m
Apotheke <500m
Klinik <500m
Krankenhaus <2.000m

Kinder & Schulen
Schule <500m
Kindergarten <500m
Universität <1.000m
Höhere Schule <2.000m

Nahversorgung
Supermarkt <500m
Bäckerei <500m
Einkaufszentrum <1.000m

Sonstige
Geldautomat <500m
Bank <500m
Post <500m
Polizei <1.000m

Verkehr
Bus <500m
U-Bahn <1.000m
Straßenbahn <500m
Bahnhof <1.000m
Autobahnanschluss <4.000m

Angaben Entfernung Luftlinie / Quelle: OpenStreetMap

Eckdaten Objektnr. 21179

Art: Wohnung
Land: Österreich
Baujahr: 1900
Zustand: Teil_vollrenovierungsbed
Alter: Altbau
Kaufpreis: 275.000,00
Provision: 3% des Kaufpreises zzgl. 20% USt.
Wohnfläche: 70,09 m²
Zimmer: 2,50
Bäder: 1
WC: 2
Balkone: 1
Immobilie merken Exposé

Immobilie anfragen


Ihre persönliche Beratung

STADTQUARTIER Home GmbH

BBA Ines Guelmami

STADTQUARTIER Real Estate Group

T +43 676 406 03 10

H +43 676 406 03 10