Gemütliches Einfamilienhaus mit 102m² Wohnfläche, Lagerraum, Wintergarten und uneinsehbarem Sonnengarten.

Haus - Einfamilienhaus, 2475 Neudorf


Dieses modernisierte Einfamilienhaus befindet sich in ruhiger Lage in Neudorf, nur wenige Minuten von Parndorf mit seinem Designer-Outlet und vielen Geschäften des täglichen Bedarfs entfernt. Neudorf verfügt über eine familienfreundliche Infrastruktur mit einer Volksschule und einem Kindergarten, beides in nur wenigen Minuten zu Fuß erreichbar. Wer im Sommer nicht weit weg ins kühle Nass springen möchte, genießt das Natur-Schwimmbad direkt in Neudorf - ein Geheimtipp... Die gute Anbindung mit den öffentlichen Verkehrsmittel - mit Busverbindung und dem Bahnhof Neudorf - macht das Pendeln nach Wien oder zu anderen Zielen in der Nähe unkompliziert. Mit dem Auto gelangen Sie in ca. 38 Minuten nach Wien bzw. in ca. 20 Minuten nach Bratislava. Hier wohnen Sie ruhig und dennoch zentral!

Beschreibung der Immobilie

Gemütliches Einfamilienhaus mit 102m² Wohnfläche, Lagerraum, Wintergarten und uneinsehbarem Sonnengarten.

Modernes Finish trifft auf alte Mauern!



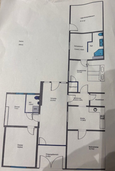
Hier erwartet Sie ein liebevoll gepflegtes Einfamilienhaus, das mit seinem besonderem Raumangebot und der schönen Lage alles bietet, was das Herz begehrt. Auf einer Fläche von insgesamt ca. 175 m² erstrecken sich vier einladende Zimmer, die in 2 Bereiche durch den Wintergarten getrennt sind sowie Abstell- und Lagerräume, die Ihnen und Ihrer Familie genügend Platz für individuelle Gestaltung bieten.



Der Grundriss schafft eine harmonische Verbindung zwischen Wohn- und Schlafbereichen. Die hellen Räume laden dazu ein, neue Erinnerungen zu schaffen. Ob gemütliche Familienabende im Wohnzimmer oder entspannte Stunden im Sonnengarten – hier finden Sie den perfekten Rückzugsort.



Der großzügige Garten, umgeben von der ruhigen Natur, ist ein Paradies für Gartenliebhaber und bietet sowohl Sichtschutz von außen als auch ausreichend Platz für Spiel und Spaß. Genießen Sie entspannte Sonnenstunden im Freien und gestalten Sie hier Ihr zweites, grünes Wohnzimmer.



Das Haus teil sich auf wie folgt:



Man betritt das Haus über den Eingangsbereich mit geräumigem Vorraum. Dann geht es weiter zum Wintergarten. Links kommt man zum Schlafzimmer und Spielzimmer (bzw. Kinderzimmer oder Home-Office) mit eigenem WC und Vorbereitung für Dusche.



Biegt man im Wintergarten nach rechts ab, kommt man über einen kleinen Vorraum (mit separatem Abstellraum) in die Küche und dann weiter ins Wohnzimmer. Links vom Vorraum befindet sich ein Schlaf- oder Kinderzimmer mit einem kleinen Schrankraum/ Abstellraum und dahinter das Hauptbadezimmer mit Dusche und WC sowie einen Ankleide-/Hauswirtschaftsraum.



Die Küche ist voll ausgestattet und möbliert - Badezimmer und WC´s sind ebenfalls möbliert. Der Garten verfügt über einen Regenwassertank für die Bewässerung, eine Gartenhütte mit Strom und einen Stahlwandpool mit 360 cm Durchmesser. 



Das angrenzende Lager kann vom Garten aus betreten werden und bietet viel Stauraum für dies und das.



Die Verkehrsanbindung ist durch die nahegelegene Bus- und Bahnverbindung optimal, sodass Sie schnell und unkompliziert in die umliegenden Orte und Städte gelangen. Besonders hervorzuheben ist die Nähe zu Kindergarten und Volksschule, die für Familien mit Kindern ein großer Vorteil ist.



Vereinbaren Sie noch heute einen Besichtigungstermin - ich freue mich auf Ihre Anfrage!



Hinweis zu Bildbearbeitung: einige Bilder wurden durch helleres Tageslicht bearbeitet bzw. wurde der Garten mit KI durch sonniges Wetter verändert. Alle Fotos Originalfotos! 

Noch nichts gefunden? Wir informieren Sie über geeignete Immobilienangebote noch vor allen anderen.
Legen Sie jetzt Ihren individuellen Suchagenten unter folgendem Link an. Wir schicken Ihnen passende Immobilien exklusiv vorab zu.

Suchagent anlegen - https://annemarie-reeb.service.immo/registrieren/de


Der Vermittler ist als Doppelmakler tätig.

Infrastruktur / Entfernungen

Gesundheit
Arzt <4.500m
Apotheke <6.000m

Kinder & Schulen
Kindergarten <4.000m
Schule <500m

Nahversorgung
Supermarkt <4.500m
Einkaufszentrum <7.000m
Bäckerei <5.000m

Sonstige
Bank <500m
Geldautomat <500m
Post <4.500m
Polizei <3.500m

Verkehr
Bus <500m
Autobahnanschluss <1.500m
Bahnhof <1.500m
Flughafen <10.000m

Angaben Entfernung Luftlinie / Quelle: OpenStreetMap

Eckdaten Objektnr. 1853/59

Art: Haus - Einfamilienhaus
Land: Österreich
Zustand: Gepflegt
Kaufpreis: 329.000,00
Provision: 3% des Kaufpreises zzgl. 20% USt.
Betriebskosten: 66,00 €
Heizkosten: 180,00 €
Wohnfläche: 102,00 m²
Nutzfläche: 175,00 m²
Grundstücksfl.: 449,00 m²
Zimmer: 4
Bäder: 1
WC: 2
Terrassen: 1
Garten: 254,00 m²
Heizwärmebedarf:  F  236,00 kWh/m²a
fGEE:  E  2,61
Immobilie merken Exposé

Ausstattung

Estrichboden, Fliesen, Laminatboden, Steinboden, Gas, Zentralheizung, Einbauküche, Dusche


Immobilie anfragen


Ihre persönliche Beratung

Annemarie Reeb

SMILE Immo e.U.

T +43 699 150 46 430