Generalsanierte, moderne 3-Zimmer-Galeriewohnung inkl. Parkplatz - in Wildon! Die Sanierungsarbeiten sind noch nicht abgeschlossen!

Wohnung , 8410 Wildon , Unterer Markt 3


Wildon Nahe Murradweg

Beschreibung der Immobilie

Generalsanierte, moderne 3-Zimmer-Galeriewohnung inkl. Parkplatz - in Wildon! Die Sanierungsarbeiten sind noch nicht abgeschlossen!

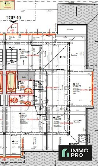
Zur Vermietung gelangt diese 3-Zimmer-Wohnung mit einer Nutzfläche von 61,80 m² im 2. Obergeschoss ohne Lift.



Aufteilung:



Vorraum, Badezimmer, Toilette, Wohnküche mit Küchenzeile mit E-Herd mit Ceranfeld, Geschirrspüler, Dunstabzug (Umluft), Kühlschrank mit Gefrierkombination, Schlafzimmer, Kinderzimmer, Galerie.



Die Wohnung wird auf 5 Jahre befristet vermietet. Es wird ein Kündigungsverzicht von 1 Jahr und einer darauffolgenden 3-monatigen Kündigungsfrist vereinbart.



Der Wohnung ist ein Parkplatz zugeordnet und ist im Preis enthalten. Es fällt eine Kaution von € 2.150,-- an.



Der Bezug ist voraussichtlich ab Februar 2026 möglich! Die Sanierungsarbeiten sind derzeit noch im Gange.



Für weitere Fragen oder zur Vereinbarung eines Besichtigungstermins, schicken Sie uns gerne eine Anfrage!


Wir weisen darauf hin, dass zwischen dem Vermittler und dem zu vermittelnden Dritten ein familiäres oder wirtschaftliches Naheverhältnis besteht.


Der Immobilienmakler erklärt, dass er – entgegen dem in der Immobilienwirtschaft üblichen Geschäftsgebrauch des Doppelmaklers – einseitig nur für den Vermieter tätig ist.

Infrastruktur / Entfernungen

Gesundheit
Arzt <450m
Apotheke <600m

Kinder & Schulen
Schule <150m
Kindergarten <125m

Nahversorgung
Supermarkt <600m
Bäckerei <250m

Sonstige
Bank <150m
Geldautomat <150m
Post <2.700m
Polizei <75m

Verkehr
Bus <25m
Autobahnanschluss <3.125m
Bahnhof <325m

Angaben Entfernung Luftlinie / Quelle: OpenStreetMap

Eckdaten Objektnr. 7278/42761

Art: Wohnung
Land: Österreich
Gesamtmiete: 706,38
Kaltmiete (netto): 525,30 €
Kaltmiete: 642,16 €
Provision: Gemäß Erstauftraggeberprinzip bezahlt der Abgeber die Provision.
Betriebskosten: 116,86 €
MwSt Gesamt: 64,22 €
Wohnfläche: 61,80 m²
Nutzfläche: 61,80 m²
Zimmer: 3
Bäder: 1
WC: 1
Immobilie merken Exposé

Immobilie anfragen


Ihre persönliche Beratung

ImmoPro Immobilien GmbH

Immobilienservice Graz

STIWOG Immobilien GmbH

T +43 316 377777 2019

H +4366488831457