Moderne 2-Zimmer Wohnung mit Balkon und Garage

Wohnung - Etage, 4641 Steinhaus


Diese wundervolle Mietwohnung befindet sich im Zentrum von Steinhaus bei Wels. Dabei erreicht man in nur wenigen Schritten viele Geschäfte, Gastronomien, Bahnhof, Dienstleister und vieles mehr. Vor allem die hervorragende Lage des Wohngebäudes ermöglicht es in Kürze größere Städte wie Wels oder auch ruhige, ländliche Gebiete zu erreichen.

Beschreibung der Immobilie

Moderne 2-Zimmer Wohnung mit Balkon und Garage

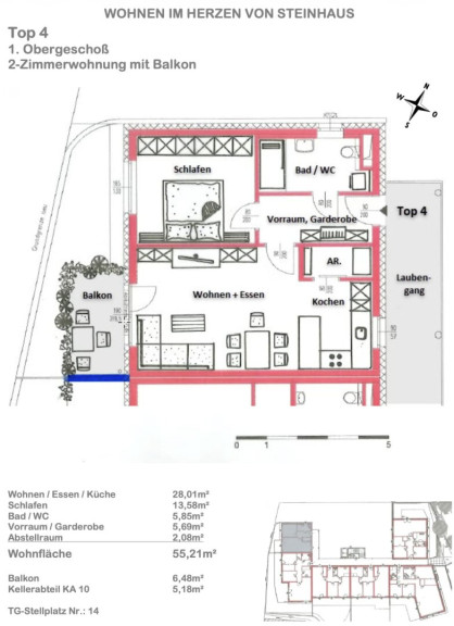
Diese moderne 2-Zimmer Wohnung in Steinhaus bei Wels zeichnet sich besonders für ihre Raumaufteilung und ideale Lage aus. Der durchdachte Grundriss ermöglicht Platz für einen schönen Eingangsbereich, ein ruhiges Schlafzimmer, eine helle, offene Wohn-Essküche mit Ausgang auf die Loggia, ein geräumiges Bad mit Fenster und WC, sowie einen Abstellraum. Die westlich ausgerichtete Terrasse lädt besonders zum entspannen ein und bietet Sonne von Mittag bis Abends inkl. Sonnenuntergang.



Die Mietwohnung ist zusätzlich mit einer großen Einbauküche mit hochwertigen Markengeräte, Bora Herd inkl. Abzug, Bosch Ofen, Liebherr Kühlschrank....



Ergänzend zur ausgezeichneten Infrastruktur und der hervorragenden Lage der Wohnung, ist ein Garagenplatz inkl. 16A Anschluss für E-Ladestation und ein Kellerabteil vorgesehen.



Extraausstattung: 



  • moderne Einbauküche (bereits im Mietpreis inkludiert)
  • Badezimmer mit Fenster und Waschmaschinenanschluss
  • elektrische Raffstores bei allen Fenstern
  • Fußbodenheizung in der gesamten Wohnung
  • Alternatives Heizsystem mittels Tiefenbohrung - Erdwärme
  • Tiefgaragenstellplatz mit Lademöglichkeit
  • barrierefrei nach ÖNORM (alle Geschoße mittels Aufzug erreichbar)

Noch nichts gefunden? Wir informieren Sie über geeignete Immobilienangebote noch vor allen anderen.
Legen Sie jetzt Ihren individuellen Suchagenten unter folgendem Link an. Wir schicken Ihnen passende Immobilien exklusiv vorab zu.

Suchagent anlegen - https://m-e-immobilien.service.immo/registrieren/de


Der Immobilienmakler erklärt, dass er – entgegen dem in der Immobilienwirtschaft üblichen Geschäftsgebrauch des Doppelmaklers – einseitig nur für den Vermieter tätig ist.

Für weitere Fragen bzw. zur Vereinbarung von Besichtigungsterminen steht Ihnen Herr Markus Efferdinger gerne unter der Mobilnummer +43 664 345 90 15 zur Verfügung.

Alle Angaben zur Liegenschaft wurden mit Sorgfalt erhoben. Zahlenangaben können gerundet oder geschätzt sein. Für die Richtigkeit und Vollständigkeit ist der Auftraggeber verantwortlich.

Infrastruktur / Entfernungen

Gesundheit
Arzt <500m
Apotheke <4.000m
Klinik <4.500m
Krankenhaus <6.500m

Kinder & Schulen
Schule <500m
Kindergarten <500m
Universität <5.000m

Nahversorgung
Supermarkt <4.000m
Bäckerei <500m
Einkaufszentrum <5.000m

Sonstige
Bank <500m
Geldautomat <4.500m
Post <4.500m
Polizei <4.500m

Verkehr
Bus <500m
Autobahnanschluss <5.000m
Bahnhof <500m
Flughafen <7.500m

Angaben Entfernung Luftlinie / Quelle: OpenStreetMap

Eckdaten Objektnr. 623

Art: Wohnung - Etage
Land: Österreich
Baujahr: 2022
Zustand: Gepflegt
Alter: Neubau
Gesamtmiete: 915,40
Kaltmiete (netto): 712,52 €
Kaltmiete: 826,49 €
Provision: Gemäß Erstauftraggeberprinzip bezahlt der Abgeber die Provision.
Betriebskosten: 101,31 €
MwSt Gesamt: 88,91 €
Wohnfläche: 55,21 m²
Zimmer: 2
Bäder: 1
WC: 1
Balkone: 1
Heizwärmebedarf:  B  28,00 kWh/m²a
fGEE:  A  0,71
Immobilie merken Exposé

Ausstattung

Parkett, Fliesen, Erdwärme, Fußbodenheizung, Zentralheizung, Einbauküche, Personenaufzug, Westbalkon, Bad mit Fenster, Dusche, Kabel/Satelliten-TV, Garage, Tiefgarage, Wasch/Trockenraum


Immobilie anfragen


Ihre persönliche Beratung

m.e. Immobilien GmbH

Markus Efferdinger

m.e. Immobilien e.U.

T +43 664 3459015

H +43 7242 323022