Attraktives Zinshaus in Wels-VOLL VERMIETET: Modernisiert, 256m², Garten, Garage & 7 Stellplätze!

Zinshaus Renditeobjekt - Mehrfamilienhaus, 4600 Wels


Dieses attraktive Mehrfamilienhaus befindet sich in einer begehrten Lage bei 4600 Wels, Oberösterreich, und bietet eine hervorragende Anbindung an die Infrastruktur. In unmittelbarer Nähe liegt die Trodat, ein bedeutender Arbeitgeber, der die Region belebt. Die Umgebung zeichnet sich durch eine gute Erreichbarkeit von Einkaufsmöglichkeiten, Schulen und Freizeitangeboten aus. Eine ideale Investition für renditeorientierte Käufer in einer dynamischen Stadt.

Beschreibung der Immobilie

Attraktives Zinshaus in Wels-VOLL VERMIETET: Modernisiert, 256m², Garten, Garage & 7 Stellplätze!

Vorab wichtige Daten!



Das Haus wurde 1938 zum Teil errichtet, 1989 saniert, DG 2019 neu gebaut!



2015 wurden sämtliche Leitungen(Wasser, Strom) erneuert



2016 neue Heizung(Gas)



Dach und Vollwärmeschutz 2019



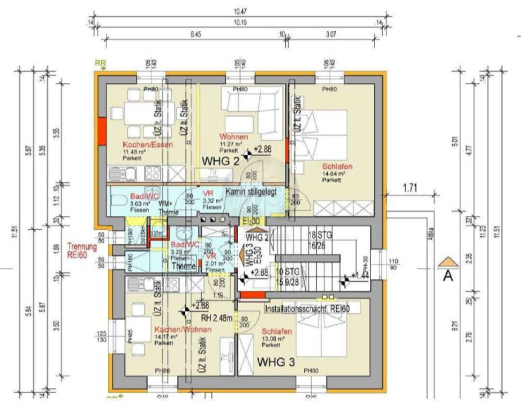
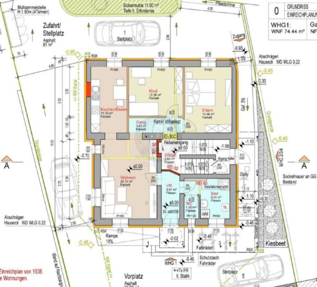
Es befinden sich 4 Einheiten(90+80+40+47m²) im Haus, 3 sind bis Mai 2028 und eine Einheit bis 2027 vermietet. Die Mietverträge sind immer auf 3 Jahre befristet.



Aufgrund der Mieteinnahmen ergibt sich eine Netto Rendite von ca 4%



Die angeführten BK enthalten-Versicherung, Müll, Grundsteuer, Strom allgemein, Wasser, Gas, Kanal



Willkommen in einer einmaligen Gelegenheit, die sowohl Investoren als auch zukünftigen Eigentümern eine attraktive Rendite verspricht! Dieses beeindruckende Zinshaus bzw. Mehrfamilienhaus in der pulsierenden Stadt Wels in Oberösterreich vereint modernes Wohnen mit wertsteigerndem Potenzial.



Mit einer großzügigen Fläche von 256 m² bietet dieses Objekt ausreichend Platz für mehrere Wohneinheiten und stellt somit eine ideale Investitionsmöglichkeit dar. Die umfassenden Modernisierungen, die in den letzten Jahren durchgeführt wurden, sorgen dafür, dass die Wohnungen nicht nur zeitgemäß, sondern auch energieeffizient sind. Hier können Ihre zukünftigen Mieter den hohen Wohnkomfort genießen, den sie suchen.



Das charmante Mehrfamilienhaus ist von einem einladenden Garten umgeben, der sowohl Erholung als auch Freizeitmöglichkeiten im Freien bietet. Stellen Sie sich vor, wie Ihre Mieter an warmen Sommerabenden im Garten entspannen oder gemeinsame Grillabende veranstalten. Diese zusätzlichen Annehmlichkeiten tragen dazu bei, die Attraktivität der Immobilie zu steigern und erhöhen die Wahrscheinlichkeit einer hohen Mietnachfrage.



Darüber hinaus ist eine Garage vorhanden, die nicht nur einen sicheren Stellplatz für Fahrzeuge bietet, sondern auch zusätzlichen Stauraum schafft. Für Gäste oder zusätzliche Fahrzeuge stehen Ihnen gleich sieben Stellplätze zur Verfügung. Dies ist ein besonders wertvolles Merkmal in städtischen Gebieten, wo Parkraum oft knapp ist.



Die Lage in Wels ist ein weiterer Pluspunkt dieser Immobilie. Wels ist bekannt für seine hervorragende Lebensqualität, die gute Anbindung an das Verkehrsnetz und die Vielzahl an Einkaufsmöglichkeiten, Restaurants und Bildungseinrichtungen. Diese Faktoren tragen dazu bei, dass die Stadt sowohl für Familien als auch für Singles äußerst attraktiv ist.



Nutzen Sie diese einmalige Chance, in ein renditestarkes Objekt zu investieren, das sowohl Kurz- als auch Langzeitmietverträge ermöglicht. Egal, ob Sie die gesamte Immobilie vermieten oder einzelne Einheiten verkaufen möchten, die Möglichkeiten sind vielfältig.



Lassen Sie sich diese Gelegenheit nicht entgehen! Kontaktieren Sie uns für weitere Informationen oder einen Besichtigungstermin und entdecken Sie das Potenzial dieses beeindruckenden Mehrfamilienhauses in Wels. Investieren Sie in Ihre Zukunft – hier sind die Weichen für nachhaltigen Erfolg bereits gestellt!


Der Vermittler ist als Doppelmakler tätig.

Eckdaten Objektnr. 2914

Art: Zinshaus Renditeobjekt - Mehrfamilienhaus
Land: Österreich
Zustand: Modernisiert
Kaufpreis: 579.000,00
Provision: 20.844,00 € inkl. 20% USt.
Betriebskosten: 636,00 €
Wohnfläche: 256,00 m²
Grundstücksfl.: 590,00 m²
Stellplätze: 7
Keller: 64,00 m²
Heizwärmebedarf:  C  55,00 kWh/m²a
fGEE:  B  0,99
Immobilie merken Exposé

Immobilie anfragen


Ihre persönliche Beratung

IWS Immobilienwelt Schellerer

Gerhard Schellerer

IWS Immobilienwelt Schellerer

T +43 7242-79595

H +43 664 4119550