Besondere Bürofläche in 1110 Wien - Ihr neuer Standort wartet!

Büro / Praxis , 1110 Wien,Simmering


Die Immobilie befindet sich in einer erstklassigen Lage im 11. Bezirk von Wien. Die Anbindung an öffentliche Verkehrsmittel ist optimal, mit Bus, U-Bahn und Straßenbahn direkt vor der Tür. Ein Bahnhof sowie die Autobahnanschlüsse sind ebenfalls in unmittelbarer Nähe. Ideal für ihr Büro oder Praxis!

Beschreibung der Immobilie

Besondere Bürofläche in 1110 Wien - Ihr neuer Standort wartet!

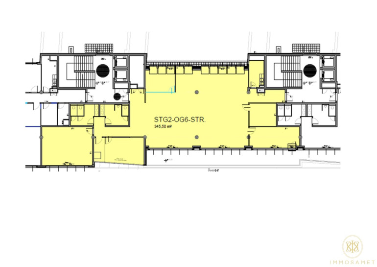
Herzlich willkommen in Ihrer neuen Büro- oder Praxisfläche im aufstrebenden 1110 Wien! Diese großzügige Immobilie befindet sich in der 5. Etage eines modernen Gebäudes und bietet Ihnen mit einer beeindruckenden Fläche von 345,3 m² ausreichend Platz für Ihre individuellen Bedürfnisse.



Der Mietpreis von 4.057,28 € macht diese Fläche zu einer attraktiven Option für Unternehmen oder Praxen, die Wert auf eine zentrale Lage und eine hervorragende Infrastruktur legen.



Die Umgebung bietet eine Vielzahl an Annehmlichkeiten, die das Arbeiten und Leben hier so angenehm machen. In unmittelbarer Nähe finden Sie alles, was Sie für den täglichen Bedarf benötigen: Arztpraxen, Apotheken, Kliniken, Schulen, Kindergärten sowie eine Universität. Einkaufsmöglichkeiten sind dank eines Supermarkts und einer Bäckerei ebenfalls in der Nähe gegeben, was die Pausen und die Freizeitgestaltung erleichtert.



Die großzügigen Räumlichkeiten lassen sich flexibel gestalten und an Ihre individuellen Anforderungen anpassen. Ob als modernes Büro, ansprechende Praxis oder kreative Arbeitsumgebung – hier sind Ihrer Fantasie keine Grenzen gesetzt.



Nutzen Sie die Chance, in einer der dynamischsten Gegenden Wiens Fuß zu fassen und profitieren Sie von der hervorragenden Sichtbarkeit und Erreichbarkeit Ihrer neuen Räumlichkeiten. Vereinbaren Sie noch heute einen Besichtigungstermin und überzeugen Sie sich selbst von den Möglichkeiten, die diese Immobilie bietet.



Warten Sie nicht zu lange – Ihre neue Adresse in Wien könnte schon bald Realität werden!

Noch nichts gefunden? Wir informieren Sie über geeignete Immobilienangebote noch vor allen anderen.
Legen Sie jetzt Ihren individuellen Suchagenten unter folgendem Link an. Wir schicken Ihnen passende Immobilien exklusiv vorab zu.

Suchagent anlegen - https://immosamet.service.immo/registrieren/de


Wir weisen darauf hin, dass zwischen dem Vermittler und dem zu vermittelnden Dritten ein familiäres oder wirtschaftliches Naheverhältnis besteht.


Der Vermittler ist als Doppelmakler tätig.

Infrastruktur / Entfernungen

Gesundheit
Arzt <500m
Apotheke <500m
Klinik <500m
Krankenhaus <2.500m

Kinder & Schulen
Schule <500m
Kindergarten <500m
Universität <1.000m
Höhere Schule <2.000m

Nahversorgung
Supermarkt <500m
Bäckerei <500m
Einkaufszentrum <1.500m

Sonstige
Geldautomat <1.000m
Bank <1.000m
Post <1.000m
Polizei <1.000m

Verkehr
Bus <500m
U-Bahn <1.000m
Straßenbahn <500m
Bahnhof <1.000m
Autobahnanschluss <500m

Angaben Entfernung Luftlinie / Quelle: OpenStreetMap

Eckdaten Objektnr. 1856/76

Art: Büro / Praxis
Land: Österreich
Kaltmiete (netto): 3.109,50 €
Kaltmiete: 4.059,63 €
Miete / m²: 9,00 €
Provision: 3 Bruttomonatsmieten zzgl. 20% USt.
Betriebskosten: 950,13 €
MwSt Gesamt: 811,93 €
Nutzfläche: 345,50 m²
Gesamtfläche: 345,50 m²
Immobilie merken Exposé

Immobilie anfragen


Ihre persönliche Beratung

Immosamet GmbH

Stella Caro Volkwein

Immosamet GmbH

T 0043 6606080608