Traumhafte Dachgeschoßwohnung in 1020 Wien – mit herrlichem Rundumblick

Wohnung - Dachgeschoß, 1020 Wien


Die Leopoldstadt ist seit 1850 der 2. Wiener Gemeindebezirk. Benannt ist sie nach Kaiser Leopold I. In der Leopoldstadt befindet sich der Prater mit dem Wiener Riesenrad, das als ein Wahrzeichen der Stadt gilt.Neben der Donau und dem Donaukanal sind die wichtigsten Gewässer in der Leopoldstadt die Donaualtarme Oberes Heustadelwasser, Unteres Heustadelwasser, Rosenwasser, Krebsenwasser, Mauthnerwasser und das Lusthauswasser beim Lusthaus. Eine perfekte Infrastruktur versteht sich bei dieser Lage von selber und auch die öffentliche Anbindung ist perfekt

Beschreibung der Immobilie

Traumhafte Dachgeschoßwohnung in 1020 Wien – mit herrlichem Rundumblick

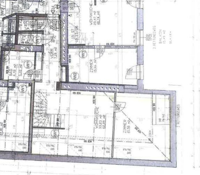
Die zu verkaufende Wohnung betreten Sie durch ein Vorzimmer, von dem aus Sie in die separate Toilette und in das sehr schöne Bad gelangen. Am Ende des Ganges öffnet sich ein herrliches Wohnzimmer mit integrierter Küche. Dieser wunderbare Raum bietet durch seine Größe wunderbar die Gelegenheit, mit Freunden ein gemütliches Essen auszurichten oder einfach nur geruhsame Stunden auf seinem Sofa zu verbringen - beides mit einem wunderbaren Blick über Wien. Der Raum ist durch seine großzügigen Fensterflächen nicht nur sehr hell, sondern hier gehen Außen- und Innenbereich

automatisch ineinander über, was die Großzügigkeit nochmals unterstreicht. 



Die Küche ist modern eingerichtet und mit allen Geräten ausgestattet, die Sie für modernes Kochen brauchen. Durch eine Bar wird der Küchen- vom Wohnbereich abgetrennt.



Hier könnte auch, wie im Plan ersichtlich, ein weiterer Raum gestaltet werden.



Über eine schöne Holztreppe geht es dann in den oberen Bereich der Wohnung. Hier befinden sich ein Schlafzimmer, eine Toilette und eine Art Galerie, die mit einer großartigen Fensterfläche den Blick auf den Kahlenberg und auf den Leopoldsberg freigibt. Auch hier kann man unter Umständen ein Schlafzimmer schaffen.



Die zur Wohnung gehörende Terrasse begehen Sie ebenfalls aus diesem Geschoß. Die Terrasse ist besonders für heiße Tage zum Entspannen geeignet und erweitert praktisch ihren Wohnraum um ein außenliegendes Wohnzimmer. Das Highlight der Wohnung ist mit Sicherheit die zweite Terrasse, die Sie über eine Stiege von der unteren Terrasse aus erreichen. Hier steht dem Rundumblick über Wien nichts mehr im Wege.



Anschauen lohnt sich vereinbaren – vereinbaren Sie einfach einen Termin mit mir!



Noch nichts gefunden?  Wir suchen gerne die passende Immobilie für sie und informieren Sie über geeignete Immobilienangebote noch vor allen anderen.
Legen Sie jetzt Ihren individuellen Suchagenten unter folgendem Link an. Wir schicken Ihnen passende Immobilien exklusiv vorab zu ihr Denich Real Immobilienservice

Suchagent anlegen

Infrastruktur / Entfernungen

Gesundheit
Arzt <500m
Apotheke <500m
Klinik <1.000m
Krankenhaus <1.000m

Kinder & Schulen
Schule <500m
Kindergarten <500m
Universität <1.500m
Höhere Schule <1.500m

Nahversorgung
Supermarkt <500m
Bäckerei <500m
Einkaufszentrum <1.500m

Sonstige
Geldautomat <500m
Bank <500m
Post <500m
Polizei <1.000m

Verkehr
Bus <500m
U-Bahn <1.000m
Straßenbahn <500m
Bahnhof <1.000m
Autobahnanschluss <2.000m

Angaben Entfernung Luftlinie / Quelle: OpenStreetMap

Eckdaten Objektnr. 1362

Art: Wohnung - Dachgeschoß
Land: Österreich
Zustand: Gepflegt
Alter: Neubau
Kaufpreis: 949.000,00
Provision: 34.164,00 € inkl. 20% USt.
Wohnfläche: 120,00 m²
Nutzfläche: 130,00 m²
Terrassen: 2
Immobilie merken Exposé

Ausstattung

Fliesen, Parkett, Gas, Zentralheizung, Einbauküche, Personenaufzug, Ostbalkon, Westbalkon, Dusche


Immobilie anfragen


Ihre persönliche Beratung

DENICH-REAL Immobilien GmbH

Martina Denich-Kobula

DENICH-REAL Immobilien GmbH

T +43 664 4609630

H +43 664 4609630