Großzügiges Geschäftslokal/Büro in guter Lage des 15. Bezirks!

Büro / Praxis , 1150 Wien


Beschreibung der Immobilie

Großzügiges Geschäftslokal/Büro in guter Lage des 15. Bezirks!

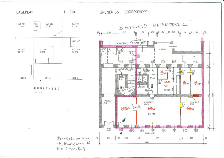
Das Büro/Geschäftsfläche Top 1 in der Huglgasse 16, 1150 Wien, bietet auf rund 225 m² großzügige, flexibel nutzbare Arbeitsflächen, die sich ideal für vielfältige gewerbliche Nutzungskonzepte eignen. Die durchdachte Raumaufteilung ermöglicht sowohl offene Arbeitsbereiche als auch die Einrichtung von Einzelbüros oder Besprechungsräumen. Zusätzlich besteht die Möglichkeit, Werbeschilder an der Fassade anzubringen, was eine gute Sichtbarkeit im Straßenraum garantiert.



Über einen zentralen Vorraum gelangt man in einen großzügigen Verkaufs- oder Büroraum mit 40 m²; daran anschließend befindet sich ein weiterer Raum mit ca. 20,4 m². Über einen Verbindungsgang sind die Küche sowie zwei weitere Räume zugänglich. Darüber hinaus stehen eine Duscheinheit sowie zwei separate WCs zur Verfügung. Ein zweiter Zugang über das Stiegenhaus bietet zusätzliche Flexibilität in der Nutzung.



Folgende Nutzungsmöglichkeiten sind grundsätzlich denkbar:



  • Büro- und Dienstleistungsbetriebe
  • Praxisräume 
  • Verkaufs- oder Schauraum (Showroom)
  • Bildungs- und Schulungsangebote
  • Gesundheit & Wohlbefinden 
  • Kombinationen (z. B. Büro mit Kundenverkehr)

     


Dank der Lage im 15. Wiener Gemeindebezirk Rudolfsheim-Fünfhaus profitieren Mieter von einer ausgezeichneten öffentlichen Verkehrsanbindung und einem Umfeld, das Wohnen und Arbeiten optimal verbindet. Das Objekt eignet sich besonders für Unternehmen, die eine geräumige, funktionale und gut erreichbare Gewerbefläche suchen. Nur wenige Gehminuten entfernt befinden sich die U3-Stationen Schweglerstraße und Johnstraße, die eine rasche Verbindung in die Wiener Innenstadt sowie zu Verkehrsknotenpunkten wie dem Westbahnhof oder der Landstraße/Wien Mitte ermöglichen.



Mehrere Straßenbahn- und Buslinien ergänzen die hervorragende Anbindung an das öffentliche Verkehrsnetz. Trotz der ruhigen Lage in einer Seitenstraße sind zentrale Verkehrsachsen wie die Hütteldorfer Straße, der Gürtel sowie die Hadikgasse in kürzester Zeit erreichbar. Somit ist sowohl der Stadtverkehr als auch die rasche Anbindung an die A1 und A2 gewährleistet.



Die Umgebung bietet eine ausgezeichnete Nahversorgung: Zahlreiche Supermärkte, Bäckereien, Apotheken, Cafés, Schulen und soziale Einrichtungen befinden sich in unmittelbarer Nähe und machen den Standort sowohl für Mitarbeitende als auch für Kundinnen und Kunden besonders attraktiv. Zusätzlich sorgen nahegelegene Parks und begrünte Innenhöfe für eine angenehme Aufenthaltsqualität im Grätzel.

Infrastruktur / Entfernungen

Gesundheit
Arzt <500m
Apotheke <500m
Klinik <500m
Krankenhaus <2.000m

Kinder & Schulen
Schule <500m
Kindergarten <500m
Universität <1.500m
Höhere Schule <1.500m

Nahversorgung
Supermarkt <500m
Bäckerei <500m
Einkaufszentrum <500m

Sonstige
Geldautomat <500m
Bank <500m
Post <500m
Polizei <500m

Verkehr
Bus <500m
U-Bahn <500m
Straßenbahn <500m
Bahnhof <500m
Autobahnanschluss <4.500m

Angaben Entfernung Luftlinie / Quelle: OpenStreetMap

Eckdaten Objektnr. 5908/1692

Art: Büro / Praxis
Land: Österreich
Zustand: Teil_vollsaniert
Alter: Altbau
Kaltmiete (netto): 1.500,00 €
Kaltmiete: 2.165,74 €
Miete / m²: 6,67 €
Provision: 7.796,66 € inkl. 20% USt.
Betriebskosten: 664,65 €
MwSt Gesamt: 433,15 €
Nutzfläche: 225,00 m²
Bäder: 1
WC: 2
Immobilie merken Exposé

Ausstattung

Parkett, Fliesen, Gas, Etagenheizung, Bad mit Fenster, Dusche


Immobilie anfragen


Ihre persönliche Beratung

ABRA IC GmbH

Fanny Vorstandlechner

ABRA IC GmbH

T +43 670 20 11 22 8