Helle Zwei- oder Dreizimmerwohnung in Ruhelage mit Grünblick

Wohnung - Dachgeschoß, 1140 Wien


Beschreibung der Immobilie

Helle Zwei- oder Dreizimmerwohnung in Ruhelage mit Grünblick

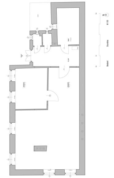
Diese außergewöhnliche Dachgeschoßwohnung wurde Mitte des vorigen Jahrhunderts aus einem ehemaligen Künstleratelier geschaffen, und im Jahr 2014 aufwändig saniert, wobei sowohl die Elektrik als auch die Wasser- und Gasleitungen komplett erneuert, die Decke isoliert, sowie Bad und Küche erneuert wurden. Die originalen Parkettböden wurden ebenso wie die Türen erhalten und restauriert, während die Nassräume neu verfliest wurden. Herzstück der Wohnung ist der über 46m² große Wohnraum mit offener Küche, welcher derzeit von einem nachträglich abgetrennten knapp 12m² großen Schlafzimmer ergänzt wird, wobei auch die Abtrennung eines dritten Zimmers problemlos möglich wäre. Das großzügige Bad mit Fenster verfügt über eine Kingsize-Badewanne und eine Dusche, sowie über ein WC und Platz für eine Waschmaschine. Weiters sind ein Vorraum und 2 Abstellräume vorhanden, von denen einer über eine Anschlussmöglichkeit für ein weiteres WC verfügt. Alle Räume sind aufgrund deren geschickter Ausrichtung uneinsehbar, sodaß Sie in jedem Teil der Wohnung über viel Privatsphäre verfügen.



An Allgemeinflächen stehen Ihnen ungewöhnlicherweise nicht nur ein Trockenraum und ein Abstellbereich für Fahrräder und Kinderwägen, sondern auch ein Raum für Werkarbeiten und ein kleiner Gemeinschaftsgarten zur Verfügung, und für noch mehr Stauraum sorgen ein geräumiges Kellerabteil sowie ein Lagerraum einen Halbstock tiefer. Das im Art Deco-Stil gestaltete Stiegenhaus wirkt hell und großzügig, hier wurden größtenteils die originalen Stil-Elemente erhalten. Laut Angaben der Eigentümer unterliegt die Wohnung nicht der Mietpreisbindung, da sie erst nach 1945 als solche gewidmet wurde, und ist daher auch für Anleger interessant.



 



Fordern Sie noch heute unser Detailexposé dieser Immobilie an, welches die genaue Adresse, alle Daten, und eine ausführliche Fotodokumentation enthält! Denken Sie bei Ihrer Anfrage bitte daran, Ihren vollen Namen und alle Kontaktdaten anzugeben, damit wir Sie als ernsthaften Interessenten qualifizieren können.




Der Vermittler ist als Doppelmakler tätig.

Infrastruktur / Entfernungen

Gesundheit
Arzt <500m
Apotheke <500m
Klinik <2.500m
Krankenhaus <1.000m

Kinder & Schulen
Schule <500m
Kindergarten <500m
Universität <2.000m
Höhere Schule <4.500m

Nahversorgung
Supermarkt <500m
Bäckerei <500m
Einkaufszentrum <3.500m

Sonstige
Geldautomat <500m
Bank <500m
Post <2.000m
Polizei <500m

Verkehr
Bus <500m
Straßenbahn <500m
U-Bahn <500m
Bahnhof <500m
Autobahnanschluss <3.000m

Angaben Entfernung Luftlinie / Quelle: OpenStreetMap

Eckdaten Objektnr. 2533/6796

Art: Wohnung - Dachgeschoß
Land: Österreich
Baujahr: 1913
Zustand: Modernisiert
Kaufpreis: 297.000,00
Kaufpreis / m²: 3.852,64 €
Provision: 3% des Kaufpreises zzgl. 20% USt.
Betriebskosten: 120,26 €
MwSt Gesamt: 15,36 €
Wohnfläche: 77,09 m²
Zimmer: 2
Bäder: 1
WC: 1
Heizwärmebedarf:  D  143,70 kWh/m²a
fGEE:  D  1,99
Immobilie merken Exposé

Ausstattung

Parkett, Fliesen, Gas, Etagenheizung, Wohnküche / offene Küche, Personenaufzug, Bad mit Fenster, Badewanne, Dusche, Wasch/Trockenraum


Immobilie anfragen


Ihre persönliche Beratung

Börner Ihr Hausmakler GmbH

Mag. Christian Goldschwend

Börner Ihr Hausmakler GmbH

H +43 664 123 09 90