ERSTBEZUG NACH SANIERUNG - REPRÄSENTATIVER STILALTBAU DIREKT AM GRABEN - EXKLUSIV RESIDIEREN IM HERZEN WIENS

Wohnung - Etage, 1010 Wien , Graben


Stephansplatz U1/U3, Kärntner Straße, Rotenturmstraße, Michaelerplatz, Spanische Hofreitschule, Hofburg Wien, Volksgarten, Albertina, Wiener Staatsoper, Wiener Pestsäule, Katholische Kirche St. Peter

Beschreibung der Immobilie

ERSTBEZUG NACH SANIERUNG - REPRÄSENTATIVER STILALTBAU DIREKT AM GRABEN - EXKLUSIV RESIDIEREN IM HERZEN WIENS

Zur Vermietung gelangt diese stilvolle 5,5-Zimmer-Wohnung als Erstbezug nach umfassender Sanierung an einer der prestigeträchtigsten Adressen des 1. Bezirks.





Eckdaten



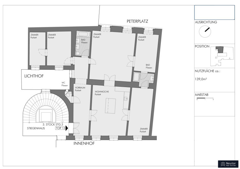
Wohnfläche: ca. 139,39 m² 

Zimmer: 5,5

Badezimmer: 2 - eines mit Dusche, eines mit Badewanne

WC: 2 - eines davon separat

Küche: neu, mit hochwertigen Einbaugeräten (Bora, AEG)

Etage: 3

Lift: ja

Heizung: Gas-Etage

 





Beschreibung



In einem geschichtsträchtigen Altbau direkt am Graben in der Wiener Innenstadt offenbart sich diese stilvolle Altbauwohnung mit rund 139 m² Wohnfläche als ein seltenes Juwel urbanen Wohnens. Der unverwechselbare Wiener Altbaucharakter wurde im Rahmen einer hochwertigen Sanierung behutsam bewahrt und mit zeitgemäßem Wohnkomfort auf höchstem Niveau kombiniert. Schon beim Betreten des Hauses empfängt einen die Grandezza vergangener Zeiten, die sofort ein Gefühl von Eleganz und Exklusivität vermittelt.



Der großzügige Vorraum eröffnet ein einladendes Entree und führt zu den klar strukturierten Räumen dieser außergewöhnlichen Wohnung. Die moderne Wohnküche mit hochwertigen Einbaugeräten lädt zum Kochen, Genießen und geselligen Zusammensein ein und wird so zum stilvollen Herzstück der Wohnung. Das angrenzende Wohn- und Esszimmer beeindruckt mit seiner Großzügigkeit, den hohen Decken und edlen Doppelflügeltüren und schafft eine offene, einladende Atmosphäre. Von hier bietet sich ein direkter Blick auf die Peterskirche, der den besonderen Charme und das exklusive Flair dieser Lage auf eindrucksvolle Weise unterstreicht.



Vom Wohnbereich aus gelangt man in eines der fünf Zimmer, das über ein angrenzendes Badezimmer mit Dusche verfügt. Dieses Durchgangsbadezimmer erschließt zudem ein weiteres Zimmer und verbindet Funktionalität mit einer eleganten Raumgestaltung. Auf der gegenüberliegenden Seite des Gangs befindet sich ein weiteres großzügiges Zimmer, ergänzt durch einen weiten Abstellraum mit Fenster, der sich ideal als begehbare Garderobe oder exklusives Ankleidezimmer nutzen lässt. Ein zusätzliches luxuriöses Badezimmer mit Badewanne, Doppelhandwaschbecken und WC beeindruckt durch seine hochwertige Ausstattung und das elegante Spa-Ambiente.



Hochwertiger Fischgrätparkett, lichtdurchflutete Räume und die hohen Decken ziehen sich wie ein roter Faden durch die gesamte Wohnung und verleihen ihr einen klassischen, zugleich zeitlos luxuriösen Charakter. Dieses exklusive Zuhause vereint Eleganz, Komfort und Wiener Lebensart auf perfekte Weise und bietet anspruchsvollen Bewohnern ein urbanes Wohngefühl der Extraklasse.





Kosten




Brutto HMZ: € 3.690,-  inkl. Betriebskosten und gesetzlicher USt.  

Kaution:  € 11.070,- 

Provision: /

 





Lage + Infrastruktur



Die Wohnung befindet sich an einer der begehrtesten Adressen Wiens, im Herzen der Innenstadt. In unmittelbarer Nähe finden Sie exklusive Geschäfte, elegante Boutiquen, gehobene Restaurants und gemütliche Cafés. In nur zwei Gehminuten erreichen Sie den Stephansplatz mit direkter Anbindung an die U-Bahnlinien U1 und U3. Die Buslinien 1A, 2A und 3A halten fast direkt vor der Haustür und ermöglichen eine schnelle und bequeme Verbindung durch den 1. Bezirk. Für entspannte Stunden in der Natur laden der Volksgarten und der Burggarten zu Spaziergängen oder ruhigen Nachmittagen ein.





Wir dürfen gem. § 5 Maklergesetz darauf hinweisen, dass wir als Doppelmakler tätig sind und ein wirtschaftliches/familiäres Naheverhältnis zu unseren Auftraggebern besteht. Das wirtschaftliche Naheverhältnis ergibt sich aus regelmäßiger geschäftlicher Verbindung. Irrtum vorbehalten. 


Wir weisen darauf hin, dass zwischen dem Vermittler und dem zu vermittelnden Dritten ein familiäres oder wirtschaftliches Naheverhältnis besteht.


Der Immobilienmakler erklärt, dass er – entgegen dem in der Immobilienwirtschaft üblichen Geschäftsgebrauch des Doppelmaklers – einseitig nur für den Vermieter tätig ist.

Infrastruktur / Entfernungen

Gesundheit
Arzt <250m
Apotheke <250m
Klinik <750m
Krankenhaus <1.250m

Kinder & Schulen
Schule <250m
Kindergarten <750m
Universität <500m
Höhere Schule <500m

Nahversorgung
Supermarkt <250m
Bäckerei <250m
Einkaufszentrum <750m

Sonstige
Geldautomat <250m
Bank <250m
Post <500m
Polizei <250m

Verkehr
Bus <250m
U-Bahn <250m
Straßenbahn <750m
Bahnhof <250m
Autobahnanschluss <3.500m

Angaben Entfernung Luftlinie / Quelle: OpenStreetMap

Eckdaten Objektnr. 4924

Art: Wohnung - Etage
Land: Österreich
Baujahr: 1870
Zustand: Gepflegt
Alter: Altbau
Gesamtmiete: 3.690,00
Kaltmiete (netto): 2.915,33 €
Kaltmiete: 3.354,55 €
Provision: Gemäß Erstauftraggeberprinzip bezahlt der Abgeber die Provision.
Betriebskosten: 359,03 €
MwSt Gesamt: 335,45 €
Wohnfläche: 139,39 m²
Nutzfläche: 139,39 m²
Gesamtfläche: 139,39 m²
Zimmer: 5,50
Bäder: 2
WC: 2
Heizwärmebedarf:  C  87,00 kWh/m²a
fGEE:  D  1,81
Immobilie merken Exposé

Ausstattung

Parkett, Fliesen, Gas, Etagenheizung, Einbauküche, Wohnküche / offene Küche, Personenaufzug, Badewanne, Dusche


Immobilie anfragen


Ihre persönliche Beratung

Melanie Ivancsics

Neutor Real GmbH

T +43 1 532 3730

H +4366488387556