Bauträgergrundstück mit fertiger Planung

Grundstück , 2544 Leobersdorf


Leobersdorf - Nähe Zentrum Öffentliche Verkehrsanbindung: Eine Bushaltestelle ist fußläufig in wenigen Minuten zu erreichen. Ebenso fußläufig erreicht man den Bahnhof Leobersdorf mit besten Anbindungen nach Wien, Wr. Neustadt und St. Pölten. Regionalbusse verkehren ebenfalls in der Umgebung. Infrastruktur: Hervorragende Einkaufsmöglichkeiten, medizinische Versorgung, Freizeitmöglichkeiten, Bildungseinrichtungen u. dgl. finden Sie in näherer Umgebung zur gegenständlichen Liegenschaft

Beschreibung der Immobilie

Bauträgergrundstück mit fertiger Planung

Sehr geehrte Damen und Herren,



willkommen in Leobersdorf, einer charmanten Gemeinde in Niederösterreich, die Ihnen die Möglichkeit bietet, Ihre Vision von einem großvolumigen Wohnbauprojekt zu verwirklichen. Hier präsentieren wir Ihnen ein außergewöhnliches Grundstück mit einer Fläche von beeindruckenden 1806 m², das nur darauf wartet, von Ihnen in ein attraktives Wohnprojekt verwandelt zu werden.



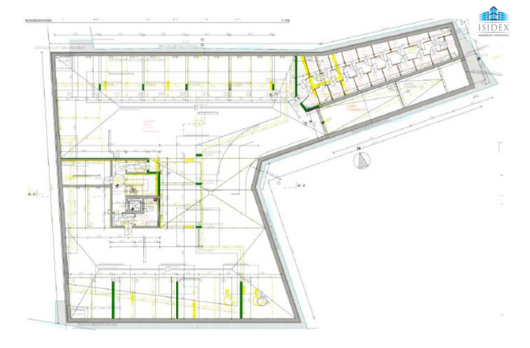
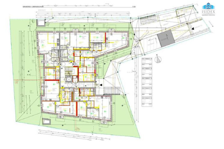
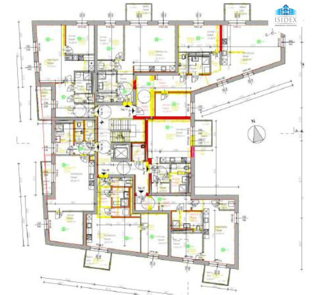
Und tatsächlich liegt für die Errichtung eines Mehrparteienwohnhauses bereits eine rechtskräftige Baubewilligung vor. Geplant sind 19 Wohneinheiten, welche sich über drei Geschosse (EG, OG und DG) erstrecken soll. Ein Kellergeschoss sam Tiefgarage sind ebenfalls vorgesehen. Die Wohnnutzfläche beträgt laut Einreichplanung ca. 1.212.73 m², könnte aber laut einer Studie noch auf ca. 1.371,08 m² optimiert werden.



Zuvor befand sich auf dem Grundstück ein Einfamilienhaus, welches bereits abgerissen wurde. Als Überbleibsel ist noch eine betonierte Bodenplatte vorhanden, eine über das Grundstück verlaufende Stromleitung wurde bereits entfernt.



Widmung: Bauland-Wohngebiet





Nutzen Sie diese einmalige Gelegenheit, um in diesem attraktiven Ort zu investieren. Mit dem Kauf dieses Grundstücks legen Sie den Grundstein für eine vielversprechende Zukunft, für sich und für jene Menschen, die hier vielleicht schon bald ihr neues Eigenheim beziehen dürfen.





Ausführliche Informationen und entsprechende Unterlagen werden Ihnen gerne übermittelt. Für dies und zwecks Vereinbarung eines Besichtigungstermines kontaktieren Sie bitte Herrn Felix Kunej ausschließlich schriftlich unter kunej@isidex.at oder Sie verwenden das jeweilige Anfrageformular.



In Entsprechung des FAGG (Fern- und Auswärtsgeschäfte-Gesetz) und des VRUG (Verbraucherrechte-Richtlinie-Umsetzungsgesetz) ist es uns leider nur mehr möglich Termine nach Erhalt einer schriftlichen Anfrage mit vollständigen Kontaktangaben (Name, Adresse, Telefon, Email) zu vereinbaren, Unterlagen zu übermitteln und zu diesem Objekt Auskunft zu erteilen.


Der Vermittler ist als Doppelmakler tätig.

Eckdaten Objektnr. 1148

Art: Grundstück
Land: Österreich
Kaufpreis: 607.000,00
Provision: 21.852,00 € inkl. 20% USt.
Grundstücksfl.: 1.806,00 m²
Immobilie merken Exposé

Immobilie anfragen


Ihre persönliche Beratung

ISIDEX GmbH

Felix Kunej

ISIDEX GmbH

T +43 676 770 52 64

H +43 676 5055237