Großzügig geschnittene, lichtdurchflutete Wohnung in zentraler Lage

Wohnung , 4020 Linz


• Nähe Neuromed-Campus, fußläufig in wenigen Minuten erreichbar. • Zentrale Lage, nähe Herz-Jesu-Kirche gelegen. • Einrichtungen des täglichen Bedarfs wie Einkaufsmöglichkeiten und Gastronomie in unmittelbarer Nähe. • Exzellente Verkehrsanbindung, Straßenbahn und Bus sind nur wenige Gehminuten entfernt. • Optimale Anreise für Pendler, schnelle Anbindung an die A7-Autobahn.

Beschreibung der Immobilie

Großzügig geschnittene, lichtdurchflutete Wohnung in zentraler Lage

Diese helle, ruhige und großzügige Wohnung bietet ideale Bedingungen für ein angenehmes Wohngefühl. Die Wohnung befindet sich in einem Stadthaus und überzeugt durch ihre hervorragende Lage sowie flexible Nutzungsmöglichkeiten.





Highlights der Ordination:



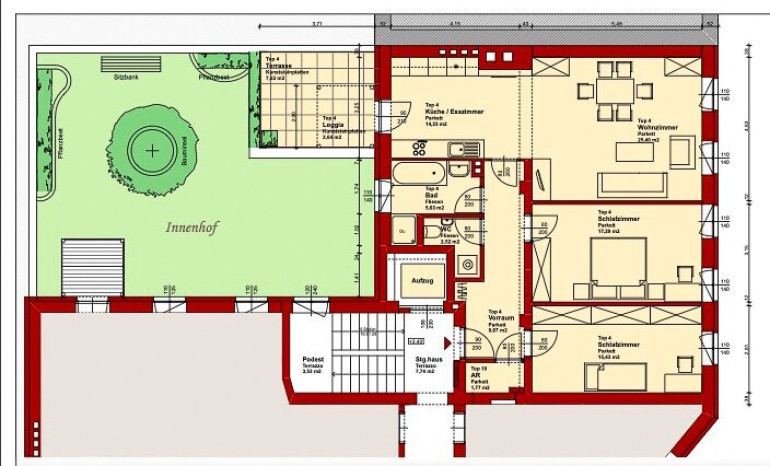
  • 3,5 Zimmer mit möblierter Küche (ohne Ablöse)
  • Wohnfläche: ca. 92,14 m²
  • zzgl. Terrassenfläche: ca. 7,62 m²
  • zzgl. Loggiafläche: ca. 3,64 m²
  • Durchdachte optimale Raumaufteilung
  • Barrierefrei, stufenloser Zugang
  • Lift
  • Moderne Sanitäreinrichtungen: Badezimmer mit Dusche und Badewanne
  • Abstellraum und Kellerabteil vorhanden
  • begrünter Innenhof

Wir weisen darauf hin, dass zwischen dem Vermittler und dem zu vermittelnden Dritten ein familiäres oder wirtschaftliches Naheverhältnis besteht.


Der Immobilienmakler erklärt, dass er – entgegen dem in der Immobilienwirtschaft üblichen Geschäftsgebrauch des Doppelmaklers – einseitig nur für den Vermieter tätig ist.

Infrastruktur / Entfernungen

Gesundheit
Arzt <500m
Apotheke <500m
Krankenhaus <1.000m
Klinik <1.000m

Kinder & Schulen
Kindergarten <500m
Schule <500m
Universität <2.000m
Höhere Schule <2.000m

Nahversorgung
Supermarkt <500m
Bäckerei <500m
Einkaufszentrum <1.500m

Sonstige
Bank <500m
Geldautomat <500m
Post <1.000m
Polizei <1.000m

Verkehr
Bus <500m
Straßenbahn <500m
Bahnhof <500m
Autobahnanschluss <1.000m
Flughafen <3.000m

Angaben Entfernung Luftlinie / Quelle: OpenStreetMap

Eckdaten Objektnr. 1927/45

Art: Wohnung
Land: Österreich
Gesamtmiete: 1.140,74
Kaltmiete (netto): 850,00 €
Kaltmiete: 1.037,04 €
Provision: Gemäß Erstauftraggeberprinzip bezahlt der Abgeber die Provision.
Betriebskosten: 187,04 €
MwSt Gesamt: 103,70 €
Wohnfläche: 92,14 m²
Zimmer: 3,50
Bäder: 1
WC: 1
Terrassen: 1
Heizwärmebedarf:  B  44,10 kWh/m²a
fGEE:  A  0,75
Immobilie merken Exposé

Ausstattung

Fliesen, Parkettboden, Zentralheizung, Einbauküche, Wohnküche / offene Küche, Personenaufzug, Bad mit Fenster, Dusche


Immobilie anfragen


Ihre persönliche Beratung

100pro Immobilien GmbH

Maximilian Stadler

100pro Immobilien GmbH

T +43 732 272408