3 unverbaute, ebene Baugründe mit Planung für über 20 Wohnungen in 1220 Wien

Grundstück , 1220 Wien


Stadtgrenze Wien/Großenzersdorf

Beschreibung der Immobilie

3 unverbaute, ebene Baugründe mit Planung für über 20 Wohnungen in 1220 Wien

Highlights:



  • Maße: Ca. 46 x 40 Meter, gesamt ca. 1.851m²
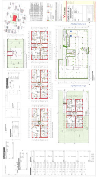
  • Bebauungsstudie unverbindlich, für über 20 Wohnungen mit ca. über 1000m² Wohnfläche und Tiefgaragen
  • Lage: Nur 1 km zur Lobau
  • Öffentliche Verkehrsmittel: Busstation in 5 Minuten zu Fuß erreichbar (Linie 98A)
  • U-Bahn: U2-Station Aspernstraße in wenigen Stationen erreichbar
  • Bildungseinrichtungen: Schulen, Kindergärten und AHS in unmittelbarer Nähe
  • Versorgung auf dem Grund: Wasser und Kanal
  • Versorgung vor dem Grund: Strom, Gas
  • Glasfaser: geplant
  • Internet ist am Standort mit bis zu 150Mbit möglich!


Diese drei Parzellen mit 616+617+618m² bieten auch Bauträgern und Investoren eine hervorragende Gelegenheit zur Realisierung eines Wohnprojektes in einer aufstrebenden Gegend Wiens.



Eine Einreichplanung für Wohnungen (ohne Gewähr) ist vorhanden!



Lage und Infrastruktur:



Die Lage der drei nebeneinander liegenden, auch einzeln zum Kauf stehenden Baugrundstücke Gruntzelstraße Nr.43+45+47, vereint die Vorteile der Großstadt mit der wunderschöner Natur.

Die Umgebung bietet zahlreiche Einkaufsmöglichkeiten (z.B. Marchfeld Center, div. Supermärkte), unzählige Lokale mit den Küchen verschiedenster Nationen, ein großes Angebot für die aktive Freizeitgestaltung (z.B. Reitzentrum, Seepark, div. Vereine und Sportstätten), Ärzte und Apotheken, Kindergärten sowie Schulen. Ruhe und Erholung finden die Anrainer nicht nur in Ihrem Eigenheim mit Garten, sondern auch in den großzügigen angrenzenden Grünflächen, welche zu Spaziergängen und Fahrradtouren einladen.



Durch eine einwandfreie öffentliche Anbindung (Buslinie 98A mit direkter Verbindung zur Linie U2 – 2 Minuten fußläufig) erreicht man, trotz Lage am Stadtrand, zügig den Stadtkern von Wien






Der Vermittler ist als Doppelmakler tätig.

Infrastruktur / Entfernungen

Gesundheit
Arzt <1.500m
Apotheke <1.500m
Klinik <3.500m
Krankenhaus <6.000m

Kinder & Schulen
Schule <1.500m
Kindergarten <2.000m
Universität <2.000m
Höhere Schule <3.000m

Nahversorgung
Supermarkt <1.500m
Bäckerei <1.500m
Einkaufszentrum <1.500m

Sonstige
Bank <1.500m
Geldautomat <2.000m
Post <2.000m
Polizei <1.500m

Verkehr
Bus <500m
U-Bahn <3.000m
Bahnhof <3.000m
Straßenbahn <3.500m
Autobahnanschluss <6.500m

Angaben Entfernung Luftlinie / Quelle: OpenStreetMap

Eckdaten Objektnr. 3479/100021

Art: Grundstück
Land: Österreich
Kaufpreis: 1.595.000,00
Provision: 3% des Kaufpreises zzgl. 20% USt.
Grundstücksfl.: 1.851,00 m²
Immobilie merken Exposé

Immobilie anfragen


Ihre persönliche Beratung

RE/MAX Trend

Mag. Ing. Harald Urban

RE/MAX Trend

T +43 69915533400

H +43 699 155 33 400