#SQ -BESTANDSFREIES - ATTRAKTIVES GESCHÄFTSLOKAL NÄHE HAUPTBAHNHOF UND BELVEDERE

Zinshaus Renditeobjekt , 1040 Wien


Die Infrastruktur und die Lage des Geschäftslokals ist ausgezeichnet! In der Nähe befinden sich Geschäfte des täglichen Bedarfs wie beispielsweise Supermärkte, Banken, Apotheken etc. Fußläufig entfernt befindet sich der Hauptbahnhof mit der zugehörigen U-Bahn-Linie U1 sowie diverse weitere öffentliche Verkehrsmittel wie beispielsweise die S-Bahn. In der unmittelbaren Umgebung befinden sich zusätzlich charmante Restaurants und zahlreiche Cafés. Das Schloss Belvedere erreicht man in wenigen Minuten.

Beschreibung der Immobilie

#SQ -BESTANDSFREIES - ATTRAKTIVES GESCHÄFTSLOKAL NÄHE HAUPTBAHNHOF UND BELVEDERE

Zum Verkauf gelangt ein äußerst attraktives Geschäftslokal im 4. Wiener Gemeindebezirk, in der Nähe des Schloss Belvedere. 



Das Lokal befindet sich in einem im Jahre 1900 erbauten, gepflegten Gebäude. Alle Räumlichkeiten befinden sich in einem gepflegten Zustand. Geheizt wird mittels Gasetagenheizung.



Im selben Haus stehen aktuell zwei weitere Lokale zum Verkauf, es besteht daher auch die Möglichkeit alle drei Geschäftslokale als Paket zu erwerben.



Beschreibung:



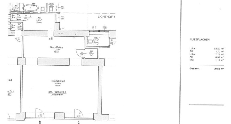
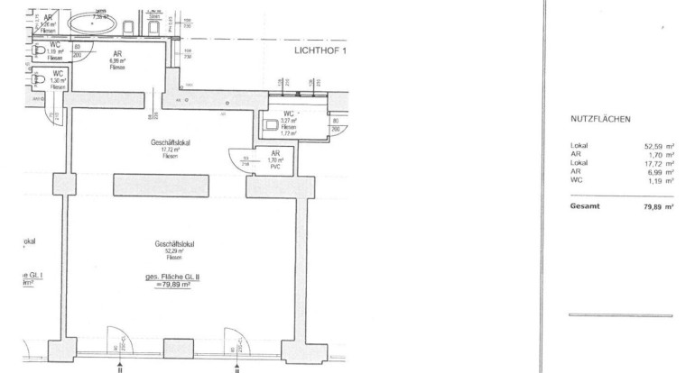
Das Lokal, welches als Friseur genützt worden ist, teilt sich folgendermaßen auf: eine Lokalfläche, zwei Abstellräume und ein WC. Die gesamte Fläche beträgt hier ca. 79,89 m². Sie betreten das Lokal und befinden sich in der ersten Lokalfläche. Dort befindet sich eine kleine Rezeption und einige Friseurstühle. Wenn Sie weitergehen kommen Sie zur zweiten Lokalfläche. Danach gelangen Sie zum ersten Abstellraum. Dort befindet sich ein Waschbecken und diverse Schränke. Im hinteren Teil befindet sich die Toilette. Ein zweiter kleiner Abstellraum befindet sich auf der anderen Seite.



Diese Fläche steht zur Zeit zur Vermietung zu folgenden Konditionen: 



Soll Ertrag im Überblick:



  NFL in m² HMZ p.M. HMZ/m² HMZ p.a. Kaufpreis
           
Top 2 79,89 € 1.990,— € 24,87 € 23.880 € 549 000 




Kosten:



  • Kaufpreis: € 549 000,-- zzgl. 20% Ust.
  • Jahresnetto-HMZ-Soll Ertrag: ca. € 23.880,-
  • Provision: 3% vom Kaufpreis zzgl. 20% USt.




Kontakt:


Haben wir Ihr Interesse geweckt? Dann kontaktieren Sie uns bitte unter +43 1 796 15 58 oder unter invest@stadtquartier.at


Weitere Objekte finden Sie unter: www.stadtquartier.at
You can add us on Facebook! Thank you !


Wir weisen darauf hin, dass zwischen dem Vermittler und dem zu vermittelnden Dritten ein familiäres oder wirtschaftliches Naheverhältnis besteht.


Der Vermittler ist als Doppelmakler tätig.

Infrastruktur / Entfernungen

Gesundheit
Arzt <500m
Apotheke <500m
Klinik <500m
Krankenhaus <1.500m

Kinder & Schulen
Schule <500m
Kindergarten <500m
Universität <1.000m
Höhere Schule <1.000m

Nahversorgung
Supermarkt <500m
Bäckerei <500m
Einkaufszentrum <1.000m

Sonstige
Geldautomat <500m
Bank <500m
Post <500m
Polizei <500m

Verkehr
Bus <500m
U-Bahn <500m
Straßenbahn <500m
Bahnhof <500m
Autobahnanschluss <2.000m

Angaben Entfernung Luftlinie / Quelle: OpenStreetMap

Eckdaten Objektnr. 21169

Art: Zinshaus Renditeobjekt
Land: Österreich
Baujahr: 1900
Zustand: Gepflegt
Alter: Altbau
Kaufpreis: 549.000,00
Provision: 3% des Kaufpreises zzgl. 20% USt.
Betriebskosten: 163,23 €
Heizkosten: 89,64 €
MwSt Gesamt: 52,25 €
Nutzfläche: 79,89 m²
Gesamtfläche: 79,89 m²
Heizwärmebedarf: 82,50 kWh/m²a
fGEE: 1,56
Immobilie merken Exposé

Immobilie anfragen


Ihre persönliche Beratung

STADTQUARTIER Home GmbH

STADTQUARTIER INVEST

STADTQUARTIER Real Estate Group

T +43 1 796 15 58

F +43 1 796 15 58 15