The Four Uniques !!!

Wohnung - Dachgeschoß, 1180 Wien


Beschreibung der Immobilie

The Four Uniques !!!

Der Name "The Four Uniques" passt perfekt zu den neuen und exklusiven Dachgeschosswohnungen in der Haizingergasse. Das Wohnhaus ist ein schönes Jahrhundertwendehaus, welches zum Teil im Zuge des Dachgeschossausbaues erneuert und generalsaniert wird.
Es gibt insgesamt 4 einzigartige Wohneinheiten zur Auswahl. Die DG Ebene ist auf 3 Wohnungen aufgeteilt, die ein ultimative Maß an luxuriösem Lebensstil ermöglichen sollen. Das Angebot wird durch eine geräumige und optimal aufgeteilte Altbau-Erdgeschosswohnung abgerundet.

Alle Wohnungen in diesem Projekt erfüllen höchste Standards in individueller Grundrissgestaltung, modernem Komfort und ansprechender Ausstattung. Die Räume, die zu den privaten Außenbereichen führen, sind großzügig verglast und verfügen über Terrassentüren, die einen direkten Zugang ins Freie ermöglichen. Großzügige Terrassen/Dachterrassen, luftige Raumhöhen, zeitlose Eleganz, eine hochwertige Materialwahl auf höchster Qualität versprechen perfektes Wohngefühl.

Hochwertige Ausstattung:

Für ein dauerhaft angenehmes Wohnerlebnis sorgen zudem modernste Baumaterialien und hochwertige Ausstattungselemente im Innenbereich der schlüsselfertig übergebenen Wohneinheiten. Dazu gehören unter anderem Markenarmaturen in Bad und WC, Fußbodenheizung, massive Parkettböden im Wohn- und Essbereich sowie Sicherheitstüren und eine energieeffiziente Fernwärmeversorgung.

So können die Bewohner zu jeder Jahreszeit entspannt den Ausblick genießen

Wohnungen:

Es stehen drei außergewöhnliche Dachgeschosswohnungen mit Größen zwischen 76 m² und 170 m² zur Verfügung, sowie eine exquisit renovierte und ausgestattete Erdgeschosswohnung.

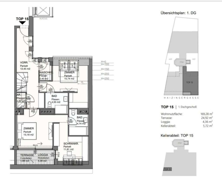
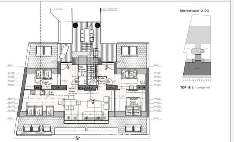
Top 15 1.DG (Loggia + Terrasse) + 2.DG (Wohnterrasse) ca. 170 m² ca. 25 m² ca. 4 m² EUR 1.599.000,00 incl. Garagenplatz
Top 16 (verkauft)
Top 17 1.DG (Loggia + Balkon + Terrasse) ca. 76 m² ca. 5,4 m² ca. 4,5m² EUR 650.000,00 incl. Garagenplatz
Top 01 Erdgeschosswohnung mit Terrasse & Garten ca. 74 m² ca. 4,5 m² ca. 15 m² EUR 500.000,00 incl. Garagenplatz

Lage:

Die Immobilie liegt im schönen Cottageviertel im 18. Bezirk. Sie befindet sich in einer ruhigen Seitenstraße der
Gymnasiumstraße. Etwa 10 Gehminuten entfernt befinden sich die Fachhochschule der Wirtschaftskammer und das
WIFI, sowie die Volksoper. Der beliebte Kutschkermarkt und die Währingerstraße sind bequem zu Fuß erreichbar. Beachten Sie, dass sich das
Projekt in einer Schutzzone befindet.
Bildung:
Kinderkrippen, Kindergärten, Schulen und ein Bundesgymnasium befinden sich in unmittelbarer Nähe.

Gastronomie:
Entlang der Währinger Straße gibt es zahlreiche Restaurants. Am Gürtel haben einige Weinbars und Bierlokale abends geöffnet.


ANFRAGEN:
Wie bitten um Beachtung, dass wir aufgrund unserer Nachweispflicht gegenüber unseren Auftraggebern ausschließlich Anfragen unter Angabe Ihrer vollständigen Daten (Name, Anschrift, Tel. Nr. e - mail Adresse) bearbeiten können. Weiters weisen wir darauf hin, dass wir strikt nach den seit Juni 2014 geltenden FAGG Richtlinien arbeiten.

Wir informieren Sie darüber, dass wir bei diesem Objekt eine Doppelmaklertätigkeit ausüben. (§ 5 Abs. 3 MaklerG). Weiters weisen wir auf ein wirtschaftliches bzw. persönliches Naheverhältnis zum Abgeber hin.

Nebenkosten:
3,5% Grunderwerbsteuer
1,1% Grundbuchseintragung
3,0 % Vermittlungsprovision zzgl. 20% MwSt.
Vertragserrichtung nach Vereinbarung

Es wird darauf hingewiesen, dass die angeführten Daten auf Informationen des Abgebers oder Dritten (z.B. Behörden) beruhen, sodass für die Richtigkeit und Vollständigkeit keine Gewähr übernommen werden kann!

Noch nichts gefunden? Wir informieren Sie über geeignete Immobilienangebote noch vor allen anderen.
Legen Sie jetzt Ihren individuellen Suchagenten unter folgendem Link an. Wir schicken Ihnen passende Immobilien exklusiv vorab zu.

Suchagent anlegen - https://remax-4you.service.immo/registrieren/de

Infrastruktur / Entfernungen

Gesundheit
Arzt <500m
Apotheke <500m
Klinik <500m
Krankenhaus <1.000m

Kinder & Schulen
Schule <500m
Kindergarten <500m
Universität <500m
Höhere Schule <500m

Nahversorgung
Supermarkt <500m
Bäckerei <500m
Einkaufszentrum <1.500m

Sonstige
Geldautomat <500m
Bank <500m
Post <500m
Polizei <1.000m

Verkehr
Bus <500m
U-Bahn <500m
Straßenbahn <500m
Bahnhof <1.000m
Autobahnanschluss <2.000m

Angaben Entfernung Luftlinie / Quelle: OpenStreetMap

Eckdaten Objektnr. 1662/2954

Art: Wohnung - Dachgeschoß
Land: Österreich
Baujahr: 2022
Zustand: Erstbezug
Alter: Altbau
Kaufpreis: 1.599.000,00
Provision: 3% des Kaufpreises zzgl. 20% USt.
Wohnfläche: 169,47 m²
Zimmer: 4
Bäder: 3
WC: 4
Terrassen: 1
Keller: 5,72 m²
Heizwärmebedarf:  B  34,00 kWh/m²a
fGEE:  A  0,75
Immobilie merken Exposé

Ausstattung

Personenaufzug


Immobilie anfragen


Ihre persönliche Beratung

RE/MAX 4You

Martin Meindl

RE/MAX 4You

H +4369917251885