KAUFANBOT ANGENOMMEN_3 Zimmer-Gartenwohnung mit 185 m² Eigengarten am Fuße des Wilhelminenbergs
Wohnung
,
1160
Wien
Beschreibung der Immobilie
KAUFANBOT ANGENOMMEN_3 Zimmer-Gartenwohnung mit 185 m² Eigengarten am Fuße des Wilhelminenbergs
ONLINE TERMINBUCHUNG: https://www.remax.at/de/1662-3104Diese ebenerdige 3-Zimmer-Gartenwohnung vereint großzügige Wohnfläche mit einem außergewöhnlich großen Eigengarten und vielseitiger Nutzungsmöglichkeit – ideal für Paare, Familien oder Menschen, die Wohnen und Arbeiten an einem Ort verbinden möchten. Die Lage am Fuße des Wilhelminenbergs verbindet urbanes Leben mit unmittelbarer Nähe zu Erholungsräumen und hervorragender Anbindung.
Daten & Fakten:
• ca. 95 m² Wohnfläche, 3 Zimmer | ca. 185 m² Eigengarten, 12 m² Terrasse
• Barrierermes Erdgeschoss, überwiegend westlich ausgerichtet
• Uneinsichtiger Garten mit Wasseranschluss & Beleuchtung
• Großzügiger Wohnbereich mit flexibler Raumteilung (Schiebewand)
• Separate Küche und zusätzlicher Wirtschafts-/Abstellraum
• Badezimmer mit Badewanne und Dusche, 1 separates WC
• Weitere Ausstattung: Dreifach verglaste Fenster, Gasheizung & zusätzlicher Schwedenofen, Außenrollos für optimale Beschattung, Sicherheitstüre + versperrbare Fenster und Terrassentüre
• wahlweise möbliert oder unmöbliert – Einbaumöbel und Küche bleiben
• Kellerabteil, Lift, Fahrrad- & Kinderwagenraum, Glasfaseranschluss im Haus
• 1 Garagen-Stellplatz: Preis: 35.000 Euro, NICHT im Kaufpreis inkludiert
Beschreibung & Rundgang:
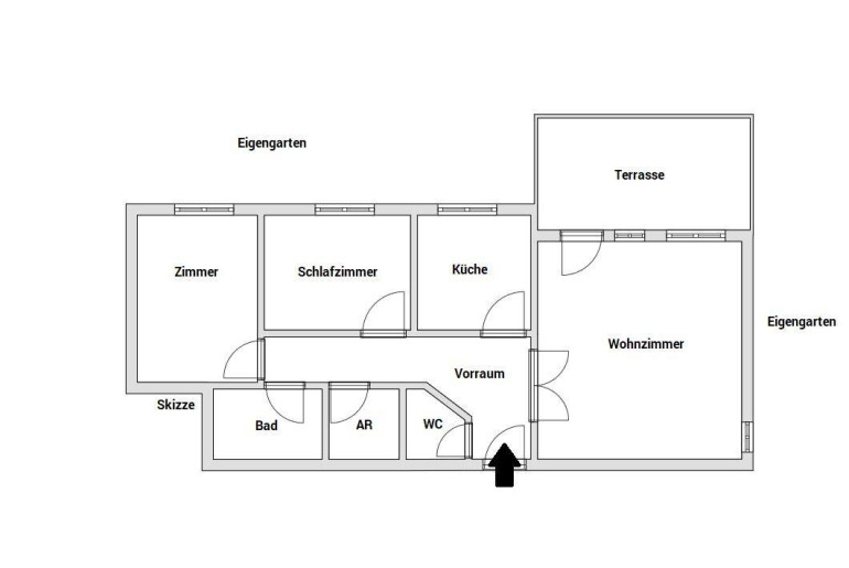
Über den großzügigen Vorraum werden sämtliche Räume zentral erschlossen. Gleich beim Eingang befinden sich das WC sowie ums Eck ein praktischer Wirtschafts- bzw. Abstellraum.
Das Herzstück der Wohnung bildet der rund 34 m² große Wohnbereich mit westseitigen Fensterflächen und direktem Zugang zur Terrasse und in den Eigengarten. Der Außenbereich ist beleuchtet und verfügt unter anderem über einen Wasseranschluss.
Ein Schwedenofen sorgt im Wohnbereich für zusätzliche Behaglichkeit, während die hochwertige Verglasung ganzjährig für ein angenehmes Raumklima sorgt. Dank einer integrierten Schiebewand lässt sich der Wohnbereich flexibel zonieren – etwa für Homeoffice, Atelier, Studio oder Wohnzimmer.
Die separate Küche bietet ausreichend Platz zum Kochen und für einen bequemen Essbereich. Zwei weitere Zimmer– ein kleineres (bis dato als Schlafzimmer genutzt) und ein großzügiges (nutzbar Z. B. als Kinder- oder Gästezimmer), sind ruhig gelegen und ebenfalls zum Garten orientiert. Das Badezimmer ist mit Badewanne und separater Dusche ausgestattet.
Die solide Ausstattung und die ebenerdige Lage verleihen der Wohnung einen barrierearmen Charakter.
Das gepflegte Wohnhaus aus den 1990er-Jahren mit einer kleinen Hausgemeinschaft verfügt über Lift, Kellerabteile sowie einen Fahrrad- und Kinderwagenraum. Vor dem Haus stehen in der Regel ausreichend Parkmöglichkeiten zur Verfügung.
Ein der Wohnung zugeordneter Garagen-Stellplatz ist NICHT im Kaufpreis enthalten und wird für 35.000 Euro angeboten, sodass der Gesamt-Kaufpreis inkl. Garagen-Stellplatz 530.000 Euro beträgt.
Lage:
Die Wohnung liegt in der Erdbrustgasse am Fuße des Wilhelminenbergs. Ottakring selbst gilt als authentisches, vielfältiges Grätzl. Trotz des urbanen Flairs ist die Natur nie weit: die weitläufigen Steinhofgründe und der Wilhelminenberg bieten Erholungsflächen mit Laufstrecken und Picknickwiesen. Spielplätze, das Ottakringer Bad und lokale Märkte wie der Brunnen- und Yppenmarkt machen den Bezirk sehr attraktiv.
Für den täglichen Bedarf stehen in der Umgebung Supermärkte, Bäckereien, Ärzte, Apotheken sowie Schulen und Kindergärten zur Verfügung.
Infrastruktur & Verkehrsanbindung:
quasi vor der Haustüre: Straßenbahnlinien 44, 46, 10
Buslinien 45A, 46A, 46B
Nur wenige Gehminuten entfernt ist der Verkehrsknotenpunkt Wien Ottakring: S45 und U3
Mit der U3 erreicht man den Westbahnhof in etwa zehn Minuten und den Stephansplatz in rund 15 Minuten
Fazit:
Diese Gartenwohnung bietet eine seltene Kombination aus großzügigem Grünraum, flexibel nutzbarer Wohnfläche und urbaner Infrastruktur.
Besichtigung:
Gerne zeigen wir Ihnen die Wohnung im Rahmen eines persönlichen Besichtigungstermins. Wir freuen uns auf Ihre Kontaktaufnahme.
Wir informieren Sie darüber, dass wir bei diesem Objekt eine Doppelmaklertätigkeit ausüben. (§ 5 Abs. 3 MaklerG).
Auf den § 6 Abs 4 Makler G (familiäres oder wirtschaftliches Naheverhältnis) wird hingewiesen.
Noch nichts gefunden? Wir informieren Sie über geeignete Immobilienangebote noch vor allen anderen.
Legen Sie jetzt Ihren individuellen Suchagenten unter folgendem Link an. Wir schicken Ihnen passende Immobilien exklusiv vorab zu.
Suchagent anlegen - https://remax-4you.service.immo/registrieren/de
Infrastruktur / Entfernungen
Gesundheit
Arzt <500m
Apotheke <500m
Klinik <500m
Krankenhaus <500m
Kinder & Schulen
Schule <500m
Kindergarten <500m
Universität <2.000m
Höhere Schule <1.500m
Nahversorgung
Supermarkt <500m
Bäckerei <500m
Einkaufszentrum <1.000m
Sonstige
Geldautomat <500m
Bank <500m
Post <1.000m
Polizei <500m
Verkehr
Bus <500m
U-Bahn <1.000m
Straßenbahn <500m
Bahnhof <1.000m
Autobahnanschluss <5.500m
Angaben Entfernung Luftlinie / Quelle: OpenStreetMap
Eckdaten Objektnr. 1662/3104
| Art: | Wohnung |
| Land: | Österreich |
| Baujahr: | 1994 |
| Zustand: | Neuwertig |
| Alter: | Neubau |
| Kaufpreis: | 495.000,00 € |
| Provision: | 3% des Kaufpreises zzgl. 20% USt. |
| Betriebskosten: | 334,58 € |
| MwSt Gesamt: | 33,46 € |
| Wohnfläche: | 95,00 m² |
| Zimmer: | 3 |
| Bäder: | 1 |
| WC: | 1 |
| Terrassen: | 1 |
| Stellplätze: | 1 |
| Garten: | 185,00 m² |
| Heizwärmebedarf: | D 104,50 kWh/m²a |
| fGEE: | D 1,88 |
Ausstattung
Gas, Etagenheizung, Kamin, Personenaufzug
Ihre persönliche Beratung
Mag. Sophie Cogorno
RE/MAX 4You
H +436765757300