Gut geschnittene Dachgeschoßwohnung in beliebter Wiener Lage

Wohnung - Penthouse, 1060 Wien


Beschreibung der Immobilie

Gut geschnittene Dachgeschoßwohnung in beliebter Wiener Lage

360 Grad Rundgang unter folgenden Link:
https://office-remax-4you-at.vr-360-tour.com/e/VA4BmfGByXc/e

Exklusives Dachgeschoß nahe Naschmarkt – 2 Ebenen, Terrasse & Balkon

Diese beeindruckende Dachgeschoßwohnung befindet sich in ausgezeichneter Lage des 5. Bezirks, nur wenige Schritte vom Naschmarkt und der Mariahilfer Straße entfernt.
Die U4-Station Pilgramgasse ist in kürzester Zeit erreichbar – durch den aktuellen U-Bahn-Ausbau entsteht ein neuer Zugang direkt ums Eck, was die Anbindung weiter verbessert.
Auch die Nahversorgung ist hervorragend: Ein Sparmarkt, Fitnesscenter und ein Massagestudio befinden sich in unmittelbarer Nachbarschaft. Die zentrale Lage vereint urbanes Leben, Freizeitmöglichkeiten und beste Verkehrsanbindung in idealer Weise.

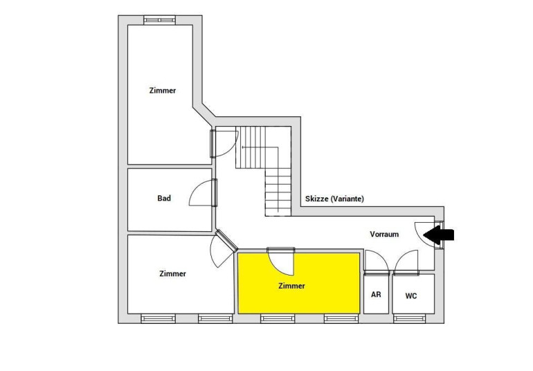
Die Wohnung umfasst rund 125 m² Wohnfläche, verteilt auf zwei Ebenen, und besticht durch ihre lichtdurchfluteten Räume, die großzügige Dachterrasse und den modernen, gepflegten Zustand.

1. Ebene
• Einladendes Vorzimmer
• WC und Abstellraum
• Zwei Zimmer sowie ein Durchgangszimmer, das sich bei Bedarf leicht zu einem dritten Zimmer umbauen lässt
• Großzügiges Badezimmer mit Badewanne und Dusche
• Stilvoller Stiegenaufgang in die obere Ebene

2. Ebene
• Großer, offener Wohn- und Essbereich mit moderner Küche (baulich leicht abgetrennt)
• Zugang zu einem ca. 10 m² großen Balkon
• Von dort weiter auf die rund 40 m² große Dachterrasse mit herrlichem Ausblick – ein echtes Highlight für Sonnenliebhaber und Genießer

Ausstattung & Zustand
• Fernwärmeheizung
• Klimaanlage
• Fenster kürzlich erneuert
• Lift neu
• Das gesamte Haus befindet sich in ausgesprochen gutem Zustand

Eine Garage ist Teil des Angebots und kann für € 50.000,- erworben werden.

Fazit

Diese Dachgeschoßwohnung bietet urbanes Wohnen auf höchstem Niveau – großzügig, lichtdurchflutet und mit fantastischen Freiflächen mitten in der Stadt.
Dank der Kombination aus zentraler Lage, modernem Komfort und hervorragendem Zustand eignet sie sich perfekt für alle, die das Wiener Stadtleben mit einem Hauch Exklusivität genießen möchten.

Wir informieren Sie darüber, dass wir bei diesem Objekt eine Doppelmaklertätigkeit ausüben. (§ 5 Abs. 3 MaklerG).

Noch nichts gefunden? Wir informieren Sie über geeignete Immobilienangebote noch vor allen anderen.
Legen Sie jetzt Ihren individuellen Suchagenten unter folgendem Link an. Wir schicken Ihnen passende Immobilien exklusiv vorab zu.

Suchagent anlegen - https://remax-4you.service.immo/registrieren/de


Der Vermittler ist als Doppelmakler tätig.

Infrastruktur / Entfernungen

Gesundheit
Arzt <500m
Apotheke <500m
Klinik <500m
Krankenhaus <500m

Kinder & Schulen
Schule <500m
Kindergarten <500m
Universität <1.000m
Höhere Schule <1.000m

Nahversorgung
Supermarkt <500m
Bäckerei <500m
Einkaufszentrum <1.000m

Sonstige
Geldautomat <500m
Bank <500m
Post <500m
Polizei <500m

Verkehr
Bus <500m
U-Bahn <500m
Straßenbahn <1.000m
Bahnhof <500m
Autobahnanschluss <4.000m

Angaben Entfernung Luftlinie / Quelle: OpenStreetMap

Eckdaten Objektnr. 1662/3091

Art: Wohnung - Penthouse
Land: Österreich
Baujahr: 2004
Zustand: Neuwertig
Kaufpreis: 999.999,00
Provision: 3% des Kaufpreises zzgl. 20% USt.
Betriebskosten: 220,66 €
MwSt Gesamt: 28,54 €
Wohnfläche: 125,00 m²
Zimmer: 4
Bäder: 1
WC: 1
Balkone: 1
Terrassen: 1
Heizwärmebedarf:  C  61,00 kWh/m²a
fGEE:  B  0,98
Immobilie merken Exposé

Ausstattung

Zentralheizung, Personenaufzug


Immobilie anfragen


Ihre persönliche Beratung

RE/MAX 4You

Josef Kottulinsky

RE/MAX 4You

T +43 1/403 28 90

H +43 699/11725589

F +43 1/403 28 06