Dachgeschoss mit Terrasse - Ausblick auf die Gloriette

Wohnung - Maisonette, 1140 Wien


Beschreibung der Immobilie

Dachgeschoss mit Terrasse - Ausblick auf die Gloriette

Diese moderne Dachgeschosswohnung im 3. Stock ohne Lift bietet Ihnen ein einzigartiges Wohngefühl in einer ruhigen Gasse, nur wenige Minuten vom beeindruckenden Schloss Schönbrunn entfernt. Die Wohnung wurde im Jahr 2008 ausgebaut und besticht durch ihren optimalen Grundriss.



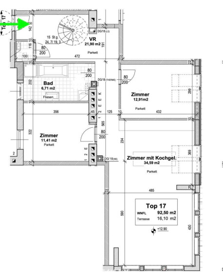
Raumaufteilung:

Beim Betreten der Wohnung empfängt Sie ein geräumiger Vorraum, der mit einer eleganten Wendeltreppe zur oberen Galerie führt. Diese Galerie wird derzeit von der Eigentümerin als Büro genutzt und bietet Zugang zu einer ca. 17 m² großen Terrasse. Hier können Sie entspannen und den atemberaubenden Rundumblick genießen – besonders hervorzuheben ist der Blick auf die Gloriette, der Ihnen täglich Freude bereiten wird.



Die untere Ebene der Wohnung verfügt über einen Flur, von dem aus alle weiteren Räumlichkeiten zentral begehbar sind. Eines der beiden Schlafzimmer ist komplett hofseitig gelegen und sorgt somit für eine ruhige Nachtruhe. Das Badezimmer ist mit einer komfortablen Eckwanne sowie einer separaten Dusche ausgestattet – ideal für entspannende Momente.



Das großzügige Wohnzimmer überzeugt durch seine offene Küche, die perfekt mit einem Esstisch konzipiert wurde und somit einen geselligen Mittelpunkt des Wohnens schafft.



Lage:

Die Wohnung befindet sich in einer ruhigen Gasse, die dennoch eine hervorragende Anbindung an das städtische Leben bietet. In unmittelbarer Nähe finden Sie zahlreiche Einkaufsmöglichkeiten, Cafés und Restaurants. Die Nähe zum Schloss Schönbrunn ermöglicht es Ihnen, die Schönheit dieser historischen Stätte jederzeit zu genießen.



Verkehrsanbindung:

In nur 5 Minuten zu Fuß erreichen Sie die U-Bahn-Station U4 Hietzing, die Ihnen eine schnelle Verbindung ins Stadtzentrum ermöglicht. Darüber hinaus stehen Ihnen mehrere Straßenbahnlinien (10, 52, 60) sowie die Buslinien 56A, 56B, 58A, 58B und N54 zur Verfügung.



Wir informieren Sie darüber, dass wir bei diesem Objekt eine Doppelmaklertätigkeit ausüben. (§ 5 Abs. 3 MaklerG).

Noch nichts gefunden? Wir informieren Sie über geeignete Immobilienangebote noch vor allen anderen.
Legen Sie jetzt Ihren individuellen Suchagenten unter folgendem Link an. Wir schicken Ihnen passende Immobilien exklusiv vorab zu.

Suchagent anlegen - https://remax-4you.service.immo/registrieren/de


Der Vermittler ist als Doppelmakler tätig.

Infrastruktur / Entfernungen

Gesundheit
Arzt <500m
Apotheke <500m
Klinik <500m
Krankenhaus <2.000m

Kinder & Schulen
Schule <500m
Kindergarten <500m
Universität <500m
Höhere Schule <2.500m

Nahversorgung
Supermarkt <500m
Bäckerei <500m
Einkaufszentrum <1.500m

Sonstige
Geldautomat <500m
Bank <500m
Post <1.000m
Polizei <1.000m

Verkehr
Bus <500m
U-Bahn <500m
Straßenbahn <500m
Bahnhof <500m
Autobahnanschluss <4.000m

Angaben Entfernung Luftlinie / Quelle: OpenStreetMap

Eckdaten Objektnr. 1662/3017

Art: Wohnung - Maisonette
Land: Österreich
Baujahr: 2008
Zustand: Gepflegt
Alter: Neubau
Kaufpreis: 599.000,00
Provision: 3% des Kaufpreises zzgl. 20% USt.
Betriebskosten: 151,80 €
MwSt Gesamt: 15,18 €
Wohnfläche: 92,00 m²
Zimmer: 3,50
Bäder: 1
WC: 1
Terrassen: 1
Heizwärmebedarf:  B  49,60 kWh/m²a
Immobilie merken Exposé

Ausstattung

Gas, Etagenheizung, Wohnküche / offene Küche


Immobilie anfragen


Ihre persönliche Beratung

RE/MAX 4You

Stefan Besic

RE/MAX 4You

T +43 1/403 28 90

H +43 699/151 151 08

F +43 1/403 28 06