++NEU++ Exklusive 3-Zimmer Altbauwohnung mit bewilligtem Balkon und High-End Ausstattung in TOP-Location im 9. Bezirk!

Wohnung - Terrassenwohnung, 1090 Wien , Säulengasse


Beschreibung der Immobilie

++NEU++ Exklusive 3-Zimmer Altbauwohnung mit bewilligtem Balkon und High-End Ausstattung in TOP-Location im 9. Bezirk!

++ TOP 3-Zimmer-Altbau-Erstbezug mit bewilligtem Balkon in begehrter Lage des 9. Bezirks!



Zwei getrennte Schlafzimmer | bewilligter Balkon | hochwertige Ausstattung | Gemeinschaftsgarten | Ost-West-Ausrichtung | perfekte Infrastruktur




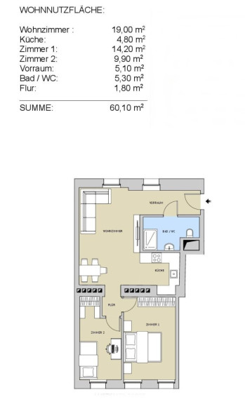
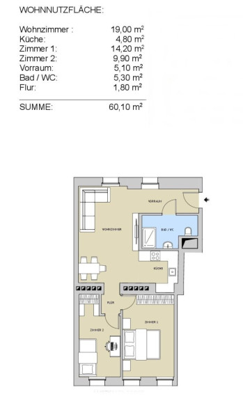
Zum Verkauf gelangt eine exzellent aufgeteilte, lichtdurchflutete Premium-Altbauwohnung mit ca. 60,10 m² Wohnfläche, im 3. Liftstock eines gepflegten Stilaltbaus – in einem der charmantesten Grätzel Wiens, nahe Sobieskiplatz.



>> BEZUGSFERTIG ab sofort!



>> Balkon (ca. 7,80 m²) bereits baubehördlich bewilligt!




Raumaufteilung:




  • einladender Vorraum



  • geräumiges helles Wohnzimmer mit Möglichkeit zum Balkonausgang



  • optisch getrennte Küche (alle Anschlüsse vorhanden)



  • 2 separat begehbare Schlafzimmer



  • exklusives Bad mit Walk-in-Dusche, Waschtisch & WC



  • Gemeinschaftsgarten im Innenhof



  • Balkon ca. 7,80 m² (bewilligt)





Ausstattung im Überblick:



++ hochwertiger Vollholzparkettboden



++ elegante, moderne Fliesen



++ Fußbodenheizung



++ 3-fach verglaste Qualitätsfenster



++ modernes Lichtkonzept



++ Netzwerkverkabelung (TV/Internet)



++ stilvoll ausgestattetes Badezimmer



++ Technik auf dem neuesten Stand





Das Gebäude:



Stilvoller Altbau mit historischer Substanz, gepflegt und mit Lift. Die Wohnung liegt im 3. Obergeschoss.





Lage & Infrastruktur – alles vor der Tür:



Der 9. Bezirk zählt zu den beliebtesten Wohnlagen Wiens – urban, belebt und doch grün.



+ Nahversorgung: Supermärkte, Banken, Apotheken, Ärzte, Lokale und Gastronomie (Sobieskiplatz fußläufig)



+ Bildung & Gesundheit: Kindergärten, Schulen, Gymnasien sowie medizinische Einrichtungen in unmittelbarer Umgebung



+ Parks & Freizeit: Gemeinschaftsgarten im Haus + zahlreiche Grünflächen in Gehweite





Top-Verkehrsanbindung:



- U6 Währinger Straße / Volksoper (ca. 5 Gehminuten)



- Straßenbahnlinien: 37, 38, 40, 41, 42



- Buslinie 40A



- Franz-Josefs-Bahnhof in ca. 10 Gehminuten erreichbar





Kaufpreis:



EUR 439.000.-
Erstbezug nach Sanierung!





Vereinbaren Sie noch heute Ihre Besichtigung und überzeugen Sie sich selbst von diesem besonderen Angebot!






Ihr Ansprechperson: Herr Sadia ALPEROVITS

Telefonnummer: +43 660 380 7232

Email: sa@direktfinanzimmo.at

gerne zur Verfügung!





Firmenname: gb-direkt Finanzberatung & Immobilienhandel GmbH

A-1120 Wien, Aßmayergasse 60/1



Bitte haben Sie Verständnis, dass wir aufgrund der Nachweispflicht gegenüber dem Eigentümer nur Anfragen

mit VOLLSTÄNDIGEN Kontaktdaten (Name, Telefon, Email) beantworten können.

*******************************************



Kaufnebenkosten:

3,5 % Grunderwerbsteuer

1,1 % Grundbucheintragungsgebühr (= entfällt bei Eigennutzung!)

1,5 % Vertragserrichtungskosten + 20 % MwSt.

3 % Provision + 20 % MwSt.



Energieausweis wird nachgereicht.

Die Informationen beruhen teilweise auf Angaben des Eigentümers und sind ohne Gewähr! Wir haften daher nicht für deren Richtigkeit.

Irrtümer und Änderungen sowie Zwischenverkauf vorbehalten.



Wir möchten darauf hinweisen, dass zwischen GB-Direkt Finanzberatung GmbH und dem Auftraggeber ein wirtschaftliches Naheverhältnis besteht.

Direkt Finanz Immo GmbH ist als Doppelmakler tätig.


Wir weisen darauf hin, dass zwischen dem Vermittler und dem zu vermittelnden Dritten ein familiäres oder wirtschaftliches Naheverhältnis besteht.

Infrastruktur / Entfernungen

Gesundheit
Arzt <250m
Apotheke <250m
Klinik <250m
Krankenhaus <500m

Kinder & Schulen
Schule <250m
Kindergarten <250m
Universität <250m
Höhere Schule <250m

Nahversorgung
Supermarkt <250m
Bäckerei <250m
Einkaufszentrum <1.750m

Sonstige
Geldautomat <250m
Bank <500m
Post <250m
Polizei <750m

Verkehr
Bus <250m
U-Bahn <250m
Straßenbahn <250m
Bahnhof <250m
Autobahnanschluss <1.750m

Angaben Entfernung Luftlinie / Quelle: OpenStreetMap

Eckdaten Objektnr. 1587/64961

Art: Wohnung - Terrassenwohnung
Land: Österreich
Baujahr: 1900
Zustand: Erstbezug
Alter: Altbau
Kaufpreis: 439.000,00
Provision: 3% des Kaufpreises zzgl. 20% USt.
Betriebskosten: 125,87 €
MwSt Gesamt: 14,56 €
Wohnfläche: 61,00 m²
Zimmer: 3
Bäder: 1
WC: 1
Balkone: 1
Heizwärmebedarf:  C  82,80 kWh/m²a
Immobilie merken Exposé

Ausstattung

Parkett, Fliesen, Gas, Fußbodenheizung, Personenaufzug, Westbalkon, Dusche, DV-Verkabelung


Immobilie anfragen


Ihre persönliche Beratung

“gb-direkt” Finanzberatung & Immobilienhandel GmbH

Sadia Alperovits

“gb-direkt” Finanzberatung & Immobilienhandel GmbH

H +43 660 380 72 32