Sanierungsbedürftige 67m²-Wohnung nahe Sonnwendviertel

Wohnung , 1100 Wien


Sonnwendgasse

Beschreibung der Immobilie

Sanierungsbedürftige 67m²-Wohnung nahe Sonnwendviertel

Zum Verkauf gelangt eine sanierungsbedürftige Wohnung in attraktiver Lage nahe dem Sonnwendviertel. Die Wohnung befindet sich im 4. Stock eines gepflegten Wohnhauses mit Lift und liegt ruhig, teils in Hoflage, was trotz urbaner Umgebung ein angenehmes Wohngefühl bietet.



Die Immobilie überzeugt durch einen gut geschnittenen Grundriss, großzügige Räume und viel Potenzial zur individuellen Gestaltung. 



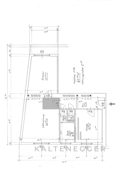
Raumaufteilung und Flächen:
Wohnzimmer ca. 23,8 m²

Schlafzimmer ca. 15,64 m²

Zimmer mit Küche ca. 13,56 m²

Vorraum ca. 7,18 m²

Badezimmer ca. 4,34 m²

WC ca. 1,10 m²

Abstellraum ca. 1,30 m²



Der Wohnung ist ein Kellerabteil zugeordnet.













Highlights
4. Stock mit Lift

Nähe zum Sonnwendviertel

Nähe zum Wiener Hauptbahnhof

Sehr gute öffentliche Verkehrsanbindung

Gute Raumaufteilung

Sanierungsbedürftig mit großem Wertsteigerungspotenzial

Kellerabteil vorhanden



Lage
Die Lage nahe dem Sonnwendviertel und dem Wiener Hauptbahnhof bietet eine ausgezeichnete Infrastruktur mit sehr guter öffentlicher Verkehrsanbindung, vielfältigen Einkaufsmöglichkeiten, Gastronomie und Naherholungsflächen in unmittelbarer Nähe sowie eine rasche Anbindung an das Stadtzentrum und überregionale Verkehrsverbindungen.



Fazit
Eine ruhig gelegene Wohnung mit viel Potenzial in zentraler Lage – ideal für Käufer, die Wert auf Gestaltungsspielraum und langfristige Wertentwicklung legen.







Geplante Sanierungsmaßnahmen
Für die Liegenschaft sind thermisch-energetische Sanierungsmaßnahmen in Vorbereitung. Eine Ausschreibung wurde bereits durchgeführt, Fördermittel wurden beantragt. Die endgültigen Kosten stehen erst nach Förderzusage und Beschlussfassung fest. Laut aktueller Informationslage ist von moderaten laufenden Mehrkosten auszugehen.



Bei Interesse an einer Besichtigung oder bei weiteren Fragen zur Immobilie können Sie mich gerne telefonisch oder per E-Mail kontaktieren.

Eckdaten Objektnr. 5530

Art: Wohnung
Land: Österreich
Baujahr: 1962
Zustand: Sanierungsbeduerftig
Kaufpreis: 199.000,00
Provision: 3% des Kaufpreises zzgl. 20% USt.
Betriebskosten: 141,52 €
MwSt Gesamt: 15,18 €
Nutzfläche: 67,00 m²
Zimmer: 3
Bäder: 1
WC: 1
Heizwärmebedarf:  D  94,20 kWh/m²a
fGEE:  D  1,83
Immobilie merken Exposé

Ausstattung

Gas, Etagenheizung, Personenaufzug, Bad mit Fenster, Badewanne


Immobilie anfragen


Ihre persönliche Beratung

Kaltenegger Realitäten GmbH

Alexandra Kotthaus

Kaltenegger Realitäten GmbH

H +43 664 881 866 77