Provisionsfreie 2-Zimmer Wohnung im 3. Stock!

Wohnung , 1110 Wien , Brambillagasse 20


Beschreibung der Immobilie

Provisionsfreie 2-Zimmer Wohnung im 3. Stock!

PROVISIONSFREI für den Käufer!



​Alle verfügbaren Wohnungen finden Sie auch auf unserer Homepage.





"Brambilla" - Ihr neues Zuhause, Investment und Vorsorge



Dieses beeindruckende und exklusive Projekt befindet sich im Herzen von Simmering nur einen kurzen Spaziergang von der U3 Station „Simmering“ entfernt. Die Wohnhausanlage befindet sich in einer ruhigen Seitengasse und bietet trotzdem die vollen Vorteile einer urbanen Lage.




Zum Verkauf gelangen 16 freifinanzierte Wohnungen und 4 freifinanzierte Town-Houses.



EIGENGRUND! - KEINE PACHT!



Die voraussichtliche Fertigstellung ist im Sommer 2026 geplant.



Highlights der Liegenschaft:



  • Wärmepumpe
  • PV-Anlage für eine energieeffiziente Wohnhausanlage und niedrigere Betriebskosten
  • Jede Wohnung mit privater Freifläche! Balkon, Terrasse oder Eigengärten
  • Echtholzböden
  • Keramischer Fliesenbelag in den Nassräumen
  • 3 - fach verglaste Kunsstofffenster mit Alu Deckschale
  • Schließanlage
  • Personenlift
  • Tiefgarage
  • Heizung und Temperierung mittels Fußbodenheizung




Lage: Auto adé



Sollten Sie kein Fahrzeug besitzen, ist das bei dieser Adresse kein Hindernis. Zahlreiche Nahversorger, Dinge des täglichen Bedarfs und die U3 befinden sich unmittelbarer Nähe der Liegenschaft. Für Naturliebhaber und entspannte Stunden im Freien ist die Parkanlage Löwygrube und der Kurpark Oberlaa sowohl mit dem Fahrrad wie auch öffentlich ideal erreichbar.

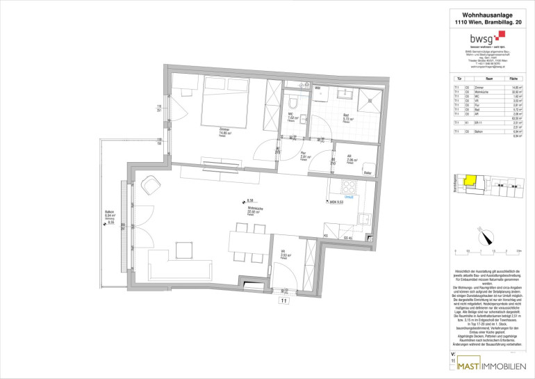
Details Wohnung Top 11:



Die Wohnung befindet sich im 3. Liftstock und verfügt über 63,50 m² Wohnfläche + einen 6,94 m²  großen Balkon. 



Die Wohnung gliedert sich wie folgt: 



  • Vorraum ca. 3,53 m²
  • Wohnküche ca. 32,92 m²
  • Schlafzimmer ca. 14,85 m²
  • Abstellraum ca. 2,06 m²
  • Badezimmer ca. 5,72 m²
  • Separate Toilette ca. 1,62 m²
  • Balkon ca. 6,94 m²
  • Kellerabteil ca. 2,51 m²


Ein Tiefgaragenstellplatz kann um 39.000 € erworben werden. Der Kaufpreis für die Wohnung beträgt für Anleger € 404.651,06 Netto zzgl. 20% USt. 



Auf unserer Homepage finden Sie eine Übersicht zu allen verfügbaren 3-Zimmer-Wohnungen sowie nähere Details dazu. 


Wir weisen darauf hin, dass zwischen dem Vermittler und dem zu vermittelnden Dritten ein familiäres oder wirtschaftliches Naheverhältnis besteht.

Infrastruktur / Entfernungen

Gesundheit
Arzt <425m
Apotheke <150m
Klinik <1.900m
Krankenhaus <3.575m

Kinder & Schulen
Schule <175m
Kindergarten <350m
Universität <2.500m
Höhere Schule <2.725m

Nahversorgung
Supermarkt <75m
Bäckerei <125m
Einkaufszentrum <875m

Sonstige
Geldautomat <150m
Bank <150m
Post <125m
Polizei <475m

Verkehr
Bus <150m
U-Bahn <350m
Straßenbahn <375m
Bahnhof <350m
Autobahnanschluss <1.925m

Angaben Entfernung Luftlinie / Quelle: OpenStreetMap

Eckdaten Objektnr. 5387/8203

Art: Wohnung
Land: Österreich
Baujahr: 2025
Zustand: Erstbezug
Alter: Neubau
Kaufpreis: 435.500,00
Provision: Provision bezahlt der Abgeber.
Betriebskosten: 140,67 €
MwSt Gesamt: 14,07 €
Wohnfläche: 63,50 m²
Nutzfläche: 63,50 m²
Zimmer: 2
Bäder: 1
WC: 1
Balkone: 1
Keller: 2,51 m²
Heizwärmebedarf: 31,70 kWh/m²a
fGEE: 0,75
Immobilie merken Exposé

Immobilie anfragen


Ihre persönliche Beratung

MAST Immo GmbH

Stefanie Vidovic

MA.ST Immobilien & Design e.U.

T +43 664 967 65 48