Flexible Büro- und Gewerbefläche mit ca. 460 m² in Praterstern-Nähe Gewerbeobjekt mit Zufahrt & Lagerflächen in zentraler Wiener Lage

Halle / Lager / Produktion , 1020 Wien


Top-Standort zwischen Praterstern und Grünem Prater – urban, lebendig und hervorragend erreichbar. Optimale Infrastruktur durch öffentliche Verkehrsmittel sowie kurze Wege in die Innenstadt und zum Donaukanal.

Beschreibung der Immobilie

Flexible Büro- und Gewerbefläche mit ca. 460 m² in Praterstern-Nähe Gewerbeobjekt mit Zufahrt & Lagerflächen in zentraler Wiener Lage

Diese großzügige Gewerbeimmobilie mit rund 460 m² Gesamtnutzfläche befindet sich in einer der gefragtesten Geschäfts- und Wohnlagen Wiens – zwischen dem Praterstern und dem Grünen Prater.



Die hervorragende Verkehrsanbindung (U-Bahn, S-Bahn, Straßenbahn und Bus) sowie die Nähe zur Innenstadt und zum Donaukanal machen diesen Standort besonders attraktiv für Unternehmen unterschiedlichster Branchen.



Die Fläche ist flexibel nutzbar und eignet sich ideal für Büro-, Praxis-, Schulungs- oder Gewerbezwecke. Sanitärräume sowie eine praktische Zufahrt für Transporter und Klein-LKW (bis ca. 2,30 m Höhe) sind vorhanden.




Nutzungsmöglichkeiten (Beispiele)




  • Co-Working-Space oder Einzelbüros



  • Ordination / Therapiezentrum



  • Seminar- & Schulungszentrum



  • Showroom oder Kreativstudio



  • Fitness- oder Yoga-Studio



  • Startup Hub oder Firmensitz



  • Bildungs- oder Betreuungseinrichtung



  • Lager mit Büroeinheit (Light Industrial)



  • Vereinslokal oder NGO-Zentrum





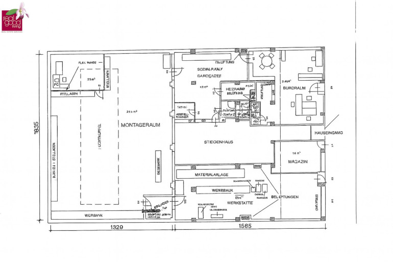
Flächenaufstellung (ca. 459,64 m²)




  • Büroraum: ca. 54,74 m²



  • Magazin: ca. 14 m²



  • WC: ca. 1,6 m²



  • Waschraum: ca. 1,5 m²



  • Heizraum: ca. 6,8 m²



  • Duschraum: ca. 3 m²



  • Sozialraum: ca. 43 m²



  • Abstellraum: ca. 4 m²



  • Werkstätte: ca. 88 m²



  • Kleinlager: ca. 7 m²



  • Montageraum: ca. 213 m²



  • PC-Raum: ca. 23 m²




Zusätzlich steht ein trockenes Kellerlager mit ca. 80 m² zur Verfügung.




Ausstattung




  • WC- und Duschanlagen



  • Zufahrt über Garagen-Einfahrt (Höhe bis ca. 2,30 m)



  • Großzügige Raumstruktur mit vielfältigen Nutzungsmöglichkeiten



  • Zusätzliches Kellerlager





Kaufpreis & Nebenkosten



Kaufpreis: € 770.000,–
Provision: 3 % des Kaufpreises zzgl. 20 % USt



WICHTIGER HINWEIS



Wir bitten um Verständnis, dass wir aufgrund unserer Nachweispflicht gegenüber dem Eigentümer nur Anfragen mit vollständiger Angabe von Name, Anschrift, E-Mail-Adresse und Telefonnummer bearbeiten können.

Vertrauliche Objektinformationen werden ausschließlich bei vollständig ausgefüllten Kontaktdaten weitergegeben.

Alle Angaben zum Objekt beruhen auf Informationen des Abgebers und erfolgen ohne Gewähr.


Hinweis gemäß Energieausweisvorlagegesetz: Ein Energieausweis wurde vom Eigentümer bzw. Verkäufer, nach unserer Aufklärung über die generell geltende Vorlagepflicht, sowie Aufforderung zu seiner Erstellung noch nicht vorgelegt. Daher gilt zumindest eine dem Alter und der Art des Gebäudes entsprechende Gesamtenergieeffizienz als vereinbart. Wir übernehmen keinerlei Gewähr oder Haftung für die tatsächliche Energieeffizienz der angebotenen Immobilie.


Wir weisen darauf hin, dass zwischen dem Vermittler und dem zu vermittelnden Dritten ein familiäres oder wirtschaftliches Naheverhältnis besteht.


Der Vermittler ist als Doppelmakler tätig.

Infrastruktur / Entfernungen

Gesundheit
Arzt <500m
Apotheke <500m
Klinik <1.000m
Krankenhaus <2.000m

Kinder & Schulen
Schule <500m
Kindergarten <500m
Universität <500m
Höhere Schule <2.500m

Nahversorgung
Supermarkt <500m
Bäckerei <500m
Einkaufszentrum <2.000m

Sonstige
Geldautomat <500m
Bank <500m
Post <500m
Polizei <500m

Verkehr
Bus <500m
U-Bahn <500m
Straßenbahn <500m
Bahnhof <500m
Autobahnanschluss <1.500m

Angaben Entfernung Luftlinie / Quelle: OpenStreetMap

Eckdaten Objektnr. 4356/376

Art: Halle / Lager / Produktion
Land: Österreich
Baujahr: 1964
Zustand: Gepflegt
Alter: Neubau
Kaufpreis: 770.000,00
Kaufpreis / m²: 1.675,22 €
Provision: 3% des Kaufpreises zzgl. 20% USt.
Betriebskosten: 869,62 €
MwSt Gesamt: 173,92 €
Nutzfläche: 459,64 m²
Gesamtfläche: 459,64 m²
WC: 2
Immobilie merken Exposé

Ausstattung

Personenaufzug, Dusche, Teeküche


Immobilie anfragen


Ihre persönliche Beratung

RealGoodLiving Real Estate Services GmbH

Bruno Franz

RealGoodLiving Real Estate Services GmbH

T +43 660 245 44 57

H +43 664 3553 790