Terrassenwohnung in Schwechat | ZELLMANN IMMOBILIEN

Wohnung , 2320 Schwechat , Wienerstrasse


Die Wiener Straße in Schwechat bietet eine ausgezeichnete Lage mit sehr guter öffentlicher Anbindung: Bus- und S-Bahn-Stationen befinden sich in unmittelbarer Nähe, wodurch sowohl das Stadtzentrum Wiens als auch der Flughafen schnell erreichbar sind. Der Flughafen Wien-Schwechat liegt nur ca. 10 Minuten entfernt – ideal für Pendler und Vielreisende.

Beschreibung der Immobilie

Terrassenwohnung in Schwechat | ZELLMANN IMMOBILIEN

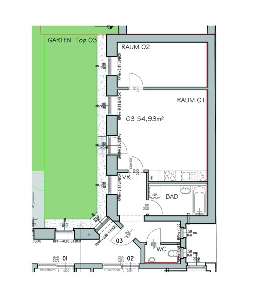
Helle Gartenwohnung mit eigenem Grünbereich



Diese einladende Wohnung bietet auf rund 55 m² Wohnfläche ein angenehmes Zuhause mit direktem Zugang zum eigenen Garten. Die Kombination aus durchdachtem Grundriss und privater Grünfläche sorgt für ein besonderes Wohngefühl.



Beim Betreten der Wohnung empfängt Sie ein praktischer Eingangsbereich, von dem aus alle Räume erreichbar sind. Der großzügige Wohn- und Essbereich ist der zentrale Mittelpunkt der Wohnung und bietet ausreichend Platz für eine gemütliche Sitzgruppe sowie einen Esstisch. Von hier gelangt man auch direkt in den Garten.



Ein weiterer Raum steht als Schlafzimmer, Gästezimmer oder zusätzlicher Aufenthaltsraum zur Verfügung und lässt sich je nach Bedarf flexibel möblieren.



Das Badezimmer ist modern ausgestattet – unter anderem mit Badewanne, Waschbecken und Anschlussmöglichkeit für eine Waschmaschine. Ein separates WC erhöht den Wohnkomfort zusätzlich.



Besonders hervorzuheben ist der private Garten, der den Wohnraum nach draußen erweitert. Hier ist Platz zum Entspannen, für Spiele im Freien oder zur Gestaltung einer kleinen Grünoase.




Auf einen Blick:




  • Gartenwohnung mit direktem Zugang ins Freie



  • ca. 55 m² Wohnfläche



  • Großzügiger Wohn- und Essbereich



  • Zusätzliches Zimmer zur flexiblen Nutzung



  • Modernes Badezimmer mit Badewanne und Waschmaschinenanschluss



  • Separates WC



  • Praktischer Eingangsbereich



  • Helle Räume und angenehme Wohnlage






Interesse?



Sollten wir Ihr Interesse geweckt haben, ersuchen wir Sie in aller Höflichkeit, Ihre Anfrage ausschließlich über dieses Webportal zu stellen.

Im Anschluss senden wir Ihnen zeitnah sämtliche Unterlagen sowie weitere Informationen zur Wohnung zu.




Lage & Umgebung:



Die Wohnung liegt in einer ruhigen Wohngegend von Schwechat mit guter Infrastruktur und Verkehrsanbindung. Einkaufsmöglichkeiten, öffentliche Verkehrsmittel sowie Freizeit- und Erholungsflächen befinden sich in der Nähe. Die Umgebung bietet angenehmes, stadtnahes Wohnen mit viel Grün – ideal für Singles oder Paare, die auf der Suche nach einem ruhigen Zuhause mit Außenfläche sind.




Kontaktieren Sie uns für eine Besichtigung – wir freuen uns auf Ihre Anfrage!



_____________



WICHTIG:



Da e-mails leider manchmal in SPAM oder WERBE Ordnern landen, ersuchen wir Sie diese zu kontrollieren. Wir antworten in der Regel binnen weniger Stunden. Auch am Wochenende! Teilen Sie uns bitte auch Ihre Telefonnummer mit, da wir Sie per SMS über die Versendung des Exposés verständigen können! Dieses Objekt wird Ihnen unverbindlich und freibleibend zur Miete angeboten. Oben angeführte Angaben basieren auf Informationen und Unterlagen des Eigentümers und sind unsererseits ohne Gewähr. 



Noch nichts gefunden? Wir informieren Sie über geeignete Immobilienangebote noch vor allen anderen.
Legen Sie jetzt Ihren individuellen Suchagenten unter folgendem Link an. Wir schicken Ihnen passende Immobilien exklusiv vorab zu. 



-> Suchagent anlegen


Hinweis gemäß Energieausweisvorlagegesetz: Ein Energieausweis wurde vom Eigentümer bzw. Verkäufer, nach unserer Aufklärung über die generell geltende Vorlagepflicht, sowie Aufforderung zu seiner Erstellung noch nicht vorgelegt. Daher gilt zumindest eine dem Alter und der Art des Gebäudes entsprechende Gesamtenergieeffizienz als vereinbart. Wir übernehmen keinerlei Gewähr oder Haftung für die tatsächliche Energieeffizienz der angebotenen Immobilie.


Der Immobilienmakler erklärt, dass er – entgegen dem in der Immobilienwirtschaft üblichen Geschäftsgebrauch des Doppelmaklers – einseitig nur für den Vermieter tätig ist.

Infrastruktur / Entfernungen

Gesundheit
Arzt <750m
Apotheke <1.000m
Klinik <750m
Krankenhaus <7.500m

Kinder & Schulen
Schule <750m
Kindergarten <500m
Universität <6.500m
Höhere Schule <6.750m

Nahversorgung
Supermarkt <500m
Bäckerei <750m
Einkaufszentrum <500m

Sonstige
Geldautomat <750m
Bank <750m
Post <1.000m
Polizei <750m

Verkehr
Bus <250m
U-Bahn <4.250m
Straßenbahn <750m
Bahnhof <250m
Autobahnanschluss <1.500m
Flughafen <8.500m

Angaben Entfernung Luftlinie / Quelle: OpenStreetMap

Eckdaten Objektnr. 25324

Art: Wohnung
Land: Österreich
Zustand: Gepflegt
Gesamtmiete: 899,00
Kaltmiete (netto): 646,77 €
Kaltmiete: 817,27 €
Provision: Gemäß Erstauftraggeberprinzip bezahlt der Abgeber die Provision.
Betriebskosten: 170,50 €
MwSt Gesamt: 81,73 €
Wohnfläche: 55,00 m²
Zimmer: 2
Bäder: 1
WC: 1
Garten: 30,00 m²
Immobilie merken Exposé

Ausstattung

Fliesen, Parkett, Gas, Etagenheizung, Einbauküche, Badewanne, Kabel/Satelliten-TV


Immobilie anfragen


Ihre persönliche Beratung

ZELLMANN IMMOBILIEN GmbH | Vertrauen. Service. Qualität.

Nicole Zellmann

ZELLMANN IMMOBILIEN

T +43 699 15 15 22 01

H +43 699 15 15 22 01