++ WERTANLAGE ++ ZUKUNFTSORIENTIERT INVESTIEREN + rd. 4% Rendite + Top Immobilie in Top Zustand

Wohnung , 1160 Wien , Landsteinergasse


Landsteinergasse öffentliche Verkehrsanbindung: U3 Ottakring // Straßenbahnlinien 10, 44, 46, 60

Beschreibung der Immobilie

++ WERTANLAGE ++ ZUKUNFTSORIENTIERT INVESTIEREN + rd. 4% Rendite + Top Immobilie in Top Zustand

In begehrter Lage des 16. Bezirks, nahe der Klinik Ottakring, wird diese befristet vermietete Neubauwohnung zum Verkauf angeboten. Diese Wertanlage wurde 2024 rundum erneuert und wird derzeit als Praxis genutzt. Parkettböden, geschmackvolle Badezimmerausstattung, Innentüren im Stil "Alt Wien" und vieles mehr sorgen für ein angenehmes Wohngefühl.



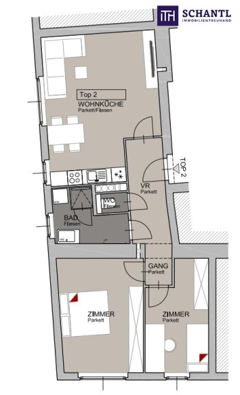
Im Zuge der umfangreichen Sanierung wurde viel Wert auf einen praktischen und gut durchdachten Grundriss gelegt. Gleich im Eingangsbereich befinden sich das WC sowie das geschmackvolle Badezimmer. Die beiden Schlafzimmer sind getrennt vom Vorraum aus zu begehen. Auch die Wohnküche überzeugt durch ihre Großzügigkeit sowie Helligkeit.



Die Nutzungsmöglichkeiten als Büro, Ordination aber auch als Wohnung sind im Wohnungseigentumsvertrag bereits verankert.



Kurz zusammengefasst: Lukratives Investment mit möglicher Eigennutzung in absehbarer Zukunft!



Die Wohnung befindet sich im Hochparterre! (Von der Straße aus NICHT einsehbar! Teils durch Sichtschutzfolien, Teils durch das hohe Straßenniveau)



Auch die zentrale Lage wird Sie von diesem Wohntraum überzeugen. Hier sind Sie bestens an das öffentliche Verkehrsnetz angebunden. Die U-Bahnlinie U3 sowiedie Straßenbahnlinien 10, 44, 46 und 60 sind in wenigen Minuten zu Fuß erreichbar. Zahlreiche Geschäfte des täglichen Bedarfs sowie eine vielfältige Gastronomie sind nur ein Katzensprung entfernt. 



Weitere Informationen zum Mietvertrag erhalten Sie gerne nach schriftlicher Anfrage. 



Hier sind die Highlights für Sie noch einmal zusammengefasst:



  • Komplettsanierung 2024
  • Perfekte Verkehrsanbindung
  • Intelligente Raumgestaltung
  • inklusive Küche
  • Attraktives PREIS-LEISTUNGS-VERHÄLTNIS
  • Büro- und Ordinationsnutzung möglich


Kaufpreis: EUR 299.000,-



Jährliche Mieteinnahmen: EUR 12.792,- netto



Betriebskosten: EUR 249,50 inkl. Rücklagen und Ust.



Provision: 3% des Kaufpreises zzgl. 20% Ust.



Vertragserrichtung: Frau Mag. Alexandra Serek, Fichtegasse 2A - 1010 Wien, 1,5% zzgl. 20% Ust.





Bei konkretem Interesse senden wir Ihnen sehr gerne weiterführende Dokumente zu, wie:



o Grundbuchauszug



o Wohnungseigentumsvertrag



o Nutzwertgutachten



o Eigentümerversammlungsprotokoll (Falls vorhanden) etc...





Unser Service für Sie: Wenn Sie sich für diese Immobilie entschieden haben, begleiten wir Sie gerne vom Kaufanbot weg inkl. Klärung von Sonderwünschen und der Vertragsunterzeichnung über die Wohnungsübergabe bis hin zu diversen Ummeldungen wie Strom und Gas. Entsprechende Formulare oder auch Meldezettel stellen wir Ihnen sehr gerne zur Verfügung.



Gerne unterstützen wir Sie auch bei der Finanzierung Ihres Traumobjekts und finden mit unseren langjährigen Partnern die besten Konditionen für Sie.



Vereinbaren Sie noch heute einen Termin, wir beraten Sie gerne!



Sie wollen Ihre Immobilie verkaufen? Dann sind Sie bei uns goldrichtig! Gerne beraten wir Sie kostenlos bei der Bewertung Ihrer Immobilie und präsentieren Ihnen die dafür entscheidenden Informationen und Unterlagen unverbindlich. 



www.schantl-ith.at


Wir weisen darauf hin, dass zwischen dem Vermittler und dem zu vermittelnden Dritten ein familiäres oder wirtschaftliches Naheverhältnis besteht.


Der Vermittler ist als Doppelmakler tätig.

Infrastruktur / Entfernungen

Gesundheit
Arzt <250m
Apotheke <500m
Klinik <250m
Krankenhaus <750m

Kinder & Schulen
Schule <250m
Kindergarten <250m
Universität <1.000m
Höhere Schule <1.000m

Nahversorgung
Supermarkt <250m
Bäckerei <500m
Einkaufszentrum <1.250m

Sonstige
Geldautomat <500m
Bank <500m
Post <750m
Polizei <750m

Verkehr
Bus <250m
U-Bahn <250m
Straßenbahn <250m
Bahnhof <500m
Autobahnanschluss <5.500m

Angaben Entfernung Luftlinie / Quelle: OpenStreetMap

Eckdaten Objektnr. 293931

Art: Wohnung
Land: Österreich
Baujahr: 1966
Zustand: Voll_saniert
Alter: Neubau
Kaufpreis: 299.000,00
Kaufpreis / m²: 4.466,02 €
Provision: 3% des Kaufpreises zzgl. 20% USt.
Betriebskosten: 98,02 €
MwSt Gesamt: 14,64 €
Wohnfläche: 66,95 m²
Nutzfläche: 66,95 m²
Gesamtfläche: 66,95 m²
Zimmer: 3
Bäder: 1
WC: 1
Heizwärmebedarf:  C  59,50 kWh/m²a
fGEE:  D  2,41
Immobilie merken Exposé

Ausstattung

Fliesen, Parkett, Gas, Etagenheizung, Wohnküche / offene Küche, Personenaufzug, Bad mit Fenster, Dusche, Kabel/Satelliten-TV, Wasch/Trockenraum


Immobilie anfragen


Ihre persönliche Beratung

Schantl ITH Immobilientreuhand GmbH

Magdalena Tiatco-Frank

Schantl ITH Immobilientreuhand GmbH

T +43 664 30 700 09

H +43 676 95 524 11