Exklusives Investment in Werfenweng! Studio-Apartment mit Terrasse & privater Sauna

Wohnung , 5020 Salzburg


Lage & Werfenweng Werfenweng ist eine renommierte Ganzjahresdestination im Salzburger Land und steht für alpinen Lebensstil, sanften Tourismus und hohe Aufenthaltsqualität. Umgeben von der beeindruckenden Bergwelt des Tennengebirges verbindet der Ort Natur, Ruhe und eine ausgezeichnete touristische Infrastruktur. Die Lage direkt an der Talstation der Rosnerköpflbahn bietet höchsten Komfort mit Ski-in/Ski-out im Winter sowie unmittelbaren Zugang zu Wander- und Freizeitmöglichkeiten im Sommer. Dank der guten Erreichbarkeit und der klaren touristischen Positionierung zählt Werfenweng zu den gefragten Ferienstandorten der Region.

Beschreibung der Immobilie

Exklusives Investment in Werfenweng! Studio-Apartment mit Terrasse & privater Sauna

Apartment Vorstellung: 





Direkt an der Talstation Rosnerköpflbahn – Werfenweng



Zum Verkauf steht ein hochwertig ausgestattetes Studio-Apartment mit einer Wohnfläche von ca. 33 m², eingebettet in ein exklusives Resort direkt an der Talstation der Rosnerköpflbahn in Werfenweng.



Das Apartment verfügt über eine eigene Terrasse sowie eine private Sauna, ein besonders gefragtes Ausstattungsmerkmal, das sowohl den persönlichen Komfort als auch die Attraktivität in der touristischen Vermietung nachhaltig steigert.



Die Einheit wird vollständig möbliert inklusive hochwertiger Küche übergeben. Das Einrichtungskonzept ist modern, zeitlos und optimal auf die ganzjährige touristische Nutzung abgestimmt.



Resort- & Hotelinfrastruktur



Als Eigentümer profitieren Sie vom vollständigen Zugang zur umfangreichen Hotel- und Resortinfrastruktur mit exklusivem Wohlfühl- und Freizeitangebot:




  • Exklusives hauseigenes Restaurant



  • Großzügiger Wellnessbereich mit Sauna, Dampfbad, Pool & Panoramaraum



  • Modern ausgestattetes Gym



  • Eigener Yoga- & Bewegungsraum



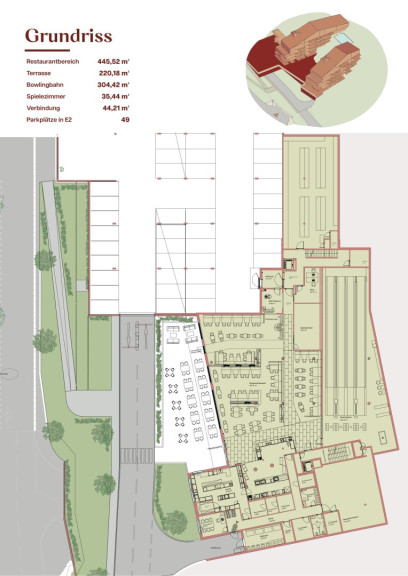
  • Indoor-Freizeitangebote wie Bowlingbahn und Tischspiele




Die professionelle Bewirtschaftung durch einen erfahrenen Hotelbetreiber gewährleistet eine reibungslose Vermietung, hohe Servicequalität sowie maximalen Komfort für Eigentümer.



Eine Eigennutzung von bis zu 30 Tagen pro Jahr ist bei vorheriger Bekanntgabe möglich und verbindet attraktive Investmentchancen mit persönlichem Freizeitwert.



Parkmöglichkeiten



Zusätzlich besteht die Möglichkeit zum käuflichen Erwerb eines Pkw-Stellplatzes. Insgesamt stehen 49 Pkw-Stellplätze für das gesamte Projekt zur Verfügung.



Highlights dieses Apartments




  • ca. 33 m² Wohnfläche



  • Eigene Terrasse



  • Private Sauna



  • Voll möbliert inkl. Küche



  • Direkt an der Rosnerköpflbahn



  • Zugang zu Wellness-, Sport- & Freizeitbereichen



  • Ganzjährige touristische Nutzung



  • Professioneller Hotelbetrieb



  • Optionaler Pkw-Stellplatz








Das Projekt auf einem Blick





In absoluter Bestlage direkt an der Talbahn Rosnerköpflbahn gelangt ein außergewöhnliches Apartmentprojekt mit 40 hochwertig ausgestatteten Ferienapartments zum Verkauf. Die Einheiten verfügen über Wohnflächen von ca. 32 m² bis 116 m² und sind optimal auf unterschiedliche Anleger- und Nutzungskonzepte abgestimmt.



Alle Apartments werden schlüsselfertig inklusive moderner Küche und exklusiver Möblierung übergeben. !!! Fertigstellung ist mit Q3 2026 geplant !!! Die Ausstattung erfüllt höchste Ansprüche an Komfort, Design und Langlebigkeit und ist konsequent auf die ganzjährige touristische Nutzung ausgelegt.



Die professionelle Bewirtschaftung erfolgt durch einen erfahrenen Hotelbetreiber, wodurch Eigentümer von einer sorgenfreien Vermietung, professionellem Gästeservice sowie laufender Betreuung profitieren. Eine Eigennutzung von bis zu 30 Tagen pro Jahr ist bei vorheriger Bekanntgabe möglich und vereint Investment und persönlichen Freizeitwert. 



Exklusive Infrastruktur & Resort-Charakter



Das Projekt überzeugt durch ein umfangreiches, hauseigenes Freizeit- und Wellnessangebot, das den Gästen ganzjährig ein außergewöhnliches Urlaubserlebnis bietet:




  • 🍽️ Exklusives, hauseigenes Restaurant



  • 🧖 Großzügiger Wellnessbereich mit




    • Sauna



    • Dampfbad



    • Pool



    • Panoramaraum




  • 🏋️ Modernes Fitnesstudio



  • 🧘 Eigener Yoga- & Bewegungsraum



  • 🎳 Indoor-Aktivitäten




    • Eigene Bowlingbahn



    • Tischspiele & Freizeitbereiche





Diese Infrastruktur schafft einen echten Resort-Charakter, steigert die Aufenthaltsqualität für Gäste und wirkt sich nachhaltig positiv auf Auslastung, Nächtigungszahlen und Ertragspotenzial aus.



Highlights auf einen Blick




  • 📍 Direkt an der Talstation Rosnerköpflbahn (Ski-in/Ski-out)



  • 🏔️ Ganzjahrestourismus in Top-Destination



  • 🏠 40 Apartments | ca. 32–116 m²



  • 🛋️ Voll möbliert inkl. Küche



  • 🏨 Professioneller Hotelbetrieb



  • 📅 Bis zu 30 Tage Eigennutzung/Jahr



  • 💎 Wellness, Restaurant, Sport & Indoor-Freizeit im Haus



  • 💼 Attraktives Investment mit Premium-Freizeitwert



Hinweis gemäß Energieausweisvorlagegesetz: Ein Energieausweis wurde vom Eigentümer bzw. Verkäufer, nach unserer Aufklärung über die generell geltende Vorlagepflicht, sowie Aufforderung zu seiner Erstellung noch nicht vorgelegt. Daher gilt zumindest eine dem Alter und der Art des Gebäudes entsprechende Gesamtenergieeffizienz als vereinbart. Wir übernehmen keinerlei Gewähr oder Haftung für die tatsächliche Energieeffizienz der angebotenen Immobilie.


Wir weisen darauf hin, dass zwischen dem Vermittler und dem zu vermittelnden Dritten ein familiäres oder wirtschaftliches Naheverhältnis besteht.


Der Vermittler ist als Doppelmakler tätig.

Infrastruktur / Entfernungen

Gesundheit
Arzt <500m
Apotheke <500m
Klinik <500m
Krankenhaus <500m

Kinder & Schulen
Schule <500m
Kindergarten <1.000m
Universität <500m
Höhere Schule <500m

Nahversorgung
Supermarkt <500m
Bäckerei <500m
Einkaufszentrum <1.000m

Sonstige
Bank <500m
Geldautomat <500m
Post <500m
Polizei <1.000m

Verkehr
Bus <500m
Bahnhof <500m
Autobahnanschluss <3.000m
Flughafen <3.000m

Angaben Entfernung Luftlinie / Quelle: OpenStreetMap

Eckdaten Objektnr. 8359/289

Art: Wohnung
Land: Österreich
Baujahr: 2026
Zustand: Erstbezug
Alter: Neubau
Kaufpreis: 230.000,00
Kaufpreis / m²: 6.969,70 €
Provision: 3% des Kaufpreises zzgl. 20% USt.
Wohnfläche: 33,00 m²
Terrassen: 1
Immobilie merken Exposé

Ausstattung

Parkett, Fliesen, Fußbodenheizung, Wohnküche / offene Küche, Einbauküche, Personenaufzug, Dusche, Sauna, Sporteinrichtungen, Swimmingpool


Immobilie anfragen


Ihre persönliche Beratung

HAPPYIMMO GmbH

Hannes Pletz

HAPPYIMMO GmbH

H +43 676 911 0 911