Exklusive, sonnige Garten-Wohnung! 2 Autoabstellplätze! Neubau!

Wohnung , 3452 Hankenfeld


Beschreibung der Immobilie

Exklusive, sonnige Garten-Wohnung! 2 Autoabstellplätze! Neubau!

Sonnenlage - diese exklusive Neubauwohnung mit Terrasse und Garten lässt keine Wünsche offen!



Mitten im Tullnerfeld, auf halber Strecke zwischen St. Pölten und Tulln, liegt diese sonnige und barrierefreie, ca. 72m² große Wohnung in einem Wohnhaus, das nach umweltbewußten Richtlinien errichtet wurde.



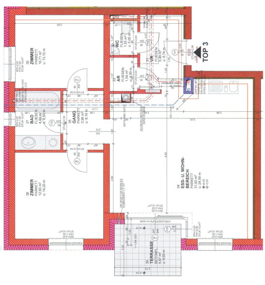
Über einen geräumigen Vorraum aus sind das großzügige Wohnzimmer mit offen gehaltener, komplett eingerichteter Küche, das Gäste-WC mit Handwaschbecken und ein großzügiger Abstellraum zu erreichen. Im Wohnraum ist ebenfalls ein Kaminanschluß vorhanden.



Vom Wohnzimmer aus ist die ca. 8m² große Sonnenterrasse mit dem ca. 85m² großen Garten zu betreten, wie von einem zweiten kleinen Vorraum aus die beiden ca. 14m² gleichgroßen Zimmer und auch das Bad mit Wanne, Waschtisch und Waschmaschinenanschluß.



Die Warmwasseraufbereitung und Beheizung erfolgt über eine Wärmepumpe, die gesamte Wohnung verfügt über eine Fußbodenheizung. Die monatlichen Heizkosten betragen ca. EUR 70,00 EUR.



Die Ausstattung umfasst hochwertige Parkettböden, schöne Fliesen im Bad, WC und Abstellraum, Maß-Küche mit allem Drum und Dran, Sat- und Telefonanschluss, Gegensprechanlage und 2 KFZ-Abstellplätze vor dem Haus.



Dank des neuen Bahnhofs Tullnerfeld, der nur ca. 8 Autominuten entfernt ist, erreichen Sie von hier aus in nur 20 Minuten den Wiener Westbahnhof, in 13 Minuten St. Pölten. In ca. 200 Meter Entfernung befindet sich die nächste Busstation (547 und 543). Einkaufsmöglichkeiten, eine Volksschule und einen Kindergarten bietet das nahegelegene Sieghartskirchen.



Instandhaltungsfonds: ca. 85.000,00 EUR/per 31.12.2024



Instandhaltungsrücklage: 83,77 EUR

Betriebskosten (netto): 157,50 EUR

Heizkosten (netto): 58,24 EUR

Betriebskosten Parkplätze (netto): 11,52 EUR

Instandhaltungsrücklage: 6,13 EUR

Umsatzsteuer (gesamt): 29,70 EUR

Betriebskosten (gesamt): 346,86 EUR



Kaufpreis: 225.000,00 EUR



Provision: 8.100,00 EUR inkl. 20% USt.

Grunderwerbssteuer: 3,5%

Kosten der Vertragserrichtung und grundbücherlichen Durchführung nach Vereinbarung im Rahmen der Tarifordnung des jeweiligen Urkundenerrichters sowie Barauslagen für Beglaubigung und Stempelgebühren.

Eckdaten Objektnr. 19613

Art: Wohnung
Land: Österreich
Baujahr: 2014
Zustand: Neuwertig
Alter: Neubau
Kaufpreis: 225.000,00
Provision: 8.100,00 € inkl. 20% USt.
Betriebskosten: 157,50 €
Heizkosten: 58,24 €
MwSt Gesamt: 29,70 €
Wohnfläche: 72,00 m²
Nutzfläche: 80,00 m²
Zimmer: 3
Bäder: 1
WC: 1
Terrassen: 1
Garten: 85,00 m²
Keller: 3,00 m²
Heizwärmebedarf:  A  24,46 kWh/m²a
fGEE:  A++  0,49
Immobilie merken Exposé

Ausstattung

Parkett, Fliesen, Zentralheizung, Wohnküche / offene Küche, Südbalkon, Bad mit Fenster, Badewanne, Kabel/Satelliten-TV, Parkplatz


Immobilie anfragen


Ihre persönliche Beratung

Bieber Immobilien GmbH

Elisabeth Bieber

Bieber Immobilien GmbH

H +43 699 15 11 1959

F +43 720 88 13 76