Nahe zu Kitzbühel - naturverbunden und modern wohnen - herrlicher Bergblick

Wohnung - Terrassenwohnung, 6364 Brixen im Thale


Brixen im Thale Brixen im Thale ist eine Gemeinde in Tirol in Österreich mit etwa 2700 EinwohnerInnen. Sie liegt etwa elf Kilometer (Luftlinie) westlich von der Bezirkshauptstadt Kitzbühel und ist der Hauptort des Brixentals. Die Gemeinde liegt im Gerichtsbezirk Kitzbühel. Die moderne Eigentumswohnung ist zentral im Ort in einem stilvollen Mehrfamilienhaus gelegen. Von der großen Terrasse aus blicken Sie auf die harmonische Berglandschaft. Rundherum werden Sie mit viel Infrastruktur und zahlreichen Freizeitmöglichkeiten und mit der besonderen Gastfreundlichkeit der Brixener verwöhnt.

Beschreibung der Immobilie

Nahe zu Kitzbühel - naturverbunden und modern wohnen - herrlicher Bergblick

MODERNE Wohnung im Mehrfamilienhaus + BERGBLICK + große TERRASSE + KITZBÜHEL NÄHE



Bequem fahren Sie in die moderne Tiefgarage und gelangen direkt mit dem geräumigen Lift in die Wohnung im ersten Stock. Bei dieser außergewöhnlichen Liegenschaft erwarten Sie qualitativ hochwertige Baumaterialien und eine ausgezeichnet durchdachte Architektur mit dem Highlight der großartigen Lage mit Blick auf die herrliche Berglandschaft hier in Brixen im Thale.



Die Nähe zur legendären Stadt Kitzbühel ist ein weiterer Pluspunkt dieser Eigentumswohnung mit den hohen Räumen und der großzügigen Terrasse mit dem genialen Ausblick. Hier kommen Sie sofort zur Ruhe und genießen die Umgebung mit Wandern, Skifahren, Snowboarden, Schwimmen, Tennis, Radfahren, Nordic-Walking und vieles mehr.



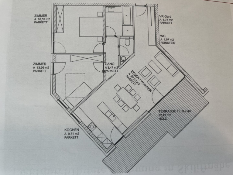
Schon im Vorzimmer finden Sie vom heimisch ansässigen Tischlerbetrieb gefertigte Inneneinrichtung vor. Die hohen Räume und der wertige Eichenholzparkettboden erzeugen sofort eine gemütliche Atmosphäre. Im Wohnzimmer bringen viele Fenster und die große Terrassentüre mit der Verglasung das herrliche Panorama mit viel Licht in die Wohnung hinein. Die großflächige Terrasse ermuntert dazu Zeit draußen zu verbringen, um die gute Luft und die Umgebung mit diesem Bergblick zu genießen. Aufatmen und chillen!



Von der Küche aus, die über sämtliche Elektrogeräte verfügt können Sie ebenfalls die schöne Terrasse betreten. Die beiden Schlafzimmer sind wie das Vorzimmer mit tischlergefertigten Möbel eingerichtet und verfügen ebenso über große Fenstertüren mit außenliegenden elektrisch bedienbaren Außenjalousien.



Das neuwertige Badezimmer ist mit einer Badewanne und einer Walk-in Dusche sowie einem Waschbecken mit modernen Fliesen ausgestattet. Die Toilette ist getrennt begehbar und mit einem Handwaschbecken eingerichtet. Geheizt wird über eine Luftwärmepumpe mit der Fußbodenheizung.



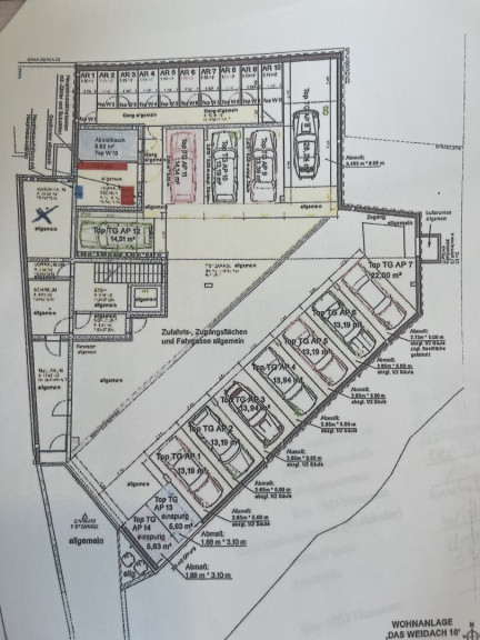
Vor dem Mehrfamilienhaus haben Sie Abstellplätze auch für Gäste zur Verfügung. Der Garagenplatz für Ihr Fahrzeug ist für einen Kaufpreis von EUR 25.000 zu erwerben.



Im Kellerraum finden Ihre Ski plus Ausrüstung und Ihre Utensilien gut Platz. In dem Mehrfamilienhaus gibt es zudem einen Fahrradraum und einen Wasch- und Trockenraum.





LAGE



Brixen im Thale ist eine Tiroler Gemeinde mit einer Fläche von ca. 31,40 km² und ungefähr 2.700 EinwohnerInnen. Auf 794 Meter Seehöhe liegt Brixen auf dem höchsten Punkt des Brixentals, rund 11 km (Luftlinie) westlich von Kitzbühel, zu dessen politischem Bezirk es gehört.



Brixen ist von einer Vielzahl von Berghängen umgeben, die nördlich als Sonnberg und südlich als Schattseitn bezeichnet werden. Das Gemeindegebiet umfasst die 5 Ortschaften: Brixen im Thale, Feuring, Hof, Lauterbach und Sonnberg, die bekanntesten Nachbargemeinden sind Ellmau, Kirchberg in Tirol und Söll.



Archäologische Funde belegen, dass bereits um 3000 v. Chr. die Kelten das Brixental besiedelten, später folgten dann auch die Römer. Die genaue Herkunft des Ortsnamens ist nicht bekannt, vermutlich leitet er sich aber vom keltischen Wort brigsina ab, was soviel wie kleine (befestigte) Anhöhe oder Berg bedeutet.



Mit Wörgl und Kitzbühel ist Brixen durch die B170, die Brixentalstraße, von Kufstein oder Innsbruck kommend erreicht man den Ort über die Autobahn A12. Mit der Bahn kommen Sie bequem nach Brixen im Thale beim modernen Bahnhof an und sind in etwa 6 Minuten fußläufig bei der Liegenschaft.



Destinationen wie München, Innsbruck oder Südtirol über den Brenner erreichen Sie mit dem PKW rasch auf der Autobahn.



Als bekannter und beliebter Tourismusort verfügt Brixen über ein breit gefächertes Freizeitangebot: das anspruchsvolle Skigebiet rund um die Hohe Salve besticht im Winter, sowie das Schwimmbad und das Naturbad direkt in Brixen im Thale und auch der nahgelegene Schwarzsee etwa im Sommer. Wandern Sie in Brixen nach Herzenslust zu den zahlreichen Almhütten und großartigen Naturseen mit eindrucksvollen Ausblicken.



Die Gastfreundschaft in Brixen im Thale ist außergewöhnlich und lädt ein zum Wohnen und Leben. Machen Sie es sich auch gemütlich in den gastronomischen Betrieben in der Höhe etwa auf der Nieding oder im Tal beim Fischerstadl mit dem Angelparadies Erlensee.





Rechtliche Info



Als Immobilienmakler sind wir einerseits Ihnen als Interessent, als auch dem Abgeber als Verkäufer bzw. Vermieter verpflichtet. Wir sind einerseits gegenüber dem Abgeber, als auch gegenüber Behörden verpflichtet bei Ungereimtheiten Auskunft geben zu können, an welche Personen Immobilien angeboten wurden.



Auch die europäischen Verbraucherrechte wurden vereinheitlicht, somit wird seit 13. Juni 2014 ebenso mit Ihnen als Interessent ein schriftlicher Maklervertrag abgeschlossen (früher geschah dies mündlich & es entfällt das Ausfüllen von "Besichtigungsscheinen"). Der Verband der Österreichischen Immobilienwirtschaft hat hierzu ebenso eine detaillierte Informationsseite





Wir benötigen daher um Ihnen detaillierte Unterlagen zukommen zu lassen Ihren Namen und Ihre Wohnadresse (Straße, Hausnummer - wenn vorhanden: Stiege & Tür - PLZ und Ort).



Der Makler steht mit dem zu vermittelnden Dritten in einem familiären oder wirtschaftlichen Naheverhältnis.





Haben Sie eine Immobilie zu verkaufen oder zu vermieten?



Wir freuen uns, diese unseren vorgemerkten Kundinnen und Kunden präsentieren zu dürfen.



Bitte kontaktieren Sie uns gerne unter: +43 664 137 97 00 oder office@haberkorn-immobilien.at für eine kostenfreie und umfassende Erstberatung durch unsere zertifizierten ImmobilienberaterInnen.



Besuchen Sie uns gerne auf unserer Website: Haberkorn Immobilien GmbH


Wir weisen darauf hin, dass zwischen dem Vermittler und dem zu vermittelnden Dritten ein familiäres oder wirtschaftliches Naheverhältnis besteht.


Der Vermittler ist als Doppelmakler tätig.

Infrastruktur / Entfernungen

Gesundheit
Arzt <1.000m
Apotheke <1.000m
Klinik <10.000m

Kinder & Schulen
Schule <1.000m
Kindergarten <1.000m
Höhere Schule <8.000m

Nahversorgung
Supermarkt <1.000m
Bäckerei <500m

Sonstige
Bank <1.000m
Geldautomat <1.000m
Post <500m
Polizei <4.000m

Verkehr
Bus <500m
Bahnhof <500m

Angaben Entfernung Luftlinie / Quelle: OpenStreetMap

Eckdaten Objektnr. 5324/3041

Art: Wohnung - Terrassenwohnung
Land: Österreich
Baujahr: 2013
Zustand: Neuwertig
Möbliert: Voll
Alter: Neubau
Kaufpreis: 795.000,00
Provision: 3% des Kaufpreises zzgl. 20% USt.
Betriebskosten: 385,00 €
Wohnfläche: 84,22 m²
Zimmer: 3
Bäder: 1
WC: 1
Terrassen: 1
Stellplätze: 1
Keller: 3,50 m²
Heizwärmebedarf:  B  26,70 kWh/m²a
Immobilie merken Exposé

Ausstattung

Fliesen, Parkett, Fußbodenheizung, Wohnküche / offene Küche, Personenaufzug, Angeschl. Hotelrestaurant, Dusche, Tiefgarage, Wasch/Trockenraum


Immobilie anfragen


Ihre persönliche Beratung

Haberkorn Immobilien

Mag. Natascha Haberkorn

Haberkorn Immobilien GmbH

T +43 664 137 97 00