Moderner Bungalow für mediterranes Lebensgefühl in Tribuswinkel: 4 Zimmer, Terrasse, Garten & Pool

Haus - Bungalow, 2512 Tribuswinkel , Feldgasse 22


Ihre private Bade-Oase: Eingebettet, fast wie bei einer Waldlichtung, bildet der Pool mit einer Größe von 7,37 x 3,60 das Herzstück des Gartens und bietet herrliche Abkühlung an heißen Sommertagen-hier genießen Sie den Sommer in vollen Zügen.

Beschreibung der Immobilie

Moderner Bungalow für mediterranes Lebensgefühl in Tribuswinkel: 4 Zimmer, Terrasse, Garten & Pool

Modernes Bungalow-Glück in Tribuswinkel: Ihr privates Resort mit Pool & Hobby-Paradies



Willkommen in einem Zuhause, das Freiheit auf einer Ebene neu definiert. Dieser beeindruckende Ziegelmassiv-Bungalow in der charmanten Gemeinde Tribuswinkel bietet auf ca. 130 m² Wohnfläche den perfekten Mix aus modernem Komfort, Ruhe und einer Prise Urlaubsfeeling – jeden einzelnen Tag.



Highlights, die begeistern:




  • Ihre private Bade-Oase:  Eingebettet, fast wie bei einer Waldlichtung, bildet der  Swimmingpool mit einer Größe von 7,37 x 3,60 das Herzstück des Gartens und bietet herrliche Abkühlung an heißen Sommertagen-hier genießen Sie den Sommer in vollen Zügen.



  • Werkstatt & Stauraum: Das separate Nebengebäude ist ein echter Allrounder. Es beherbergt eine geräumige Werkstatt für Bastler und Handwerker sowie einen kleinen Keller, der sich ideal als kühler Lagerplatz für Wein oder Vorräte eignet.



  • Outdoor-Living: Die sonnige Terrasse bieten den perfekten Rahmen für gesellige Grillabende oder einen Sundowner mit Blick in den Garten.




Die inneren Werte:



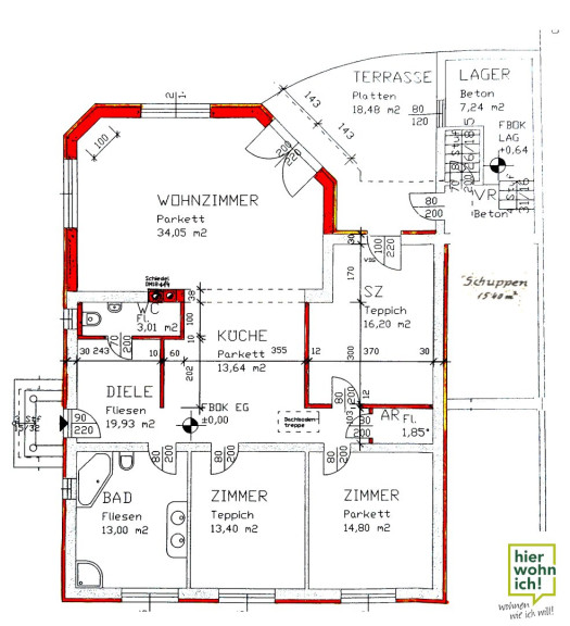
Der durchdachte Grundriss verteilt sich auf 4 helle Zimmer, die Flexibilität für jede Lebenslage bieten:




  • Großzügiger Wohn-Essbereich mit viel Lichteinfall (zusätzliches Dachfenster).



  • Drei individuell nutzbare Zimmer (Schlafen, Kinder, Homeoffice).



  • Optimale Isolierung durch hochwertige Mehrfachverglasung und massiven Ziegelbau.



  • Angenehmes Klima dank moderner Gas-Zentralheizung und außenliegendem Sonnenschutz.






Lage & Freizeit: Wo Lebensqualität zu Hause ist



Tribuswinkel verbindet dörfliche Idylle mit perfekter Infrastruktur.




  • Sport & Natur direkt vor der Tür: Der berühmte Thermenradweg befindet sich in unmittelbarer Nähe. Egal ob für ausgedehnte Radtouren nach Wien oder Baden, morgendliche Joggingrunden oder entspannte Spaziergänge – die Natur startet hier buchstäblich vor Ihrer Haustür.



  • Top-Anbindung: Mit Bus, Lokalbahn (Badner Bahn) und dem nahen Bahnhof sind Sie bestens vernetzt. Die Autobahnauffahrt ist in wenigen Minuten erreichbar.



  • Alles für den Alltag: Ärzte, Apotheken, Schulen, Kindergärten und vielfältige Einkaufsmöglichkeiten sind bequem erreichbar.






Die Fakten auf einen Blick:




  • Wohnfläche: 129,88 m²



  • Zimmer: 4



  • Kaufpreis: 595.000,-



  • Besonderheiten: Pool, Nebengebäude (Werkstatt/Keller), West-Ausrichtung, Ziegelmassivbau.




Fazit: Dieses Haus ist mehr als nur eine Immobilie – es ist ein Rückzugsort für Menschen, die das Besondere suchen. Ob Hobby-Handwerker, Pool-Liebhaber oder Natur-Enthusiasten: Hier werden Ihre Wohnträume wahr.



Lassen Sie sich diese Gelegenheit nicht entgehen! Vereinbaren Sie noch heute Ihren persönlichen Besichtigungstermin und überzeugen Sie sich vor Ort von der einzigartigen Atmosphäre dieses Bungalows.



Haben Sie Fragen oder Interesse an diesem Haus? Dann kontaktieren Sie uns, wir freuen uns auf Ihre Anfrage:



hierwohnich Immobilien GmbH



Ansprechpartner:

Wolfram Wassermann



Telefon: 0699 1965 3726

E-Mail: wassermann@hierwohnich.at


Der Vermittler ist als Doppelmakler tätig.

Infrastruktur / Entfernungen

Gesundheit
Arzt <100m
Apotheke <625m
Klinik <2.000m
Krankenhaus <800m

Kinder & Schulen
Schule <350m
Kindergarten <475m
Höhere Schule <7.750m

Nahversorgung
Supermarkt <450m
Bäckerei <1.075m
Einkaufszentrum <3.150m

Sonstige
Bank <550m
Geldautomat <550m
Polizei <1.850m
Post <1.000m

Verkehr
Bus <300m
Bahnhof <475m
Autobahnanschluss <2.100m
Straßenbahn <450m
Flughafen <4.325m

Angaben Entfernung Luftlinie / Quelle: OpenStreetMap

Eckdaten Objektnr. 18722

Art: Haus - Bungalow
Land: Österreich
Baujahr: 2006
Zustand: Gepflegt
Alter: Neubau
Kaufpreis: 595.000,00
Provision: 3% des Kaufpreises zzgl. 20% USt.
Wohnfläche: 129,88 m²
Grundstücksfl.: 538,00 m²
Zimmer: 4
Bäder: 1
WC: 1
Terrassen: 1
Keller: 6,47 m²
Heizwärmebedarf: 91,00 kWh/m²a
fGEE: 1,45
Immobilie merken Exposé

Ausstattung

Gas, Zentralheizung, Westbalkon, Swimmingpool


Immobilie anfragen


Ihre persönliche Beratung

hierwohnich Immobilien GmbH

Wolfram Wassermann

hierwohnich Immobilien GmbH

T +43 699 1965 3726