Sehr sonnige neue Top-Wohnung nahe der Alten Donau

Wohnung , 1220 Wien


Diese absolut neue Top Wohnung im 22. Bezirk von Wien bietet Ihnen eine hervorragende Lage in unmittelbarer Nähe zur Alten Donau. In der Umgebung finden Sie alles, was Sie für den Alltag benötigen: Arzt, Apotheke, Schulen, Kindergarten, Supermarkt, Bäckerei sowie ein Einkaufszentrum. Öffentliche Verkehrsanbindungen wie Bus, U-Bahn und Straßenbahn sind ebenfalls schnell erreichbar.

Beschreibung der Immobilie

Sehr sonnige neue Top-Wohnung nahe der Alten Donau

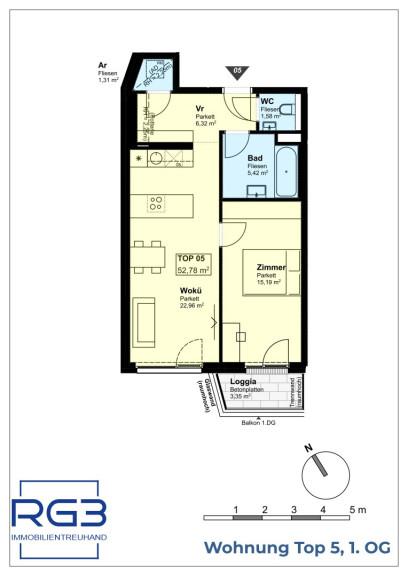
Kompakt, modern und in unmittelbarer Nähe zur Alten Donau – diese Neubauwohnung im 1. Obergeschoss bietet auf ca. 52,78 m² alles, was zeitgemäßes Wohnen heute ausmacht.



Schon beim Eintreten zeigt sich die klare Linie dieser Wohnung: ein strukturierter Vorraum mit Platz für Garderobe, ein hochwertig ausgestattetes Badezimmer sowie eine separate Toilette – sauber geplant und funktional gelöst.



Der Wohnbereich ist offen gestaltet und verbindet Küche und Wohnzimmer zu einem hellen, einladenden Mittelpunkt der Wohnung. Große Fensterflächen sorgen für angenehmes Tageslicht und unterstreichen das großzügige Raumgefühl. Die Fläche lässt sich flexibel einrichten und passt sich unterschiedlichen Wohnkonzepten mühelos an.



Das Schlafzimmer bietet direkten Zugang zur Loggia – ein ruhiger Platz mit Südwest-Ausrichtung und schönem Blick Richtung Alte Donau. In nur rund 170 Metern erreichen Sie eines der beliebtesten Naherholungsgebiete Wiens – ein klarer Standortvorteil, der im Alltag spürbar wird.



Die Wohnung wird schlüsselfertig als Erstbezug übergeben und ist sofort verfügbar. Beheizt wird sie mittels Fußbodenheizung über eine moderne Luftwärmepumpe – effizient, komfortabel und zukunftsorientiert.



Ein Abstellraum in der Wohnung sowie ein Kellerabteil (bequem mit dem Lift erreichbar) sorgen für zusätzlichen Stauraum. Ein Garagenplatz kann bei Bedarf erworben werden.



Die Wohnanlage wurde auf einem Baurechtsgrund errichtet. Der entsprechende Bauzins ist in der Kostenaufstellung transparent unter „Sonstiges“ ausgewiesen.



Eine Wohnung für alle, die eine klare, moderne Linie schätzen und gleichzeitig die Nähe zur Natur nicht missen möchten.



Gerne übermitteln wir Ihnen auf Anfrage die detaillierte Baubeschreibung mit allen relevanten Informationen.


Wir weisen darauf hin, dass zwischen dem Vermittler und dem zu vermittelnden Dritten ein familiäres oder wirtschaftliches Naheverhältnis besteht.


Der Vermittler ist als Doppelmakler tätig.

Infrastruktur / Entfernungen

Gesundheit
Arzt <500m
Apotheke <500m
Klinik <2.500m
Krankenhaus <3.500m

Kinder & Schulen
Schule <500m
Kindergarten <1.000m
Universität <2.000m
Höhere Schule <1.500m

Nahversorgung
Supermarkt <500m
Bäckerei <500m
Einkaufszentrum <500m

Sonstige
Geldautomat <500m
Bank <500m
Post <500m
Polizei <1.000m

Verkehr
Bus <500m
U-Bahn <500m
Straßenbahn <500m
Bahnhof <500m
Autobahnanschluss <2.000m

Angaben Entfernung Luftlinie / Quelle: OpenStreetMap

Eckdaten Objektnr. 1747

Art: Wohnung
Land: Österreich
Baujahr: 2025
Zustand: Erstbezug
Alter: Neubau
Kaufpreis: 310.000,00
Kaufpreis / m²: 5.873,44 €
Provision: 11.160,00 € inkl. 20% USt.
Betriebskosten: 97,45 €
MwSt Gesamt: 11,51 €
Wohnfläche: 52,78 m²
Zimmer: 2
Bäder: 1
WC: 1
Heizwärmebedarf:  B  27,30 kWh/m²a
fGEE:  A+  0,68
Immobilie merken Exposé

Ausstattung

Fliesen, Parkettboden, Fußbodenheizung, Zentralheizung, Personenaufzug, Badewanne


Immobilie anfragen


Ihre persönliche Beratung

RG3 Immobilientreuhand GmbH

Ing. Richard Gstettner

AOM-IMMOBILIEN - Consulting & Projektierung

H 0676 3121180