Zauberhaftes Einfamilienhaus mit herrlicher Aussicht
Haus
,
5303
Thalgauberg
Beschreibung der Immobilie
Zauberhaftes Einfamilienhaus mit herrlicher Aussicht
Dieses zauberhafte Einfamilienhaus bietet Ihnen nicht nur eine großzügige Wohnfläche von 134,4 m², sondern auch eine harmonische Verbindung von Wohnkomfort und naturnaher Lebensqualität. Das Haus verfügt mit dem Nachbarhaus über ein gemeinsames Entrée, von wo die beiden Häuser begehbar sind.
Das Haus beeindruckt mit insgesamt fünf lichtdurchfluteten Zimmern, die Ihnen und Ihrer Familie viel Platz zur persönlichen Entfaltung bieten. Verwöhnen Sie sich mit dem atemberaubenden Bergblick und dem weiten Fernblick, den Sie von Ihrem Balkon, Ihrer Terrasse und sogar aus dem Garten genießen können. Stellen Sie sich vor, wie Sie an warmen Sommertagen im Garten entspannen oder auf der Terrasse den Sonnenuntergang beobachten – hier wird jeder Tag zu einem besonderen Erlebnis.
Die Einbauküche lädt dazu ein, kulinarische Meisterwerke zu kreieren, während das Badezimmer mit Fenster, Badewanne und Dusche Ihnen einen Ort der Entspannung bietet.
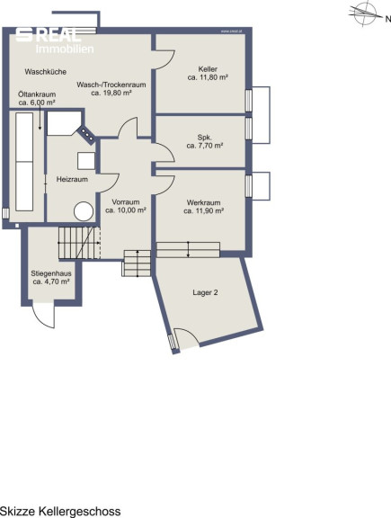
Genießen Sie die Flexibilität, die Ihnen eine Zentralheizung und die umweltfreundliche Pelletsheizung bieten, ideal für ein angenehmes Raumklima zu jeder Jahreszeit. Weiters ist im Wohnzimmer ein Kachelofen untergebracht, welcher für die Übergangszeit für angenehme Wärme sorgt. Die Heizungszentrale ist im Kellergeschoss untergebracht und von dort wird auch das Nachbarhaus mit Wärme versorgt, somit werden die Kosten für die Erhaltung geteilt.
Auf der Gemeinschaftsparzelle befinden sich zwei Garagen (eine dem Haus zugehörig), die gemeinsame Zufahrt, die Gärten und der Hauszugang.
Die Haltestelle der Linie 148 befindet sich direkt gegenüber. Mit dem Bus gelangen Sie ins Zentrum der Gemeinde Thalgau. Thalgauberg selbst bietet ein ruhiges, familiäres Ambiente und ist gleichzeitig nur einen Katzensprung von der pulsierenden Stadt Salzburg, Fuschlsee und Mondsee entfernt. Hier finden Sie alles, was Sie für den täglichen Bedarf benötigen, sowie eine Vielzahl an Freizeitmöglichkeiten in der Natur.
Infrastruktur / Entfernungen
Gesundheit
Arzt <2.000m
Apotheke <2.500m
Klinik <2.000m
Kinder & Schulen
Schule <2.000m
Kindergarten <2.000m
Universität <6.500m
Nahversorgung
Supermarkt <2.500m
Bäckerei <2.000m
Sonstige
Bank <2.000m
Geldautomat <2.000m
Post <2.500m
Polizei <2.000m
Verkehr
Bus <500m
Autobahnanschluss <3.000m
Angaben Entfernung Luftlinie / Quelle: OpenStreetMap
Eckdaten Objektnr. 960/74441
| Art: | Haus |
| Land: | Österreich |
| Baujahr: | 1993 |
| Kaufpreis: | 687.000,00 € |
| Provision: | 3% des Kaufpreises zzgl. 20% USt. |
| Wohnfläche: | 134,40 m² |
| Grundstücksfl.: | 500,00 m² |
| Zimmer: | 5 |
| Bäder: | 1 |
| WC: | 2 |
| Balkone: | 1 |
| Terrassen: | 1 |
| Keller: | 74,00 m² |
| Heizwärmebedarf: | C 100,00 kWh/m²a |
| fGEE: | C 1,19 |
Ausstattung
Dielenboden, Zentralheizung, Einbauküche, Südbalkon, Westbalkon, Bad mit Fenster, Badewanne, Dusche, Garage, Wasch/Trockenraum
Ihre persönliche Beratung
Dieser Makler ist ein offizielles Mitglied des IR – ir.at Mehr Erfahren

