Einfamilienhaus mit extra Atelier

Haus - Einfamilienhaus, 2345 Brunn am Gebirge


Beschreibung der Immobilie

Einfamilienhaus mit extra Atelier

Einfamilienhaus mit zwei Wohneinheiten & zusätzliches Atelier / Büro



Zum Verkauf steht ein Ziegelmassiv- Einfamilienhaus, das aktuell in zwei Wohneinheiten unterteilt ist. Mit geringem Aufwand kann das Gebäude jedoch problemlos wieder zu einem großzügigen Einfamilienhaus zusammengeführt werden – perfekt für Familien, Mehrgenetationenwohnen oder Wohnen & Arbeiten unter einem Dach.

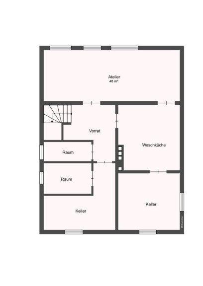
Auf dem Grundstück mit rund 594 m² befindet sich ein Wohnhaus mit ca. 125 m2 Wohnfläche, voll unterkellert, zusätzlich ein Atelier bzw. Geschäftsfläche mit ca. 48 m², diese Geschäftsfläche hat einen extra Zugang vom Garten und ist somit komplett getrennt vom Wohnhaus, man kann, aber wenn man möchte, direkt ins Wohnhaus gehen. Es ist beheizt, verfügt über ein eigenes WC und hat große Fenster in den Garten und ist somit sehr hell. Die Nutzungsmöglichkeiten sind vielfältig. Hobbyraum, Büro, kleines Gewerbe oder Home-Office, Lager, etc.

Das Haus bietet die ideale Grundlage und mit etwas Liebe und handwerklichem Geschick kann es wieder im neuen Glanz erstrahlen. Derzeit wird es mit einer Gasheizung und einem Feststoffbrenngerät (Stückholz) mit Pufferspeicher beheizt.



Eckdaten zum Haus:

Ziegelmassivhaus

ca. 10 cm Dämmung der Fassade

Kunststofffenster 2 – Fach verglast

der Kamin der in Verwendung ist wurde 2021 neu geschliffen

Dachboden wurde gedämmt

Stückholzkessel mit Pufferspeicher und Gastherme (Buderus)

Größtenteils Laminatböden

Beide Eingangstüren wurden erneuert

Keller mit Fenster



Grundstück:

Es können 180 m2 verbaut werden

Bauklasse I, II,

Bauland Wohnen, 2 Wohneinheiten, für jede Wohneinheit müssen 2 Stellplätze errichtet werden.

Brunnen für die Bewässerung vorhanden

Der großzügige Garten ist Ost- Süd seitig ausgerichtet



Lage & Infrastruktur:

Die Lage überzeugt durch eine hervorragende Verkehrsanbindung – sowohl öffentlich als auch mit dem Auto:

• Regionalbuslinien direkt vor der Haustüre 207, 268, 269 und 270

• Mit dem Auto ist man in wenigen Minuten auf der A2, A21 sowie auf der Südosttangente Richtung Wien.

• Das SCS-Shopping-Center ist in nur ca. 5 Minuten mit dem Auto entfernt und bietet ein umfassendes Einkaufs- und Freizeitangebot.

• Der beliebte Freizeitpark Brunn am Gebirge befindet sich etwa 15 Gehminuten vom Haus entfernt.

Eine ideale Kombination aus guter Erreichbarkeit, Nähe zu Naherholungsflächen sowie umfangreicher Infrastruktur.



Bitte berücksichtigen Sie, dass ich nur Anfragen mit vollständigen Angaben von Name, Adresse, Telefonnummer und E- Mailadresse beantworten kann.

 


Der Vermittler ist als Doppelmakler tätig.

Infrastruktur / Entfernungen

Gesundheit
Arzt <1.500m
Apotheke <1.000m
Klinik <3.500m
Krankenhaus <3.000m

Kinder & Schulen
Schule <1.000m
Kindergarten <1.000m
Universität <8.000m
Höhere Schule <5.000m

Nahversorgung
Supermarkt <500m
Bäckerei <1.500m
Einkaufszentrum <1.000m

Sonstige
Geldautomat <1.000m
Bank <1.000m
Post <2.000m
Polizei <1.000m

Verkehr
Bus <500m
U-Bahn <2.000m
Straßenbahn <4.000m
Bahnhof <1.000m
Autobahnanschluss <1.000m

Angaben Entfernung Luftlinie / Quelle: OpenStreetMap

Eckdaten Objektnr. 2147/19

Art: Haus - Einfamilienhaus
Land: Österreich
Baujahr: 1957
Zustand: Sanierungsbeduerftig
Kaufpreis: 550.000,00
Provision: 3% des Kaufpreises zzgl. 20% USt.
Wohnfläche: 120,00 m²
Nutzfläche: 235,00 m²
Grundstücksfl.: 594,00 m²
Zimmer: 6
Bäder: 1
WC: 3
Keller: 62,00 m²
Heizwärmebedarf:  F  216,40 kWh/m²a
fGEE:  G  3,95
Immobilie merken Exposé

Ausstattung

Kamin, Zentralheizung, Dusche


Immobilie anfragen


Ihre persönliche Beratung

Martina Willmann Immobilien

Martina Willmann

Martina Willmann Immobilien

H +43 676 7277757