Moderne Innenstadt Wohnung in St. Pölten I Aufzug I Dachterrasse

Wohnung , 3100 St. Pölten


Die Wohnung befindet sich sehr zentral in der Innenstadt von St. Pölten und liegt in unmittelbarer Nähe zum Rathausplatz, sowie zum Hauptbahnhof. In der Umgebung gibt es zahlreiche Einrichtungen des täglichen Bedarfs, wie zum Beispiel Ärzte, Apotheken, ein Krankenhaus, Schulen, Kindergärten, eine Universität und eine Höhere Schule. Auch Einkaufsmöglichkeiten und Gastronomie Betriebe aller Art sind in wenigen Minuten fußläufig erreichbar, darunter Lebensmittelgeschäfte, Bekleidungsgeschäfte, Bäckereien, Kaffeehäuser, Restaurants uvm.

Beschreibung der Immobilie

Moderne Innenstadt Wohnung in St. Pölten I Aufzug I Dachterrasse

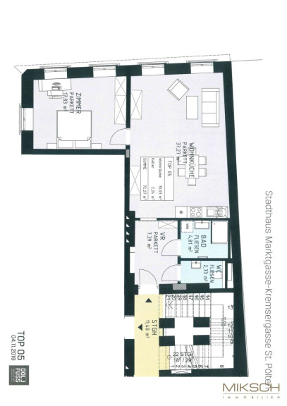
Diese Lichtdurchflutete Wohnung in der St. Pöltner Innenstadt mit Blick auf das berühmte "Tellerhaus", bietet Ihnen alles was Sie für ein komfortables und modernes Wohnen brauchen. 

 



Die geteilte Nutzung der separat begehbaren großzügigen Dachterrasse (Blick über St. Pölten) mit Wohnung Top01 ist bereits im Mietpreis inkludiert.



Die Immobilie wurde im Jahr 2019 vollständig saniert. Sowohl die Fliesen als auch der Parkettboden wurden erneuert und verleihen der Wohnung ein modernes und ansprechendes Ambiente. Auch eine neue Einbauküche ist bereits vorhanden. Der Personenaufzug macht das Erreichen Ihrer Wohnung nicht nur komfortabler, sondern auch barrierefrei.



Von den großen Doppelkastenfenstern aus, können Sie den Ausblick über die Dächer von St. Pölten genießen. 



Das Badezimmer bietet viel Platz und ist mit einer großen Dusche ausgestattet. Direkt daneben befindet sich das Gäste WC mit Waschbecken. Vom geräumigen Vorraum aus, gelangen Sie in den offenen Wohn -Essbereich mit moderner Einbauküche. Direkt daneben befindet sich das große Schlafzimmer. 



Die Wohnung wird mit Fernwärme geheizt und ist somit nicht nur umweltfreundlich, sondern auch kosteneffizient. 



Die Verkehrsanbindung ist ideal, da sich eine Bushaltestelle direkt vor der Tür befindet und der Bahnhof nur wenige Minuten zu Fuß entfernt ist. Auch alle wichtigen Einrichtungen des täglichen Bedarfs befinden sich in unmittelbarer Nähe. Ob Arzt, Apotheke, Krankenhaus, Schule, Kindergarten, Universität, Höhere Schule, Supermarkt, Bäckerei oder Einkaufszentrum - alles ist schnell und bequem zu erreichen.



Diese Wohnung bietet Ihnen komfortables und modernes Wohnen in der Landeshauptstadt. Nutzen Sie die Gelegenheit und werden Sie Teil dieser attraktiven Wohnanlage.



Kontaktieren Sie uns noch heute, um einen Besichtigungstermin zu vereinbaren und sich selbst von dieser Immobilie zu überzeugen. Wir freuen uns auf Sie!


Wir weisen darauf hin, dass zwischen dem Vermittler und dem zu vermittelnden Dritten ein wirtschaftliches Naheverhältnis mit gesellschaftlicher Verflechtung besteht.


Der Immobilienmakler erklärt, dass er – entgegen dem in der Immobilienwirtschaft üblichen Geschäftsgebrauch des Doppelmaklers – einseitig nur für den Vermieter tätig ist.

Infrastruktur / Entfernungen

Gesundheit
Arzt <500m
Apotheke <500m
Klinik <1.000m
Krankenhaus <1.500m

Kinder & Schulen
Schule <500m
Kindergarten <500m
Universität <1.500m
Höhere Schule <500m

Nahversorgung
Supermarkt <500m
Bäckerei <500m
Einkaufszentrum <500m

Sonstige
Bank <500m
Geldautomat <500m
Polizei <500m
Post <500m

Verkehr
Bus <500m
Bahnhof <500m
Autobahnanschluss <3.000m
Flughafen <6.000m

Angaben Entfernung Luftlinie / Quelle: OpenStreetMap

Eckdaten Objektnr. 8056/207

Art: Wohnung
Land: Österreich
Baujahr: 1900
Zustand: Voll_saniert
Alter: Altbau
Gesamtmiete: 941,00
Kaltmiete (netto): 630,00 €
Kaltmiete: 800,91 €
Provision: Gemäß Erstauftraggeberprinzip bezahlt der Abgeber die Provision.
Betriebskosten: 170,91 €
Heizkosten: 50,00 €
MwSt Gesamt: 90,09 €
Wohnfläche: 70,03 m²
Zimmer: 2
Bäder: 1
WC: 1
Terrassen: 1
Keller: 2,24 m²
Heizwärmebedarf:  C  77,09 kWh/m²a
fGEE:  C  1,37
Immobilie merken Exposé

Ausstattung

Fliesen, Parkett, Zentralheizung, Einbauküche, Personenaufzug, Bad mit Fenster, Dusche, Kabel/Satelliten-TV


Immobilie anfragen


Ihre persönliche Beratung

Miksch Immobilien MMI Holding GmbH

Mazlum Akyol

Miksch Immobilien MMI Holding GmbH

T +43 69910142642