Zeitlose Eleganz trifft modernen Wohnkomfort – stilvoll sanierte 3,5-Zimmer-Altbauwohnung mit Designküche, zwei Außenflächen & Toplage nahe dem Türkenschanzpark

Wohnung - Etage, 1180 Wien , Gersthofer Straße


Die Gersthofer Straße zählt zu den begehrtesten Wohnadressen Wiens. Hier genießen Sie die perfekte Kombination aus urbanem Komfort und ruhigem Wohnen. In unmittelbarer Nähe befinden sich zahlreiche Einkaufsmöglichkeiten, charmante Cafés, Restaurants und der beliebte Türkenschanzpark. Die Anbindung an den öffentlichen Verkehr ist ideal: Die S-Bahn Gersthof, die Straßenbahnlinien 40 & 41 sowie mehrere Busverbindungen garantieren eine schnelle Erreichbarkeit der Wiener Innenstadt.

Beschreibung der Immobilie

Zeitlose Eleganz trifft modernen Wohnkomfort – stilvoll sanierte 3,5-Zimmer-Altbauwohnung mit Designküche, zwei Außenflächen & Toplage nahe dem Türkenschanzpark

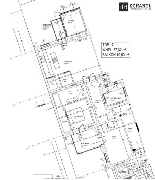
In einem prachtvoll revitalisierten Altbauhaus im Herzen von Währing erwartet Sie diese außergewöhnliche 3,5-Zimmer-Wohnung im 3. Obergeschoss.

Die Wohnung wurde 2021 umfassend saniert und verbindet klassischen Wiener Altbaucharme mit modernster Ausstattung und einem klaren Sinn für Stil und Qualität.



Schon beim Betreten beeindruckt das durchdachte Wohnkonzept: hohe Räume, edler Eichen-Fischgrätparkett und ein harmonisches Farbkonzept schaffen ein behagliches und zugleich repräsentatives Ambiente.



Ein absolutes Highlight bildet die exklusive Einbauküche mit Gaggenau- und Neff-Geräten, einer modernen Kochinsel, Induktionsherd sowie einem integrierten Liebherr-Weinkühlschrank – ideal für alle, die Design und Funktionalität gleichermaßen schätzen.

Direkt daneben befindet sich ein praktischer Abstellraum.





Vom Wohnzimmer gelangt man in ein separates Arbeitszimmer mit Zugang zum Balkon mit Blick in den begrünten Innenhof eröffnet.



Das Hauptschlafzimmer bietet einen Zugang zur zweiten Außenfläche mit ca. 7,65 m².
Das zweite Schlafzimmer mit ca. 14,87 m² wurde aktuell mit einer Zwischenwand geteilt und bietet damit flexible Nutzungsmöglichkeiten – etwa als zusätzlicher Arbeitsberiech.



Das luxuriöse Badezimmer bietet mit seiner freistehenden Badewanne, einer barrierefreien Dusche, Doppelwaschbecken und hochwertigen Armaturen einen Ort der Entspannung und Ruhe.

Ein separates WC mit Handwaschbecken ergänzt die elegante Sanitärausstattung.



Ausstattung im Überblick:




  • 3,5-Zimmer-Wohnung im 3. Obergeschoss eines sanierten Altbaus



  • die Sanierung erfolgte 2021



  • Edler Fischgrätparkettboden + Fußbodenheizung in allen Räumen



  • Luxuriöses Badezimmer mit freistehender Badewanne, barrierefreier Dusche und Doppelwaschbecken



  • Separates WC + Handwaschbecken



  • Design-Einbauküche mit Gaggenau und Neff Geräten, Kochinsel, Liebherr-Weinkühlschrank & Induktionsherd



  • Praktischer Abstellraum direkt neben der Küche



  • Zwei Außenflächen vom Wohnzimmer und Schlafzimmer aus begehbar



  • Sicherheitstüre WK3/RC3



  • Hochwertige Materialien & elegante Ausstattung



  • Kellerabteil und Fahrradabstellraum im Haus



  • Übernahme nach Vereinbarung






Verkaufspreis: 830.000 €



Wohnfläche: 87,32 m² + 10,50 m² Außenfläche



Übergabe nach Vereinbarung





Vereinbaren Sie noch heute einen Besichtigungstermin und überzeugen Sie sich selbst von dieser attraktiven Immobilie!



Unser Service für Sie: Wenn Sie sich für diese Immobilie entschieden haben, begleiten wir Sie gerne vom Kaufanbot weg inkl. Klärung von Sonderwünschen und der Vertragsunterzeichnung über die Wohnungsübergabe bis hin zu diversen Ummeldungen wie Strom und Gas. Entsprechende Formulare oder auch Meldezettel stellen wir Ihnen sehr gerne zur Verfügung.



Gerne unterstützen wir Sie auch bei der Finanzierung Ihres Traumobjekts und finden mit unseren langjährigen Partnern die besten Konditionen für Sie.



Vereinbaren Sie noch heute einen Termin, wir beraten Sie gerne!



www.schantl-ith.at


Wir weisen darauf hin, dass zwischen dem Vermittler und dem zu vermittelnden Dritten ein familiäres oder wirtschaftliches Naheverhältnis besteht.

Infrastruktur / Entfernungen

Gesundheit
Arzt <250m
Apotheke <250m
Klinik <1.000m
Krankenhaus <1.750m

Kinder & Schulen
Schule <500m
Kindergarten <250m
Universität <750m
Höhere Schule <250m

Nahversorgung
Supermarkt <250m
Bäckerei <250m
Einkaufszentrum <1.750m

Sonstige
Geldautomat <250m
Bank <250m
Post <250m
Polizei <750m

Verkehr
Bus <250m
U-Bahn <1.500m
Straßenbahn <250m
Bahnhof <250m
Autobahnanschluss <2.750m

Angaben Entfernung Luftlinie / Quelle: OpenStreetMap

Eckdaten Objektnr. 293797

Art: Wohnung - Etage
Land: Österreich
Baujahr: 1905
Zustand: Teil_vollrenoviert
Alter: Altbau
Kaufpreis: 830.000,00
Kaufpreis / m²: 8.966,19 €
Provision: 3% des Kaufpreises zzgl. 20% USt.
Betriebskosten: 308,50 €
Wohnfläche: 87,32 m²
Nutzfläche: 92,57 m²
Zimmer: 3,50
Bäder: 1
WC: 1
Balkone: 2
Heizwärmebedarf:  B  36,45 kWh/m²a
fGEE:  B  0,71
Immobilie merken Exposé

Ausstattung

Parkett, Fliesen, Gas, Fußbodenheizung, Einbauküche, Personenaufzug, Ostbalkon, Badewanne, Dusche


Immobilie anfragen


Ihre persönliche Beratung

Schantl ITH Immobilientreuhand GmbH

Marlies Sprinzl

Schantl ITH Immobilientreuhand GmbH

T +43 664 30 7000 9

H +436609094554