Direkt an der Piste der Salzburger Alpen in Werfenweng ! – Investieren & Genießen

Wohnung , 5020 Salzburg


Lage & Werfenweng Werfenweng ist eine renommierte Ganzjahresdestination im Salzburger Land und steht für alpinen Lebensstil, sanften Tourismus und hohe Aufenthaltsqualität. Umgeben von der beeindruckenden Bergwelt des Tennengebirges verbindet der Ort Natur, Ruhe und eine ausgezeichnete touristische Infrastruktur. Die Lage direkt an der Talstation der Rosnerköpflbahn bietet höchsten Komfort mit Ski-in/Ski-out im Winter sowie unmittelbaren Zugang zu Wander- und Freizeitmöglichkeiten im Sommer. Dank der guten Erreichbarkeit und der klaren touristischen Positionierung zählt Werfenweng zu den gefragten Ferienstandorten der Region.

Beschreibung der Immobilie

Direkt an der Piste der Salzburger Alpen in Werfenweng ! – Investieren & Genießen

Apartment Vorstellung: 



Direkt an der Talstation Rosnerköpflbahn – Werfenweng



Zum Verkauf steht ein attraktives 3-Zimmer-Ferienapartment mit einer Wohnfläche von ca. 64,7 m², situiert in einem exklusiven Resort direkt an der Talstation der Rosnerköpflbahn in Werfenweng.



Das Apartment überzeugt durch einen durchdachten Grundriss mit drei Zimmern sowie einen Balkon mit ca. 10 m², der zusätzlichen Wohnkomfort im Außenbereich bietet und den alpinen Charakter der Lage unterstreicht.



Die Einheit wird vollständig möbliert inklusive hochwertiger Küche übergeben. Die Ausstattung ist modern, zeitlos und optimal auf die ganzjährige touristische Nutzung abgestimmt.



Resort- & Hotelinfrastruktur



Eigentümer und Gäste genießen den Zugang zur umfangreichen Hotel- und Resortinfrastruktur mit exklusivem Freizeit- und Wellnessangebot:




  • Exklusives hauseigenes Restaurant



  • Großzügiger Wellnessbereich mit Sauna, Dampfbad, Pool & Panoramaraum



  • Modernes Gym



  • Yoga- & Bewegungsraum



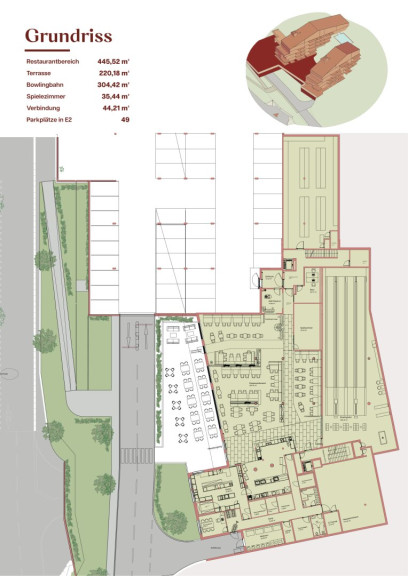
  • Indoor-Freizeitangebote wie Bowlingbahn und Tischspiele




Die professionelle Bewirtschaftung durch einen erfahrenen Hotelbetreiber sorgt für eine komfortable Vermietung, hohe Servicequalität und nachhaltige Auslastung.



Eine Eigennutzung von bis zu 30 Tagen pro Jahr ist bei vorheriger Bekanntgabe möglich.



Parkmöglichkeiten



Optional besteht die Möglichkeit zum käuflichen Erwerb eines Pkw-Stellplatzes in der Tiefgarage. Insgesamt stehen 49 Pkw-Stellplätze für das Gesamtprojekt zur Verfügung.



Highlights dieses Apartments




  • ca. 64,7 m² Wohnfläche



  • 3-Zimmer-Grundriss



  • Balkon ca. 10 m²



  • Voll möbliert inkl. Küche



  • Direkt an der Rosnerköpflbahn



  • Zugang zu Wellness-, Sport- & Freizeitbereichen



  • Ganzjährige touristische Nutzung



  • Professioneller Hotelbetrieb



  • Optionaler Pkw-Stellplatz in der Tiefgarage






Das Projekt auf einem Blick





In absoluter Bestlage direkt an der Talbahn Rosnerköpflbahn gelangt ein außergewöhnliches Apartmentprojekt mit 40 hochwertig ausgestatteten Ferienapartments zum Verkauf. Die Einheiten verfügen über Wohnflächen von ca. 32 m² bis 116 m² und sind optimal auf unterschiedliche Anleger- und Nutzungskonzepte abgestimmt.



Alle Apartments werden schlüsselfertig inklusive moderner Küche und exklusiver Möblierung übergeben. !!! Fertigstellung ist mit Q3 2026 geplant !!! Die Ausstattung erfüllt höchste Ansprüche an Komfort, Design und Langlebigkeit und ist konsequent auf die ganzjährige touristische Nutzung ausgelegt.



Die professionelle Bewirtschaftung erfolgt durch einen erfahrenen Hotelbetreiber, wodurch Eigentümer von einer sorgenfreien Vermietung, professionellem Gästeservice sowie laufender Betreuung profitieren. Eine Eigennutzung von bis zu 30 Tagen pro Jahr ist bei vorheriger Bekanntgabe möglich und vereint Investment und persönlichen Freizeitwert. 



Exklusive Infrastruktur & Resort-Charakter



Das Projekt überzeugt durch ein umfangreiches, hauseigenes Freizeit- und Wellnessangebot, das den Gästen ganzjährig ein außergewöhnliches Urlaubserlebnis bietet:




  • 🍽️ Exklusives, hauseigenes Restaurant



  • 🧖 Großzügiger Wellnessbereich mit




    • Sauna



    • Dampfbad



    • Pool



    • Panoramaraum




  • 🏋️ Modernes Fitnesstudio



  • 🧘 Eigener Yoga- & Bewegungsraum



  • 🎳 Indoor-Aktivitäten




    • Eigene Bowlingbahn



    • Tischspiele & Freizeitbereiche





Diese Infrastruktur schafft einen echten Resort-Charakter, steigert die Aufenthaltsqualität für Gäste und wirkt sich nachhaltig positiv auf Auslastung, Nächtigungszahlen und Ertragspotenzial aus.



Highlights auf einen Blick




  • 📍 Direkt an der Talstation Rosnerköpflbahn (Ski-in/Ski-out)



  • 🏔️ Ganzjahrestourismus in Top-Destination



  • 🏠 40 Apartments | ca. 32–116 m²



  • 🛋️ Voll möbliert inkl. Küche



  • 🏨 Professioneller Hotelbetrieb



  • 📅 Bis zu 30 Tage Eigennutzung/Jahr



  • 💎 Wellness, Restaurant, Sport & Indoor-Freizeit im Haus



  • 💼 Attraktives Investment mit Premium-Freizeitwert



Hinweis gemäß Energieausweisvorlagegesetz: Ein Energieausweis wurde vom Eigentümer bzw. Verkäufer, nach unserer Aufklärung über die generell geltende Vorlagepflicht, sowie Aufforderung zu seiner Erstellung noch nicht vorgelegt. Daher gilt zumindest eine dem Alter und der Art des Gebäudes entsprechende Gesamtenergieeffizienz als vereinbart. Wir übernehmen keinerlei Gewähr oder Haftung für die tatsächliche Energieeffizienz der angebotenen Immobilie.


Wir weisen darauf hin, dass zwischen dem Vermittler und dem zu vermittelnden Dritten ein familiäres oder wirtschaftliches Naheverhältnis besteht.


Der Vermittler ist als Doppelmakler tätig.

Infrastruktur / Entfernungen

Gesundheit
Arzt <500m
Apotheke <500m
Klinik <500m
Krankenhaus <500m

Kinder & Schulen
Schule <500m
Kindergarten <1.000m
Universität <500m
Höhere Schule <500m

Nahversorgung
Supermarkt <500m
Bäckerei <500m
Einkaufszentrum <1.000m

Sonstige
Bank <500m
Geldautomat <500m
Post <500m
Polizei <1.000m

Verkehr
Bus <500m
Bahnhof <500m
Autobahnanschluss <3.000m
Flughafen <3.000m

Angaben Entfernung Luftlinie / Quelle: OpenStreetMap

Eckdaten Objektnr. 8359/288

Art: Wohnung
Land: Österreich
Baujahr: 2026
Zustand: Erstbezug
Alter: Neubau
Kaufpreis: 430.000,00
Kaufpreis / m²: 6.645,03 €
Provision: 3% des Kaufpreises zzgl. 20% USt.
Wohnfläche: 64,71 m²
Zimmer: 3
Bäder: 2
WC: 2
Balkone: 1
Immobilie merken Exposé

Ausstattung

Fliesen, Parkett, Fußbodenheizung, Einbauküche, Wohnküche / offene Küche, Personenaufzug, Dusche, Sauna, Sporteinrichtungen, Swimmingpool


Immobilie anfragen


Ihre persönliche Beratung

HAPPYIMMO GmbH

Hannes Pletz

HAPPYIMMO GmbH

H +43 676 911 0 911