Modern, hell & gut gelegen: 2-Zimmerwohnung mit Balkon in Lustenau zu vermieten!

Wohnung - Terrassenwohnung, 6890 Lustenau , Radetzkystraße 20


Beschreibung der Immobilie

Modern, hell & gut gelegen: 2-Zimmerwohnung mit Balkon in Lustenau zu vermieten!

Zentrumsnah und gemütlich: 2-Zimmerwohnung in Lustenau!



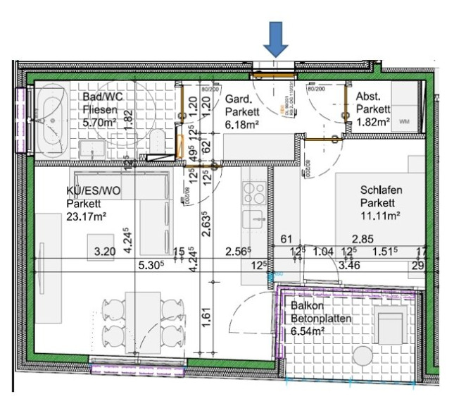
In der Radetzkystraße 20 in Lustenau befindet sich diese moderne 2-Zimmerwohnung mit 47,99 m² Wohnfläche, die zeitgemäßen Wohnkomfort mit einer angenehmen Wohnlage vereint. Der offen gestaltete Wohn- und Essbereich mit direktem Zugang zum Balkon bildet den zentralen Wohnraum und sorgt für eine behagliche Atmosphäre. Praktische Nebenflächen wie ein Abstellraum, ein Kellerabteil sowie ein Tiefgaragenplatz runden dieses attraktive Wohnangebot ab.



Ein ideales Zuhause für Singles und Paare, die Wert auf eine gepflegte Wohnqualität, gute Infrastruktur und eine durchdachte Raumaufteilung legen.



Die Wohnung ist ab dem 01.04.2026 verfügbar. Nach Rücksprache gegebenenfalls bereits ab dem 01.03.2026.



Lage:



Zentrale Lage in Lustenau: Wohnumfeld mit kurzen Wegen ins Zentrum – ideal für diejenigen, die gut angebunden sein möchten.



Vielfältige Einkaufsmöglichkeiten: Fachgeschäfte, Supermärkte und Wochenmärkte befinden sich in unmittelbarer Nähe – perfekt für Ihren täglichen Bedarf.



Exzellente öffentliche Anbindung: Bushaltestellen an der Radetzkystraße sind fußläufig erreichbar und verbinden Ihre Wohnlage effizient mit Dornbirn, Feldkirch und anderen umliegenden Orten.



Gastronomie bequem zugänglich: In der Umgebung finden Sie eine gute Auswahl an Restaurants und Cafés – ideal für entspannte Mahlzeiten oder spontane Treffen. 





Raumaufteilung:



  • Garderobe
  • Küche-Ess-Wohnzimmer
  • Schlafzimmer
  • Balkon 
  • Badezimmer mit Badewanne, Fenster und WC
  • Abstellraum 
  • Kellerabteil 
  • Tiefgaragenplatz




Gesamtmietzins:



EUR    717,84 Mietzins Wohnung



EUR    144,54 Betriebskosten Wohnung



EUR      21,61 Heizkosten Wohnung



EUR      78,00 Mietzins Tiefgaragenplatz



EUR      13,01 Betriebskosten Tiefgaragenplatz



EUR    975,00 Gesamtmietzins inklusive Betriebskosten



Die Berechnung der Betriebs- und Heizkosten orientiert sich am aktuell geführten 1-Personen-Haushalt und muss gegebenenfalls noch angepasst werden.



Kautionshinterlegung:



Die Kaution in Höhe von € 3.000,- kann entweder per Überweisung oder mittels Bankgarantie hinterlegt werden.





Zögern Sie nicht und kontaktieren Sie uns für einen Besichtigungstermin!





Die Firma Mag. Kofler Vermögenstreuhand GmbH erklärt, entgegen dem in der Immobilienwirtschaft üblichen Geschäftsgebrauch nicht als Doppelmakler,



sondern nur einseitig für den (die) Vermieter(in) tätig zu sein. Weiter ist die Firma Mag. Kofler Vermögenstreuhand GmbH ermächtigt, bis auf Widerruf Objekte



zu präsentieren. Mit dem Auftraggeber besteht zudem ein wirtschaftliches Naheverhältnis aufgrund der Immobilienverwaltung.



Noch nichts gefunden? Wir informieren Sie über geeignete Immobilienangebote noch vor allen anderen.
Legen Sie jetzt Ihren individuellen Suchagenten unter folgendem Link an. Wir schicken Ihnen passende Immobilien exklusiv vorab zu.

Suchagent anlegen - https://mag-kofler-vermoegenstreuhand.service.immo/registrieren/de

Infrastruktur / Entfernungen

Gesundheit
Arzt <350m
Apotheke <450m
Krankenhaus <6.700m
Klinik <4.650m

Kinder & Schulen
Schule <275m
Kindergarten <350m
Universität <6.875m
Höhere Schule <2.875m

Nahversorgung
Supermarkt <125m
Bäckerei <400m
Einkaufszentrum <125m

Sonstige
Bank <400m
Geldautomat <475m
Post <625m
Polizei <525m

Verkehr
Bus <75m
Bahnhof <1.475m
Autobahnanschluss <1.200m
Flughafen <6.075m

Angaben Entfernung Luftlinie / Quelle: OpenStreetMap

Eckdaten Objektnr. 5781/18370213

Art: Wohnung - Terrassenwohnung
Land: Österreich
Baujahr: 2016
Gesamtmiete: 975,00
Kaltmiete (netto): 975,00 €
Kaltmiete: 975,00 €
Wohnfläche: 47,99 m²
Zimmer: 2
Bäder: 1
WC: 1
Balkone: 1
Keller: 4,27 m²
Heizwärmebedarf:  B  44,00 kWh/m²a
fGEE:  A  0,71
Immobilie merken Exposé

Ausstattung

Gas, Einbauküche, Wohnküche / offene Küche, Personenaufzug, Bad mit Fenster, Badewanne, Tiefgarage


Immobilie anfragen


Ihre persönliche Beratung

Mag. Kofler Vermögenstreuhand GmbH

BA Thomas Auer

Mag. Kofler Vermögenstreuhand GmbH

T +43 5523 53156 611