TANBRUCKGASSE - ROLLINGERGASSE, 51 m2 Neubau, 2 Zimmer, Komplettküche, Wannenbad, Parketten, Bahnhof Meidling

Wohnung - Etage, 1120 Wien , Rollingergasse


ROLLINGERGASSE ECKE TANBRUCKGASSE mit bester Infrastruktur des 12. Bezirks (Meidlinger Hauptstraße, Ruckergasse, Tanbruckgasse, Eichenstraße, Bahnhof Meidling) und optimalen Verkehrsverbindungen, der Bahnhof Meidling mit der S-Bahn Meidling, die U6-Station Meidling (Philadelphiabrücke) sowie die Linien 62, WLB, 7A, 8A, 9A, 63A, N8 + N62 sind in unmittelbarer Nähe

Beschreibung der Immobilie

TANBRUCKGASSE - ROLLINGERGASSE, 51 m2 Neubau, 2 Zimmer, Komplettküche, Wannenbad, Parketten, Bahnhof Meidling

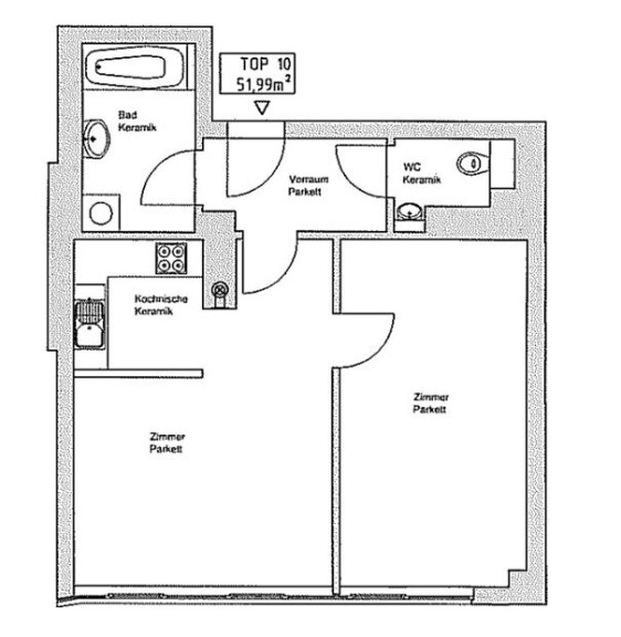
IN DER ROLLINGERGASSE - ECKE TANBRUCKGASSE GELANGT DIESE CA. 51,99 m2 NEUBAUWOHNUNG IM 3. LIFTSTOCK ZUR BEFRISTETEN VERMIETUNG



Vorzimmer, Wohnküche, Schlafzimmer, Badezimmer, separates WC und Kellerabteil



Ausstattung: 


+ Küche mit Einbaugeräte

+ Bad mit Badewanne, Waschtisch und Waschmaschinenanschluss

+ separates WC mit Waschgelegenheit

+ Parketten, Fliesen in den Nassräumen

+ Telekabelfernsehanschluss, Gegensprechanlage

+ Fernwärmeheizung

+ Kellerabteil

+ Fahrradabstellraum im Haus

+ HWB 54,76 kWh/m2a



Lage



ROLLINGERGASSE ECKE TANBRUCKGASSE mit bester Infrastruktur des 12. Bezirks (Meidlinger Hauptstraße, Ruckergasse, Tanbruckgasse, Eichenstraße, Bahnhof Meidling) und optimalen Verkehrsverbindungen, der Bahnhof Meidling mit der S-Bahn Meidling, die U6-Station Meidling (Philadelphiabrücke) sowie die Linien 62, WLB, 7A, 8A, 9A, 63A, N8 + N62 sind in unmittelbarer Nähe




Sonstiges



Gesamtmiete € 929,70 inklusive Betriebskosten, Aufzug, 10 % MwSt.

Heizung und Strom wird separat zur Vorschreibung gebracht.

 

Kaution: € 2.790,00 per Überweisung

auf 5 Jahre befristete Hauptmiete, ablösefrei, Sofortbezug möglich!
1 Jahr Kündigungsverzicht, 3 Monate Kündigungsfrist



Anbindung öffentlicher Verkehr



der Bahnhof Meidling mit der S-Bahn Meidling, die U6-Station Meidling (Philadelphiabrücke) sowie die Linien 62, WLB, 7A, 8A, 9A, 63A, N8 + N62 sind in unmittelbarer Nähe


Der Immobilienmakler erklärt, dass er – entgegen dem in der Immobilienwirtschaft üblichen Geschäftsgebrauch des Doppelmaklers – einseitig nur für den Vermieter tätig ist.

Infrastruktur / Entfernungen

Gesundheit
Arzt <250m
Apotheke <250m
Klinik <500m
Krankenhaus <1.250m

Kinder & Schulen
Schule <250m
Kindergarten <250m
Universität <1.000m
Höhere Schule <500m

Nahversorgung
Supermarkt <250m
Bäckerei <250m
Einkaufszentrum <250m

Sonstige
Geldautomat <250m
Bank <250m
Post <500m
Polizei <500m

Verkehr
Bus <250m
U-Bahn <250m
Straßenbahn <250m
Bahnhof <250m
Autobahnanschluss <2.250m

Angaben Entfernung Luftlinie / Quelle: OpenStreetMap

Eckdaten Objektnr. 2367

Art: Wohnung - Etage
Land: Österreich
Zustand: Gepflegt
Alter: Neubau
Gesamtmiete: 929,70
Kaltmiete (netto): 710,00 €
Kaltmiete: 845,18 €
Provision: Gemäß Erstauftraggeberprinzip bezahlt der Abgeber die Provision.
Betriebskosten: 119,06 €
MwSt Gesamt: 84,52 €
Nutzfläche: 51,99 m²
Zimmer: 2
Bäder: 1
WC: 1
Keller: 1,50 m²
Heizwärmebedarf:  C  54,76 kWh/m²a
fGEE:  C  1,07
Immobilie merken Exposé

Ausstattung

Fliesen, Parkett, Zentralheizung, Einbauküche, Wohnküche / offene Küche, Personenaufzug, Badewanne, Kabel/Satelliten-TV


Immobilie anfragen


Ihre persönliche Beratung

ROS REALITÄTEN OG

Alexander Ros

ROS REALITÄTEN VERMITTLUNG OG - TESTACCOUNT

T +43 1 526 70 60 - 12

H +43 664 466 52 02

F +43 1 526 70 60 33