Jackpot - Starten Sie Ihr Business! Bestlage zwischen Schönbrunn und Mariahilferstraße + Traumhaft und überkomplett saniertes Altbauhaus + TOP Geschäftslokal im EG + Potential!

Zinshaus Renditeobjekt , 1150 Wien,Rudolfsheim-Fünfhaus , Mariahilfer Gürtel


Diese exklusive Zinshaus liegt am Mariahilfer Gürtel, nur 3 Gehminuten von der U3-Station als auch der U6-Station Westbahnhof entfernt. Die zentrale Lage ermöglicht es Ihnen, die Wiener Innenstadt in kürzester Zeit zu erreichen. Die Mariahilfer Straße, Wiens beliebteste Einkaufsmeile, befindet sich in unmittelbarer Nähe und bietet eine Vielzahl an Einkaufsmöglichkeiten, Restaurants und Cafés, die zum Verweilen einladen. Auch der Westbahnhof, einer der wichtigsten Verkehrsknotenpunkte Wiens, ist schnell zu Fuß erreichbar. Von hier aus stehen Ihnen zahlreiche Straßenbahn- und Buslinien zur Verfügung, die Sie bequem durch die gesamte Stadt bringen. Egal ob für den täglichen Arbeitsweg, spontane Ausflüge oder Shoppingtouren – diese Lage bietet alles, was ein modernes, urbanes Leben in Wien ausmacht. Hot Spots in der Nähe: Naschmarkt / Schloss und Tiergarten Schönbrunn / Museumsquartier / Wiener Stadthalle mit zahlreichen Veranstaltungen, Konzerten, Shows usw. / Innenstadt uvm. Öffis: U6, U3 / Straßenbahn 5,9,18, 52, 60 / Bus-Bahnhof Westbahnhof

Beschreibung der Immobilie

Jackpot - Starten Sie Ihr Business! Bestlage zwischen Schönbrunn und Mariahilferstraße + Traumhaft und überkomplett saniertes Altbauhaus + TOP Geschäftslokal im EG + Potential!

Jackpot - Starten Sie Ihr Business! Bestlage zwischen Schönbrunn und Mariahilferstraße + Traumhaft und überkomplett saniertes Altbauhaus + TOP Geschäftslokal im EG + Potential!



Die Chance für Ihre Zukunft!



Ideal zur Nutzung als Apartment-Hotel!





Dieses taumhaft und rundum sanierte Zinshaus besticht nicht nur durch die perfekte Lage für touristische Vermietung, sondern auch durch ein perfekt durchdachtes Konzept! Das Erdgeschoss besticht durch ein TOP-Lokal sowohl für Gäste als auch für die zahlreiche Laufkundschaft in dieser Lage - eine wahre Cash Cow!





Facts:



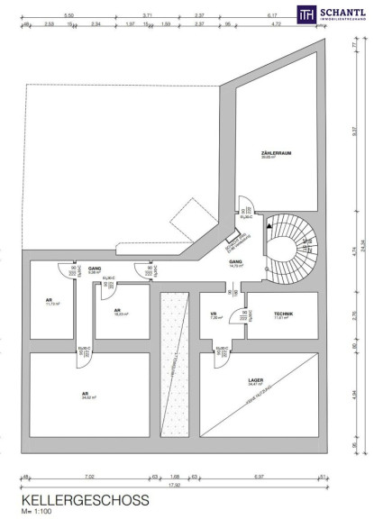
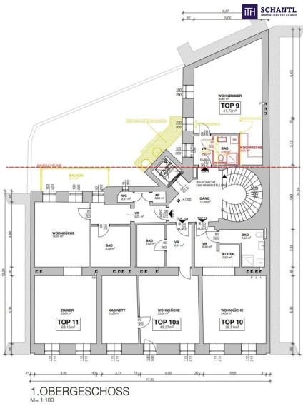
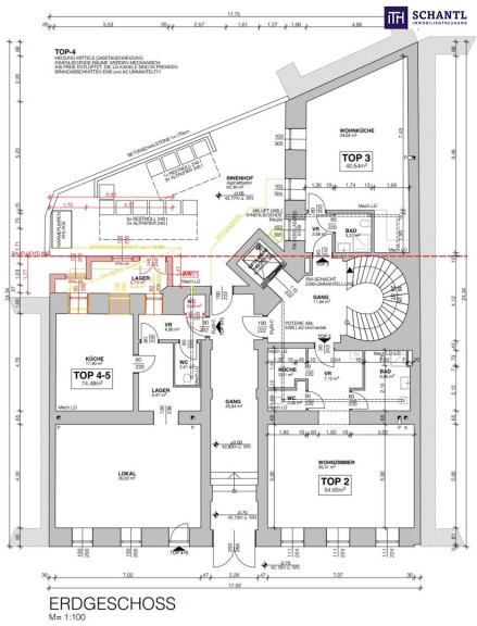
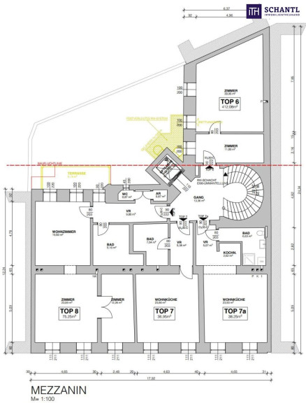
+ Kernsanierter Bestand: ca. 931,18m² (20 Einheiten)



+ 1 Geschäftslokal: ca. 74,48m² / 16 Apartments (hochwertig saniert und voll möbliert): ca. 693,38m² / 3 vermietete Wohnungen: ca. 163,32m²



+ Sanierter Keller und Lager: ca. 97,84m² / Nutzbar als Lagerräume oder Spabereiche



+ Möglicher DG-Ausbau: ca. 280m² (laut Studie)



+ Luftwärmepumpe



+ Lift bis ins Dachgeschoss bereits eingebaut



+ Alle offiziellen Genehmigungen für Brandschutz, Fluchtwege etc. für die technischen Vorraussetzungen zur Kurzzeitmiete wurde bereits eingeholt und umgesetzt



+ Bereits erfolgreich vermietet!



+ Das Inventar der Apartments und die Anschaffungskosten sind bereits im Kaufpreis inkludiert



+ 3 Balkone und 1 Terrasse sind bereits baubewilligt



+ ca. 280m² und Feiflächen sind bei einem Dachgeschossausbau als zusätzliches Potential vorhanden





Kaufpreis: € 6.190.000.- Asset oder Share Deal





Worauf warten Sie noch? Starten Sie durch!





www.schantl-ith.at




Wir weisen darauf hin, dass zwischen dem Vermittler und dem zu vermittelnden Dritten ein familiäres oder wirtschaftliches Naheverhältnis besteht.


Der Vermittler ist als Doppelmakler tätig.

Infrastruktur / Entfernungen

Gesundheit
Arzt <250m
Apotheke <250m
Klinik <500m
Krankenhaus <750m

Kinder & Schulen
Schule <250m
Kindergarten <250m
Universität <750m
Höhere Schule <1.250m

Nahversorgung
Supermarkt <250m
Bäckerei <250m
Einkaufszentrum <1.000m

Sonstige
Geldautomat <250m
Bank <250m
Post <500m
Polizei <250m

Verkehr
Bus <250m
U-Bahn <250m
Straßenbahn <250m
Bahnhof <250m
Autobahnanschluss <4.500m

Angaben Entfernung Luftlinie / Quelle: OpenStreetMap

Eckdaten Objektnr. 293673

Art: Zinshaus Renditeobjekt
Land: Österreich
Baujahr: 1900
Zustand: Erstbezug
Möbliert: Voll
Alter: Altbau
Kaufpreis: 6.190.000,00
Kaufpreis / m²: 4.687,58 €
Provision: 222.840,00 € inkl. 20% USt.
Wohnfläche: 931,18 m²
Nutzfläche: 1.320,51 m²
Lagerfläche: 97,84 m²
Balkone: 3
Terrassen: 1
Keller: 91,05 m²
Heizwärmebedarf:  B  36,00 kWh/m²a
fGEE:  A  0,82
Immobilie merken Exposé

Ausstattung

Fliesen, Parkett, Zentralheizung, Einbauküche, Personenaufzug, Südbalkon, Angeschl. Bar, Badewanne, Dusche, Kabel/Satelliten-TV


Immobilie anfragen


Ihre persönliche Beratung

Schantl ITH Immobilientreuhand GmbH

Samir Agha-Schantl

Schantl ITH Immobilientreuhand GmbH

T 0043 664 3070009

H 0043 660 4701793