Ihr Traum vom Eigenheim: Sonniges Wohnen in Wien-Nähe - Großzügiges 4-Zimmer-Reihenhaus mit Gartenidylle!

Haus - Reihenhaus, 2434 Götzendorf an der Leitha , Teichgasse


Sie werden die Grünruhelage Ihrer neuen Heimat lieben! Dieses traumhafte Projekt befindet sich am Ortsrand der idyllischen Gemeinde Götzendorf an der Leitha. Ihr neues Haus liegt nur ca. 35 km südöstlich vom Stadtzentrum Wien entfernt und bietet somit die perfekte Kombination aus ruhigem Landleben mit städtischen Vorzügen. Es befinden sich alle wichtigen Örtlichkeiten in der Nähe sodass Sie eine Vielzahl von Einkaufsmöglichkeiten, Restaurants, etc. in wenigen Autominuten oder gemütlich mit dem Fahrrad bzw. zu Fuß erreichen. Mit dem Auto gelangen Sie in ca. 20 Minuten nach Schwechat sowie Bruck an der Leitha und Wien ist in ca. 35 Minuten erreichbar. Die öffentliche Verkehrsanbindung lässt sich ebenfalls als gut bezeichnen, da diverse Buslinien Sie in ca. 4 Minuten zum ca. 3 km entfernten Bahnhof Götzendorf chauffieren. Von dort aus gelangen Sie in ungefähr 25 Minuten zum Wiener Hauptbahnhof.

Beschreibung der Immobilie

Ihr Traum vom Eigenheim: Sonniges Wohnen in Wien-Nähe - Großzügiges 4-Zimmer-Reihenhaus mit Gartenidylle!

Wohnen im Grünen bei Wien! Jetzt zuschlagen und im Sommer 2026 einziehen!



Am Ortsrand von Götzendorf an der Leitha entstehen drei weitere perfekt geplante sowie hochwertig ausgeführte Reihenhäuser mit eigenen Parkplätzen, idyllischen Eigengärten sowie gemütlichen Terrassen zum Verkauf und warten auf ihre neuen glücklichen Eigentümer!



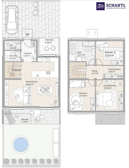
Exzellent durchdachte Raumaufteilung Haus 2:



Erdgeschoß:



  • praktischer Vorraum mit ausreichend Platz für eine Garderobe
  • getrennt begehbares WC mit Handwaschbecken
  • geräumiger Abstellraum mit Inneneinheit der effizienten Luft-Wärmepumpe
  • lichtdurchflutete Wohnküche mit Platz für einen großen Esstisch und gemütlicher Couch
  • Ausgang zur überdachten Terrasse und gemütlichen Eigengarten


Obergeschoß:



  • perfekt geschnittenes Schlafzimmer mit ausreichend Platz für einen großzügigen Kleiderschrank
  • großzügiges, rechtwinkliges Kinderzimmer – ideal zum Einrichten
  • weiteres helles Zimmer, perfekt als zweites Kinderzimmer oder als Homeoffice
  • geräumiges Badezimmer mit Waschmaschinenanschluss, Platz für eine Badewanne, bodenebene Dusche, WC und großes Handwaschbecken
  • praktischer Abstellraum, der auch als Schrankraum verwendet werden kann




Alle Wohneinheiten können entweder belagsfertig oder ganz individuell nach Ihren Wünschen schlüsselfertig hergestellt werden. Bei einigen der Fotos können Sie sich bereits ein Bild der bereits fertiggestellten und an deren glücklichen Eigentümer übergebenen Häuser machen. 



Facts:



  • ca.115 m² Wohnfläche
  • Garten: ca. 40 m²
  • Terrasse: ca. 15 m²
  • 2 Parkplätze 
  • Veranda
  • eigene Müllinsel
  • Optimaler Grundriss
  • Hoch effiziente Luftwärmepumpe
  • Fußbodenheizung
  • Hochwertige Ausführung
  • Schlüsselfertigpaket möglich 




Verfügbare Einheiten: 



Haus 1: € 380.000

Haus 2: € 390.000

Haus 3: € 400.000

Haus 4: VERKAUFT und BEZOGEN!

Haus 5: VERKAUFT und BEZOGEN!

Haus 6: VERKAUFT und BEZOGEN!





Bei konkretem Interesse senden wir Ihnen sehr gerne weiterführende Dokumente zu, wie:



o Grundbuchauszug



o Wohnungseigentumsvertrag



o Nutzwertgutachten





Unser Service für Sie: Wenn Sie sich für diese Immobilie entschieden haben, begleiten wir Sie gerne vom Kaufanbot weg inkl. Klärung von Sonderwünschen und der Vertragsunterzeichnung über die Wohnungsübergabe bis hin zu diversen Ummeldungen wie Strom und Gas. Entsprechende Formulare oder auch Meldezettel stellen wir Ihnen sehr gerne zur Verfügung.



Gerne unterstützen wir Sie auch bei der Finanzierung Ihres Traumobjekts und finden mit unseren langjährigen Partnern die besten Konditionen für Sie.



Worauf warten Sie noch? Wir freuen uns auf Ihre Anfrage!


Wir weisen darauf hin, dass zwischen dem Vermittler und dem zu vermittelnden Dritten ein familiäres oder wirtschaftliches Naheverhältnis besteht.


Der Vermittler ist als Doppelmakler tätig.

Infrastruktur / Entfernungen

Gesundheit
Arzt <500m
Apotheke <500m

Kinder & Schulen
Schule <1.250m
Kindergarten <1.000m

Nahversorgung
Supermarkt <1.250m
Bäckerei <4.750m

Sonstige
Geldautomat <1.000m
Bank <1.000m
Post <1.000m
Polizei <4.500m

Verkehr
Bus <250m
Bahnhof <2.500m

Angaben Entfernung Luftlinie / Quelle: OpenStreetMap

Eckdaten Objektnr. 293722

Art: Haus - Reihenhaus
Land: Österreich
Baujahr: 2026
Zustand: Erstbezug
Alter: Neubau
Kaufpreis: 390.000,00
Provision: 3% des Kaufpreises zzgl. 20% USt.
Wohnfläche: 114,75 m²
Nutzfläche: 132,08 m²
Grundstücksfl.: 173,89 m²
Zimmer: 4
Bäder: 1
WC: 2
Stellplätze: 2
Garten: 38,78 m²
Heizwärmebedarf:  B  27,00 kWh/m²a
fGEE:  A+  0,75
Immobilie merken Exposé

Ausstattung

Fußbodenheizung, Bad mit Fenster, Badewanne, Dusche, Parkplatz


Immobilie anfragen


Ihre persönliche Beratung

Schantl ITH Immobilientreuhand GmbH

Patrick Spreitzer, BA, MA

Schantl ITH Immobilientreuhand GmbH

T 0043 664 3070009

H 0043 677 61778499