Gebraucht aber gut! 2,5-Zimmer im Altbau mit Balkon und ca. 30 m² Eigengarten. Schnell sein!

Wohnung , 1030 Wien,Landstraße , Klopsteinplatz


Die Wohnung befindet sich in einer äußerst gefragten Wohngegend im dritten Wiener Gemeindebezirk, nur wenige Gehminuten von der Landstraßer Hauptstraße entfernt. Die Umgebung bietet eine hervorragende Infrastruktur mit zahlreichen Einkaufsmöglichkeiten, Cafés, Restaurants und Nahversorgern in direkter Nähe. Auch Schulen, Kindergärten und medizinische Einrichtungen sind bequem erreichbar. Die Anbindung an den öffentlichen Verkehr ist ausgezeichnet: Mehrere Straßenbahn- und Buslinien sowie die nahegelegene U-Bahn-Station garantieren eine schnelle Verbindung in die Wiener Innenstadt und darüber hinaus. Gleichzeitig lädt die grüne Umgebung zu erholsamen Spaziergängen oder sportlichen Aktivitäten ein – der nahe Stadtpark sowie das Arenbergpark-Areal bieten ideale Möglichkeiten zur Entspannung im Freien. Die Kombination aus urbanem Komfort, guter Verkehrsanbindung und hoher Lebensqualität macht diesen Standort besonders attraktiv.

Beschreibung der Immobilie

Gebraucht aber gut! 2,5-Zimmer im Altbau mit Balkon und ca. 30 m² Eigengarten. Schnell sein!

Traumprojekt in der Landstraße - Abheben von der Konkurrenz.....



Heimkommen! Abschalten! Wohlfühlen! Genießen!



Werfen Sie einen Blick auf dieses wunderschöne Gründerzeithaus und Sie werden Augen machen.



In zentraler Lage und unmittelbarer Nähe zur Landstraße Hauptstraße, wird im Zuge des Dachausbaus, demnächst einem Stilaltbau neues Leben eingehaucht. Hierbei wird auf den Erhalt der Altbauelemente viel Wert gelegt. Angefangen von eine neu sanierten Fassade, welche sich stilvoll in das Straßen Ensemble einfügt, über das frisch sanierten Stiegenhaus mit Personenlift,wird aus dieser Immobilie ein wahres Schmuckstücken. 



Lassen Sie sich bereits jetzt schon von diesem großartigen Projekt mit viel Liebe zum Detail überzeugen und vereinbaren Sie noch heute Ihren persönlichen Besichtigungstermin! 



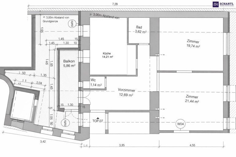
TOP 7 - Ost-Westseitig ausgerichtete 2,5-Zimmer-Wohnung mit Balkon und Eigengarten!



Diese Wohnung beeindruckt mit einem großzügigen Raumangebot. Viel Platz für gemütliche Abende mit Freunden finden Sie in dem über 22 Quadratmeter großen Wohn- Essbereich. Die Küche ist clever in Richtung Innenhof und Eigengarten ausgerichtet. Ein großes Schlafzimmer, ein Badezimmer mit Badewanne, eine separate Toilette und der zentrale Vorraum ergänzen das Raumangebot dieser hübschen Wohnung. Von der Küche aus gelangen Sie auf den, ca. 6 Quadratmeter großen Balkon mit Abgang zum 30 m² großen Eigengarten.



Der Garten inklusive der Einzäunung, sowie der Balkon werden im Zuges des Verkaufs noch vom Verkäufer errichtet.



Wohnfläche: ca. 72,84 m² + Balkon: ca. 5,86 m² + Garten: 29,3 m²  + Kellerabteil



Kaufpreis: EUR 449.000,-



Provision: 3% des KP zzgl. 20% Ust.





Bei konkretem Interesse senden wir Ihnen sehr gerne weiterführende Dokumente zu, wie:



o Grundbuchauszug



o Wohnungseigentumsvertrag



o Nutzwertgutachten



o Eigentümerversammlungsprotokoll (Falls vorhanden) etc...





Unser Service für Sie: Wenn Sie sich für diese Immobilie entschieden haben, begleiten wir Sie gerne vom Kaufanbot weg inkl. Klärung von Sonderwünschen und der Vertragsunterzeichnung über die Wohnungsübergabe bis hin zu diversen Ummeldungen wie Strom und Gas. Entsprechende Formulare oder auch Meldezettel stellen wir Ihnen sehr gerne zur Verfügung.



Gerne unterstützen wir Sie auch bei der Finanzierung Ihres Traumobjekts und finden mit unseren langjährigen Partnern die besten Konditionen für Sie.



Vereinbaren Sie noch heute einen Termin, wir beraten Sie gerne!



Sie wollen Ihre Immobilie verkaufen? Dann sind Sie bei uns goldrichtig! Gerne beraten wir Sie kostenlos bei der Bewertung Ihrer Immobilie und präsentieren Ihnen die dafür entscheidenden Informationen und Unterlagen unverbindlich. 



www.schantl-ith.at


Wir weisen darauf hin, dass zwischen dem Vermittler und dem zu vermittelnden Dritten ein familiäres oder wirtschaftliches Naheverhältnis besteht.


Der Vermittler ist als Doppelmakler tätig.

Infrastruktur / Entfernungen

Gesundheit
Arzt <500m
Apotheke <250m
Klinik <500m
Krankenhaus <250m

Kinder & Schulen
Schule <250m
Kindergarten <250m
Universität <750m
Höhere Schule <750m

Nahversorgung
Supermarkt <250m
Bäckerei <250m
Einkaufszentrum <750m

Sonstige
Geldautomat <250m
Bank <500m
Post <500m
Polizei <500m

Verkehr
Bus <250m
U-Bahn <500m
Straßenbahn <500m
Bahnhof <500m
Autobahnanschluss <1.250m

Angaben Entfernung Luftlinie / Quelle: OpenStreetMap

Eckdaten Objektnr. 293729

Art: Wohnung
Land: Österreich
Baujahr: 1900
Zustand: Gepflegt
Alter: Altbau
Kaufpreis: 449.000,00
Kaufpreis / m²: 5.705,21 €
Provision: 3% des Kaufpreises zzgl. 20% USt.
Betriebskosten: 151,31 €
MwSt Gesamt: 15,13 €
Wohnfläche: 72,84 m²
Nutzfläche: 78,70 m²
Zimmer: 2,50
Bäder: 1
WC: 1
Balkone: 1
Garten: 29,30 m²
Heizwärmebedarf:  D  121,30 kWh/m²a
fGEE:  F  3,67
Immobilie merken Exposé

Ausstattung

Parkett, Estrichboden, Fliesen, Gas, Etagenheizung, Einbauküche, Personenaufzug, Westbalkon, Dusche, Kabel/Satelliten-TV


Immobilie anfragen


Ihre persönliche Beratung

Schantl ITH Immobilientreuhand GmbH

Mark Prettenthaler

Schantl ITH Immobilientreuhand GmbH

T +43 6643070009

H +43 650 56 75 611