Wohnung mit großzügigem Balkon im Grünen - beheizt und gekühlt mit Erdwärme

Wohnung , 1210 Wien


1210 Wien, Strebersdorf

Beschreibung der Immobilie

Wohnung mit großzügigem Balkon im Grünen - beheizt und gekühlt mit Erdwärme

Es erwartet Sie eine einzigartige 3-Zimmer-Wohnung im ruhigen und doch zentral gelegenen Stadtteil von Wien Strebersdorf. Dieses neu errichtete Wohnhaus mit 6 Wohneinheiten befindet sich in bester Lage, umgeben von wunderbaren Erholungsgebieten am Fuße des Bisambergs. In unmittelbarer Umgebung finden sich Schulen, Einkaufsmöglichkeiten und eine Fülle traditioneller Heurigen und gastronomischen Angeboten, die Ihren Alltag bereichern werden.



Die Wohnung beeindruckt durch ihre großartige Raumaufteilung und die hochwertige Ausstattung. Das Wohnzimmer verfügt über einen Zugang zum großzügigen Balkon mit Blick ins Grüne. Durch die elektrisch bedienbaren Außenbeschattungen haben Sie stets die Möglichkeit, natürliches Licht und Luft in den Räumlichkeiten einzulassen.



Die Küche ist vollständig eingerichtet und beeindruckt durch ihre hochwertige Ausstattung und edlen Materialien. Das Badezimmer überzeugt durch seine erstklassige und hochwertige Ausführung. Es verfügt über eine Regendusche und einen edlen Doppel Waschtisch sowie einen Waschmaschinenanschluss.



Ein besonderes Highlight der Wohnung ist der große Balkon, der zum Entspannen und Wohlfühlen einlädt. Hier haben Sie genügend Platz für Gartenmöbel und Grill, um die Schönheit der Natur direkt von der Wohnung aus zu genießen. Ein hauseigenes Kellerabteil, sowie ein Fahrrad- und Kinderwagenabstellraum ergänzen das Wohnpaket.



Verpassen Sie nicht die Gelegenheit auf diese außergewöhnliche Wohnung in begehrter Lage und vereinbaren Sie noch heute einen Besichtigungstermin.

 



Ausstattung:



  • Alle Räume zentral vom Vorzimmer aus begehbar
  • Besonders energiesparendes System mit zentraler Sole-Wasser-Wärmepumpe, gespeist durch Tiefensonden
  • Steuerung des modernen Heizsystems mit ökonomischer und ökologischer Erdwärmeanlage
  • Fußbodenheizungen in allen Räumen, in den Zimmern und im Bad einzeln regulierbar
  • In der warmen Jahreszeit Raumkühlung über die Verrohrung der Fußbodenheizung
  • Elektrisch bedienbare Außenraffstores bei allen Fenstern
  • Hochwertige Sanitärausstattung von Grohe und Geberit
  • Bodenebene Duschkabinen mit Glastrennwänden und Regendusche
  • Fenster in Bad und WC
  • In den Zimmern jeweils Anschlüsse für TV, Internet und Telefon vorbereitet
  • Video-Gegensprechanlage
  • Hochwertiger Dielenparkettboden in Eiche Natur geölt
  • Flächenbündige Innentüren aus Holz mit Holzzarge
  • Einbruchhemmende Wohnungseingangstüren in Holz
  • Zentralschließanlage
  • 11 m2 Geräumiger Kellerabteil inkludiert



Lage und Infrastruktur:



Haltestellen der Straßenbahnlinie 26 und des Bus 32 A und 850 sind etwas mehr als 500 m entfernt und in weniger als 8 Gehminuten erreichbar. Die Schnellbahnstation Strebersdorf kann fußläufig in ca. 15 Minuten erreicht werden.



Das Stadtzentrum (Stephansplatz) ist in etwa 15 Straßenkilometer entfernt und mit dem Auto in rund 17 Minuten Fahrzeit erreichbar. Die Donauuferautobahn A22 Abfahrt Strebersdorf erreicht man dabei in 5 Minuten.



Das Einkaufszentrum Center21 ist fußläufig 600 m entfernt und bietet ein umfangreiches Angebot an Nahversorgern, darunter befinden sich Supermärkte wie Billa, Hofer, Lidl und Penny, eine Bäckerei, eine Apotheke, diverse Ärzte, Modegeschäfte uvm.



Das Bildungsangebot umfasst u.a. die in direkter Umgebung gelegene De La Salle Schule Strebersdorf mit einem Kindergarten, einer Volksschule, einer neuen Mittelschule, einer AHS und einem Internat.



Ein sportliches Freizeitangebot wird durch das nahe gelegene Sportzentrum Strebersdorf, das Familienbad sowie die Tanzschule Kreuzenstein geboten. Freizeitvielfalt bieten ebenso die naturnahen Radwege über die nahegelegenen Weinberge.



Ruhe und Entspannung finden Sie in der wunderschönen Natur in den Erholungsgebieten Bisamberg und Marchfeldkanal in der direkten Umgebung.



In der unmittelbaren Nähe zu den Weinbergen befinden sich Heurige, Weingüter und Buschenschanken. Darüber hinaus gibt es weitere gastronomische Angebote innerhalb weniger Gehminuten.



Für Besichtigungen und nähere Informationen stehen wir Ihnen gerne zur Verfügung!

Infrastruktur / Entfernungen

Gesundheit
Arzt <500m
Apotheke <500m
Klinik <4.000m
Krankenhaus <3.000m

Kinder & Schulen
Schule <500m
Kindergarten <500m
Universität <500m
Höhere Schule <4.000m

Nahversorgung
Supermarkt <500m
Bäckerei <500m
Einkaufszentrum <500m

Sonstige
Bank <1.000m
Geldautomat <1.000m
Post <1.000m
Polizei <1.000m

Verkehr
Bus <500m
Straßenbahn <1.000m
U-Bahn <4.500m
Bahnhof <1.500m
Autobahnanschluss <2.500m

Angaben Entfernung Luftlinie / Quelle: OpenStreetMap

Eckdaten Objektnr. 27419

Art: Wohnung
Land: Österreich
Baujahr: 2023
Zustand: Erstbezug
Alter: Neubau
Kaufpreis: 399.000,00
Betriebskosten: 156,08 €
MwSt Gesamt: 15,61 €
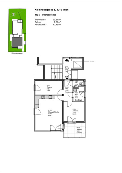
Wohnfläche: 63,21 m²
Zimmer: 3
Bäder: 1
WC: 1
Balkone: 1
Keller: 10,52 m²
Heizwärmebedarf:  B  26,80 kWh/m²a
fGEE:  A+  0,64
Immobilie merken Exposé

Ausstattung

Steinboden, Parkett, Erdwärme, Zentralheizung, Personenaufzug


Immobilie anfragen


Ihre persönliche Beratung

EXPAT CONSULTING Real Estate & Relocation Services GmbH

Aslan Kurtaran, MBA

EXPAT CONSULTING Real Estate & Relocation Services GmbH

T +43 1 328 8818-0

H +43 699 1178 5193

F +43 1 328 8818-60