Sonnendurchflutete 95 m² - 4-Zimmer-Maisonetten-Eigentumswohnung in Going am Wilden Kaiser

Wohnung - Maisonette, 6353 Going am Wilden Kaiser


Die Wohnung befindet sich in Going am Wilden Kaiser, einem charmanten und beliebten Wohn- und Ferienort in den Kitzbüheler Alpen/Tirol. Umgeben von der imposanten Bergkulisse des Wilden Kaisers bietet Going eine einzigartige Kombination aus ländlicher Lebensqualität und ausgezeichneter Infrastruktur – ideal für Freizeit, Alltag und Erholung gleichermaßen. Going verfügt über eine gute Grundversorgung vor Ort, darunter Bäckereien, regionale Hofläden, Supermärkte, Gastronomie, Cafés und weitere tägliche Anlaufstellen, die fußläufig erreichbar sind. Zusätzlich werden im näheren Umfeld zahlreiche Sport- und Freizeitangebote wie Wanderwege, Radstrecken und der beliebte Badesee von Going geboten. Die Gemeinde ist hervorragend an die Region angebunden: Busverbindungen und Skibuslinien erleichtern den ÖPNV-Anschluss zu umliegenden Orten sowie zu den Seilbahnen der SkiWelt Wilder Kaiser – Brixental. Mit der Wilder Kaiser GuestCard kann der öffentliche Verkehr in der Region unkompliziert genutzt werden. Der Bahnhof St. Johann in Tirol ist in kurzer Zeit erreichbar und bietet Anschluss an das nationale Bahnnetz, während Flughäfen wie Innsbruck, München oder Salzburg in etwa 1–1,5 Stunden Fahrzeit liegen. Going besticht neben der täglichen Infrastruktur vor allem durch seine hohe Lebensqualität, naturnahe Lage und ganzjährige Freizeitmöglichkeiten – von Berg- und Almwanderungen im Sommer bis zu Ski- und Wintersportvergnügen im Winter.

Beschreibung der Immobilie

Sonnendurchflutete 95 m² - 4-Zimmer-Maisonetten-Eigentumswohnung in Going am Wilden Kaiser

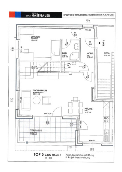
Diese exklusive Maisonetten-Eigentumswohnung mit ca. 95 m² Wohnfläche besticht durch ihre lichtdurchflutete Architektur, eine durchdachte Raumaufteilung und einen herrlichen Ausblick.



Der großzügige Wohn- und Essbereich bildet das Herzstück der Wohnung und überzeugt mit einer offenen, freundlichen Atmosphäre. Große Fensterflächen sorgen für viel Tageslicht und ermöglichen den direkten Zugang zur Terrasse, welche mit einer Glasüberdachunggeschützt zum Entspannen und Genießen im Freien einlädt.



Die moderne, lichtdurchflutete Küche ist mit hochwertigen Einbaugeräten der Firma Siemens ausgestattet und bietet ideale Voraussetzungen für komfortables und stilvolles Kochen.



Auf dieser Wohnebene befindet sich zudem ein Kinderzimmer bzw. Büro, das mit einem separaten Bad ausgestattet ist. Dieses verfügt über Waschtisch, Dusche sowie einen Waschmaschinenanschluss und bietet dadurch ein hohes Maß an Flexibilität und Komfort. Ein abgetrenntes Gäste-WC ergänzt das Raumangebot auf dieser Ebene.



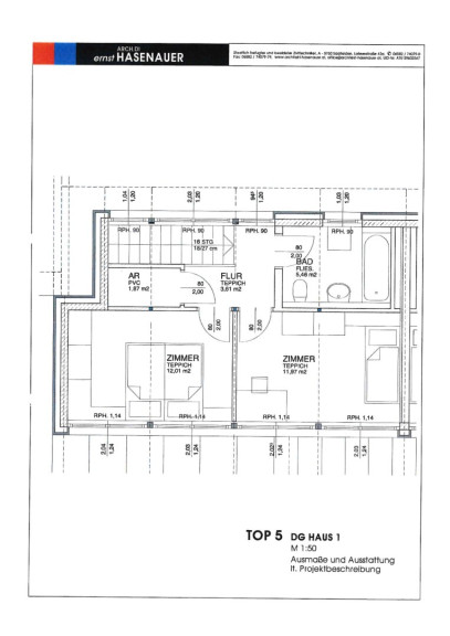
Über eine geschmackvoll gestaltete Stiege gelangt man in das Obergeschoss der Wohnung. Hier befindet sich das Hauptbadezimmer mit Eckbadewanne, Waschtisch und Fenster, das zu entspannenden Wohlfühlmomenten einlädt. Ein zusätzlicher Abstellraum bietet zudem Möglichkeit um nicht alltäglich verwendete Gegenstände zu verstauen.



Zwei großzügige Schlafzimmer mit großen Fensterfronten bieten nicht nur viel Platz, sondern auch einen beeindruckenden Blick auf den Astberg und den Hartkaiser – ein Highlight für Naturliebhaber und Ruhesuchende.



Diese Maisonettenwohnung vereint modernen Wohnkomfort, hochwertige Ausstattung und eine außergewöhnliche Aussicht und eignet sich ideal für Familien, Paare oder anspruchsvolle Eigennutzer.



Komplettiert wird diese außergwöhnliche Immobilie durch ein Kellerabteil und einen Tiefgaragenabstellplatz.





Aufteilung der Wohnung:



- großer Wohn- Koch-  Essbereich mit 2 Zugängen zur überdachten Terrasse



- 3 Schlafzimmer bzw. Kinderzimmer/Büro



- 2 Badezimmer (eins davon mit WC)



- 1 separates WC mit Waschbecken



- Abstellraum



- Tiefgaragenabstellplatz



- Keller





Auf den Fotos finden Sie inspirierende Möblierungsvorschläge zur Veranschaulichung der Raumgestaltung.

Noch nichts gefunden? Wir informieren Sie über geeignete Immobilienangebote noch vor allen anderen.
Legen Sie jetzt Ihren individuellen Suchagenten unter folgendem Link an. Wir schicken Ihnen passende Immobilien exklusiv vorab zu.

Suchagent anlegen - https://herbert-eisenmann.service.immo/registrieren/de


Der Vermittler ist als Doppelmakler tätig.

Infrastruktur / Entfernungen

Gesundheit
Arzt <500m
Apotheke <1.500m
Klinik <9.500m
Krankenhaus <8.000m

Kinder & Schulen
Schule <500m
Kindergarten <500m
Höhere Schule <10.000m

Nahversorgung
Supermarkt <500m
Bäckerei <1.000m

Sonstige
Bank <500m
Geldautomat <500m
Post <500m
Polizei <2.500m

Verkehr
Bus <500m
Bahnhof <5.500m
Flughafen <9.500m

Angaben Entfernung Luftlinie / Quelle: OpenStreetMap

Eckdaten Objektnr. 7329/313

Art: Wohnung - Maisonette
Land: Österreich
Zustand: Gepflegt
Möbliert: Teil
Alter: Neubau
Kaufpreis: 575.000,00
Provision: 3% des Kaufpreises zzgl. 20% USt.
Betriebskosten: 104,65 €
Heizkosten: 153,86 €
Sonstige Kosten: 155,67 €
Wohnfläche: 95,00 m²
Zimmer: 4
Bäder: 1
WC: 2
Balkone: 1
Heizwärmebedarf:  B  50,00 kWh/m²a
Immobilie merken Exposé

Ausstattung

Zentralheizung, Dusche, Bad mit Fenster, Badewanne, Tiefgarage


Immobilie anfragen


Ihre persönliche Beratung

Eisenmann Immobilien GmbH

Herbert Eisenmann

Eisenmann Immobilien e.U.

H +43 664 831 7331