PURE ENTSPANNUNG! Riesiger Garten mit Blick ins Grüne I auch ideal f. gewerbliche Nutzung I Garage I Alarmanlage I

Wohnung , 1130 Wien


Bahnhof Speising: ca. 300m Straßenbahn:  10, 52, 60: ca. 150m  62: ca. 500m  Bus:  56A, 56B: ca. 300m Kindergarten: ca. 400m  Volksschule: ca. 350m  Billa: ca. 240m  Hofer: ca. 550m 

Beschreibung der Immobilie

PURE ENTSPANNUNG! Riesiger Garten mit Blick ins Grüne I auch ideal f. gewerbliche Nutzung I Garage I Alarmanlage I

Treten Sie herein & lassen Sie den ganzen Alltagsstress hinter sich! 
Hier erwarten Sie Ruhe, Sonne und ein Gefühl von Freiheit. 



Der riesige, ca. 247 m² große Eigengarten ist ein wahrer Hingucker und verleiht diesem Zuhause ein gemütliches Urlaubsfeeling. Auf 2 einladenden Terrassen genießen Sie entspannte Stunden im Liegestuhl oder angenehme Grillabende mit Familie und Freunden! 

Oder wie wäre es, die Entspannung auf ein neues Level zu heben und im Garten einen Pool zu realisieren? Platz dafür ist auf jeden Fall vorhanden!



Aber auch für all jene, die Wohnen und Arbeiten unter einem Dach vereinen möchten, ist diese Wohnung ideal geeignet! Durch den separaten Zugang über die vordere Terrasse bietet die Wohnung perfekte Voraussetzungen, um einen Bereich als Büro oder Praxis zu gestalten.



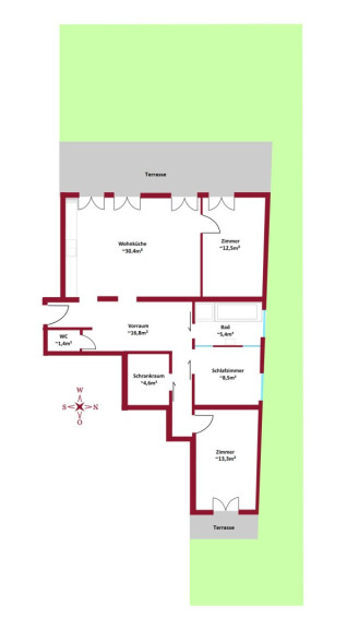
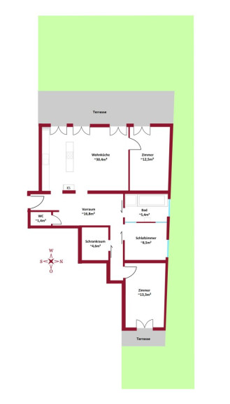
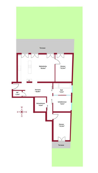
Gestaltungsmöglichkeiten: Aktuell verfügt die Wohnung über 3 Zimmer. Durch Adaptierungsarbeiten lässt sich rasch ein viertes Zimmer dazugewinnen. (s. Alternativplan) 



Einige der Highlights auf einen Blick: 



  • beeindruckender Eigengarten mit Blick ins Grüne 
  • durch Adaptierungsarbeiten könnte ein viertes Zimmer dazugewonnen werden (s. Alternativplan) 
  • 2 Terrassen
  • separater Zugang zur Wohnung über die vordere Terrasse 
  • Parkettboden
  • Fußbodenheizung
  • voll ausgestattete Marken-Küche (Eggersmann) mit reichlich Stauraum und Arbeitsfläche
  • Alarmanlage 
  • elektrische Rollläden 
  • Tageslichtbad mit Badewanne und Walk-In-Dusche 
  • 2008 modernisiert
  • Gegensprechanlage mit Kamera 
  • Garagenstellplatz 
  • Kellerabteil 
  • Waschküche


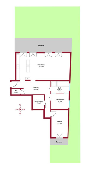
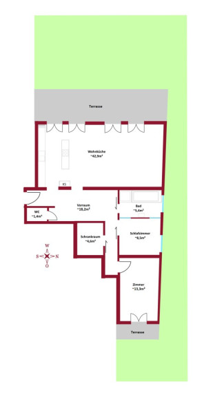
Die Wohnfläche von ca. 93m² erstreckt sich über die folgenden Räumlichkeiten:  



  • geräumiges Vorzimmer, aus welchem alle Räume zentral begehbar sind
  • großzügige Wohnküche mit vielen Terrassenausgängen, die für eine lichterfüllte Atmosphäre sorgen
  • 2 Schlafzimmer 
  • Tageslichtbad mit Dusche und Badewanne 
  • WC mit Handwaschbecken 
  • Schrankraum 


Der Kaufpreis:
Der Kaufpreis für die Wohnung beläuft sich auf 749.000,-- Euro.
Der Garagenplatz muss miterworben werden. Der Kaufpreis für den Garagenstellplatz beläuft sich auf 29.000,-- Euro.

Somit Gesamtkaufpreis: 778.000,-- Euro 



Die Lage:
Es bedarf nur einen Schritt vor die Tür

Von Nahversorgung über optimale öffentliche Verkehrsanbindung bis zu vielfältigen Freizeitmöglichkeiten – hier finden Sie alles, was das Leben angenehm macht.

Unter anderem sind das Lainzer Tor, der Schlosspark Schönbrunn sowie das Hietzinger Bad schnell und bequem zu erreichen! 



Bahnhof Speising: ca. 300m



Straßenbahn: 

10, 52, 60: ca. 150m 

62: ca. 500m 



Bus: 
56A, 56B: ca. 300m



Kindergarten: ca. 400m 

Volksschule: ca. 350m 



Billa: ca. 240m 

Hofer: ca. 550m 

 



Gerne steht Ihnen Frau Maja Arsic für weitere Fragen bzw. flexibel gestaltbare Besichtigungstermine unter 0699 180 47 130 zur Verfügung.
www.ringsmuth-immobilien.at



Irrtum und Änderungen vorbehalten!


Hinweis gemäß Energieausweisvorlagegesetz: Ein Energieausweis wurde vom Eigentümer bzw. Verkäufer, nach unserer Aufklärung über die generell geltende Vorlagepflicht, sowie Aufforderung zu seiner Erstellung noch nicht vorgelegt. Daher gilt zumindest eine dem Alter und der Art des Gebäudes entsprechende Gesamtenergieeffizienz als vereinbart. Wir übernehmen keinerlei Gewähr oder Haftung für die tatsächliche Energieeffizienz der angebotenen Immobilie.

Infrastruktur / Entfernungen

Gesundheit
Arzt <500m
Apotheke <1.000m
Klinik <500m
Krankenhaus <1.000m

Kinder & Schulen
Schule <500m
Kindergarten <500m
Universität <2.500m
Höhere Schule <4.000m

Nahversorgung
Supermarkt <500m
Bäckerei <500m
Einkaufszentrum <3.500m

Sonstige
Geldautomat <500m
Bank <500m
Post <500m
Polizei <1.000m

Verkehr
Bus <500m
U-Bahn <2.500m
Straßenbahn <500m
Bahnhof <500m
Autobahnanschluss <3.000m

Angaben Entfernung Luftlinie / Quelle: OpenStreetMap

Eckdaten Objektnr. 16585

Art: Wohnung
Land: Österreich
Alter: Neubau
Kaufpreis: 749.000,00
Provision: 3% des Kaufpreises zzgl. 20% USt.
Wohnfläche: 93,00 m²
Nutzfläche: 394,00 m²
Zimmer: 4
Bäder: 1
WC: 1
Terrassen: 2
Stellplätze: 1
Garten: 247,00 m²
Immobilie merken Exposé

Ausstattung

Steinboden, Parkett, Fußbodenheizung, Einbauküche, Wohnküche / offene Küche, Personenaufzug, Ostbalkon, Westbalkon, Bad mit Fenster, Badewanne, Dusche, Garage, Alarmanlage


Immobilie anfragen


Ihre persönliche Beratung

Alexander Ringsmuth GmbH

Maja Arsic

Alexander Ringsmuth GmbH

T +43 699 18 04 71 30

H +43 699 18 04 71 30